Skip til hoved indholdet MinSide MinSide

4.805 kr. pr.md

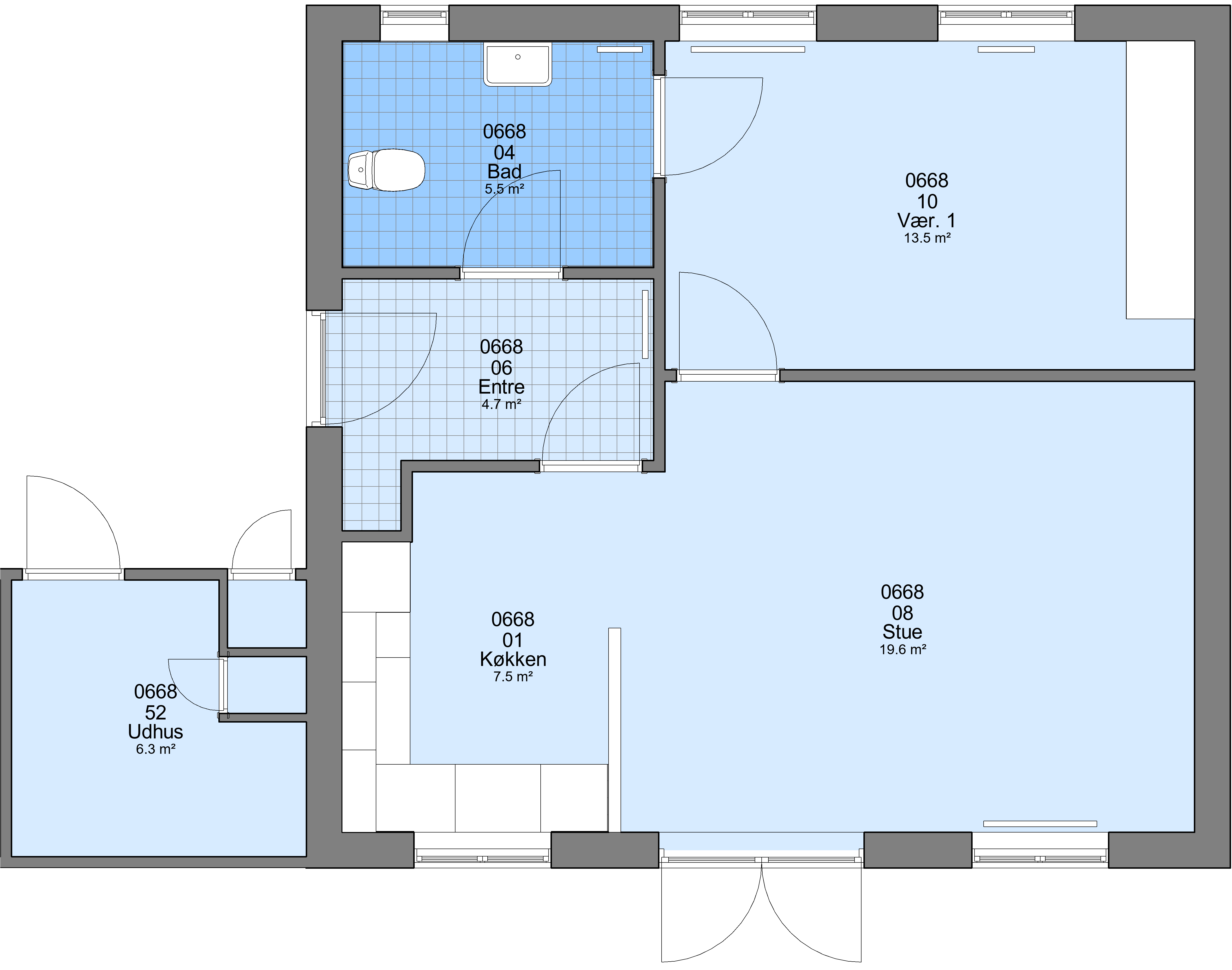
Rækkehus | Familieboliger | 2 vær. | 62 m² | Indskud: 14.198 kr. | A/C forbrug: 0 kr. | Ledig fra: 01-11-25

Afdelingen består af 64 boliger beliggende i Tim, Stadil, Vedersø, No, Ølstrup, Hee og Højmark.
Boligerne er fordelt således:

8 på Trine Rahbeks vej/Hovedgade (Tim),
8 på Fresiavej (Tim),
6 på Regnspovevej (Tim),
4 på Vesterhavsvej (Vedersø)
4 på Skelmosevej (Stadil)
4 på Lybækvej (No)
5 på Byvejen (Ølstrup)
4 på Hovervej (Hee)
6 på N. P. Jeppensensvej (Hee)
7 på Bjørnevej (Hee)
2 på Adelvej (Højmark)
6 på Mads Degnbols vej (Højmark)

Faciliteter

Altan/Have
Ja

Alle boligerne har have, undtaget nedenstående. På Trine Rahbeks vej og Hovedgaden er der en terrasse eller altan til boligerne.

Gangbesværet
Se mere

Der er dørtrin i boligerne og der kan forekomme niveauforskelle ved indgangen. På Trine Rahbeks vej og Hovedgaden er der boliger på 1. sal.

El
Se mere

Som lejer skal du, i forbindelse med indflytning, selv vælge hvilken el-leverandør du ønsker.

Husdyr
Ja

Det er tilladt at holde ét husdyr.

Hvidevarer
Ja

Der hører komfur, ovn og emhætte med til lejligheden.

Gildesal
Nej

Der er ikke gildesal i afdelingen.

Råderet
Ja

Det er vedtaget, at man kan forny køkken via råderet i boligerne i Tim.

TV
Ja

Der er installeret fibernet i boligen. På hjemmesiden rah-fiber.dk kan du se hvilke udbydere af internet og TV, du kan vælge imellem.

Vand
Læs mere

Vand betales direkte til Ringkøbing-Skjern forsyning.

Varme
Læs mere

Tim: Fjernvarme Ølstrup: Naturgas Stadil: Varmepumpe og elvarme Vedersø: Varmepumpe og elvarme No: Naturgas Hee: Naturgas Højmark: Adelvej har varmepumpe, Mads Degnbols vej har Naturgas

Vicevært
Ja

Vicevært i afdelingen

Garage/carport
Ja

Carport

Affald
Læs mere

I Ringkøbing-Skjern kommune skal man affaldssortere. Til hver bolig, hører der en 240 L opdelt affaldscontainer. Containeren bruges til mad- og restaffald. Øvrigt affald skal afleveres på den kommunale genbrugsplads.

Ladestander
Nej

Der er ikke ladestander til elbil i afdelingen.

Bliv medlem

Ringkøbing-Skjern boligforening

Thorsvej 6, 6950 Ringkøbing

CVR nr. 44674610

Telefon: + 45 97321711
info@rsbolig.dk

Åbningstider

Administrationen
Mandag
kl. 10.00 - 17.00
Tirsdag til torsdagkl. 10.00 - 13.00
Fredagkl. 9.00 - 12.00

Åbningstider

Lokalkontoret i Tarm (Engholmvej 71)

Torsdagkl. 14.30 - 16.00


Genveje