Skip til hoved indholdet MinSide MinSide

7.770 kr. pr.md

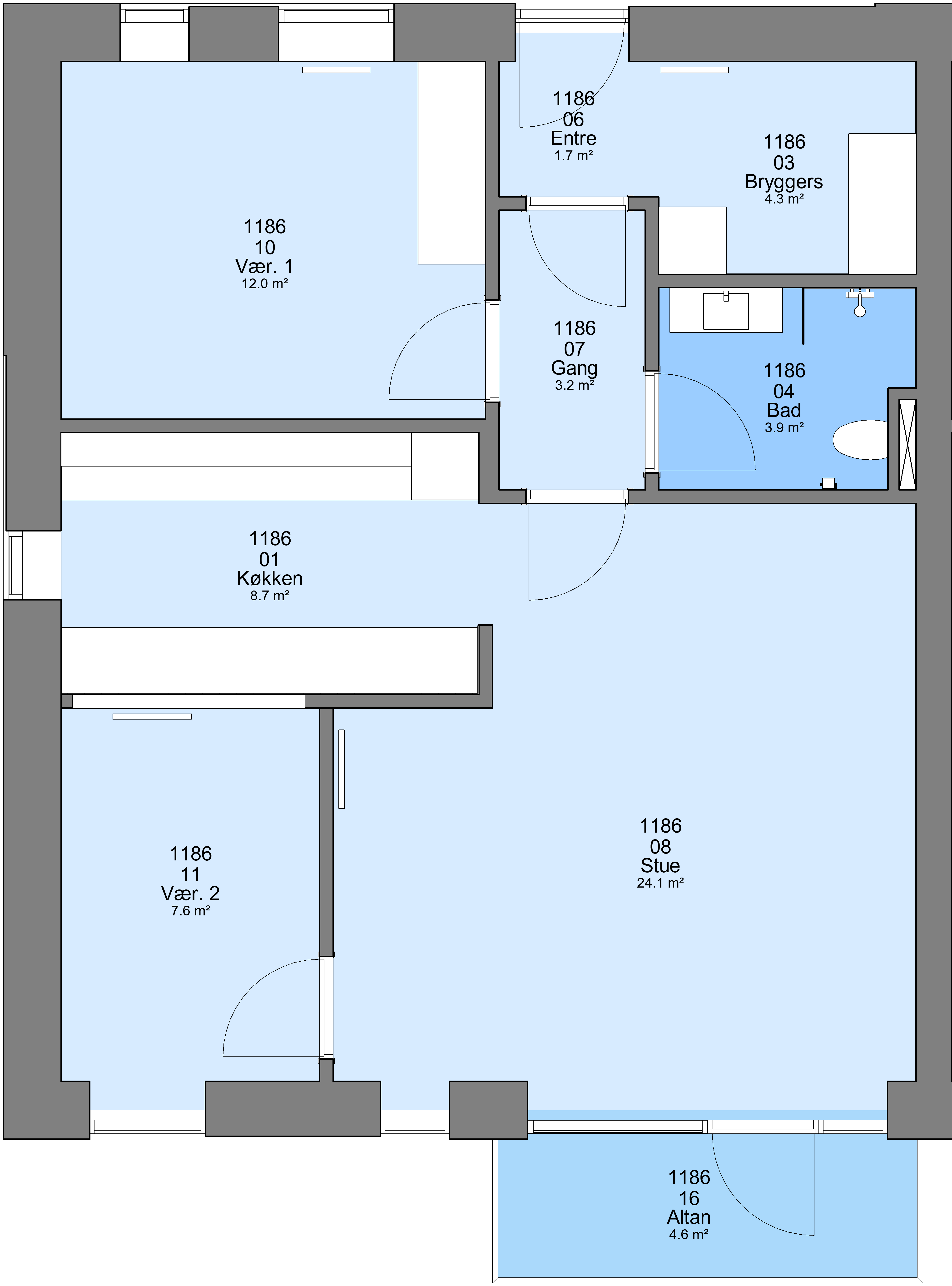
Etagebyggeri | Familieboliger | 3 vær. | 89 m² | Indskud: 23.500 kr. | A/C forbrug: 850 kr. | Ledig fra: 01-05-26

Afdelingen består af 47 røgfri lavenergi boliger. Boligerne er placeret tæt på naturen i Naturbydelen i Ringkøbing. Fjordudsigten er 1. etape ud af 80 boliger.

Vores nye byggeri på Fjordudsigten lever desværre ikke op til det lovede i forhold til lyddæmpning mellem boliger. Trinlyde fra boligen oven over dæmpes ikke tilstrækkeligt.

Sammen med rådgivere og entreprenøren er vi i gang med at afdække, hvordan vi kan sikre tilstrækkelig lyddæmpning.

Uanset om den rette løsning ligger i gulvet eller i loftet betyder det desværre, at det sandsynligvis bliver nødvendigt, at vi genhuser beboerne i hver lejlighed i nogle dage.

Du vil blive orienteret i rigtig god tid inden det sker, og vi vil drøfte med dig, hvordan det kan ske.

Faciliteter

Altan/Have
Ja

Der er altan til boligerne med indgang på 1. sal. Boligerne med indgang i stueetagen har en terrasse.

Gangbesværet
Se mere

Boligerne med 3 og 4 rum er i to plan. Halvdelen af boligerne med 2 rum, har indgang på 1. sal.

El
Se mere

Udgiften til el betales aconto til boligforeningen. Der er installeret solceller, som suplement til dit elforbrug.

Husdyr
Ja

Det er tilladt at holde ét husdyr.

Hvidevarer
Ja

Der er komfur, ovn, emhætte og Køle-/fryseskab i boligen.

Gildesal
Nej

Der er ikke gildesal i afdelingen.

Råderet
Nej

Der er ikke vedtaget mulighed for råderet i afdelingen.

TV
Ja

Der er installeret fibernet i boligen. På hjemmesiden rah-fiber.dk kan du se hvilke udbydere af internet og TV, du kan vælge imellem.

Vand
Læs mere

Vand betales aconto til Ringkøbing-Skjern Boligforening. Der laves en årlig opgørelse.

Varme
Læs mere

Boligerne opvarmes via et ventilationsanlæg med varmegenindvinding. Anlægget har en varmepumpe til at producere varmt vand.

Vicevært
Ja

Vicevært i afdelingen

Skur
Ja

Der er et skur til hver bolig.

Affald
Læs mere

I Ringkøbing-Skjern Kommune skal man affaldssortere. Der er fælles affaldsstation, hvor madaffald, restaffald, pap/papir og plast/metal/mad- og drikkekartoner kan afleveres. Øvrigt affald afleveres på den kommunale genbrugsplads eller de offentlige affaldsstationer i byen.

Ladestander

Der er ladestander fra Prostrøm i afdelingen.

Bliv medlem

Ringkøbing-Skjern boligforening

Thorsvej 6, 6950 Ringkøbing

CVR nr. 44674610

Telefon: + 45 97321711
info@rsbolig.dk

Åbningstider

Administrationen
Mandag
kl. 10.00 - 17.00
Tirsdag til torsdagkl. 10.00 - 13.00
Fredagkl. 9.00 - 12.00

Åbningstider

Lokalkontoret i Tarm (Engholmvej 71)

Torsdagkl. 14.30 - 16.00


Genveje