Skip til hoved indholdet MinSide MinSide

6.004 kr. pr.md

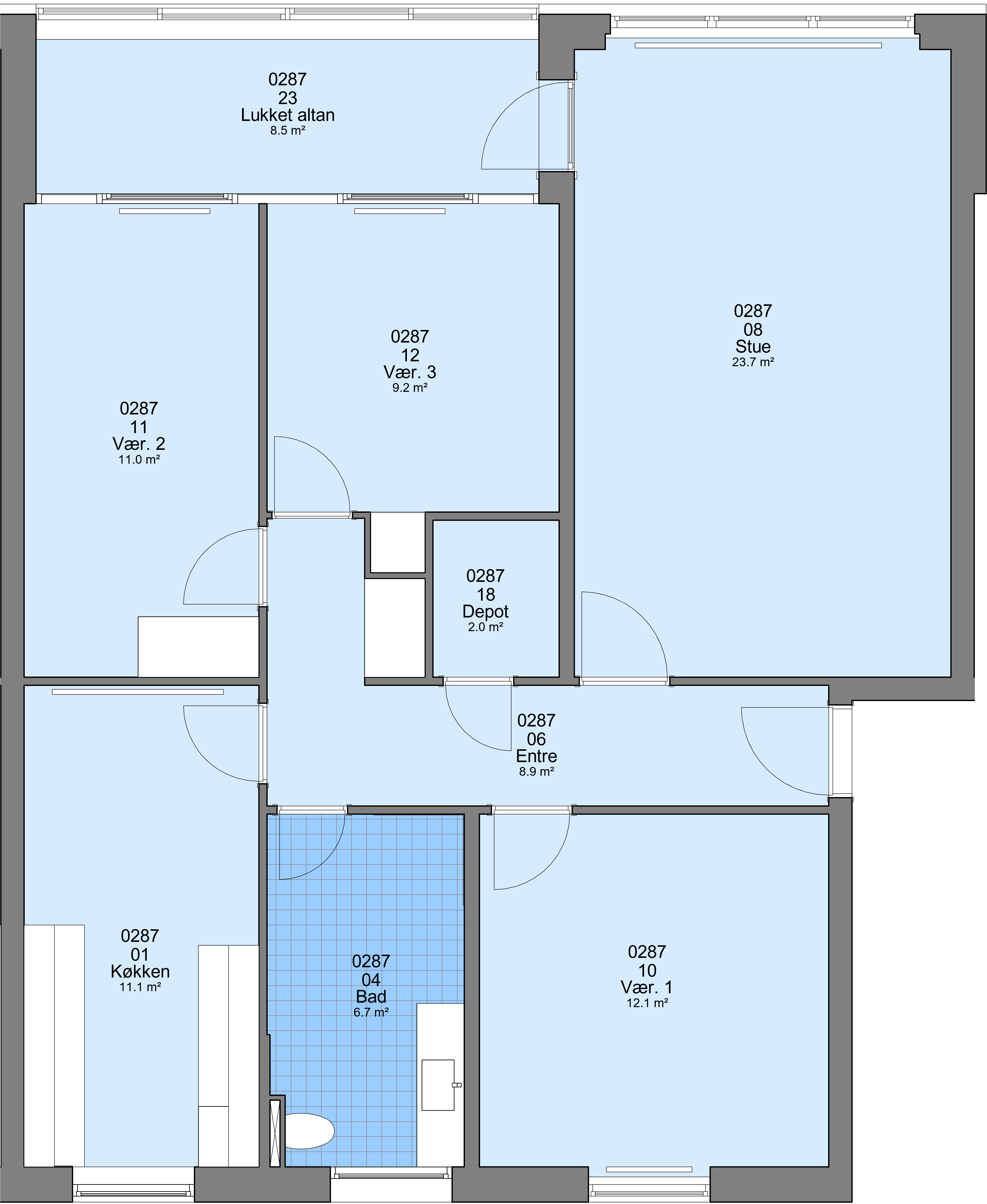
Etagebyggeri | Familieboliger | 4 vær. | 102 m² | Indskud: 17.000 kr. | A/C forbrug: 1.938 kr. | Ledig fra: 15-02-26

Afdelingen består af 159 boliger i etagebyggeri. Afdelingen er beliggende tæt ved Ringkøbing Fjord, Alkjærskolen og indkøbsmuligheder. Boligerne er løbende renoveret. Flere af boligerne i afdelingen har udsigt over fjorden. Alle badeværelser er renoveret i årene 2018-2020.

Faciliteter

Altan/Have
Ja

Der er altan til alle boliger.

Gangbesværet
Se mere

Der er trapper op til alle boliger.

El
Se mere

Som lejer skal du, i forbindelse med indflytning, selv vælge hvilken el-leverandør du ønsker.

Husdyr
Nej

Det er ikke tilladt at holde husdyr.

Hvidevarer
Ja

Der hører køle-/fryseskab, komfur, ovn og emhætte med til lejligheden.

Gildesal
Ja

Der er en gildesal i afdelingen.

Råderet
Ja

Afdelingen har vedtaget, at man kan forny døre via råderetten.

TV
Ja

Der er installeret fibernet i boligen. På hjemmesiden rah-fiber.dk kan du se hvilke udbydere af internet og TV, du kan vælge imellem.

Vand
Læs mere

Udgiften til vand betales aconto til Boligforeningen.

Varme
Læs mere

Der er fjernvarme i boligen. Varmen betales aconto til Boligforeningen.

Vicevært
Ja

Vicevært i afdelingen

Fællesvaskeri
Ja

Vaskeri i afdelingen

Legeplads
Ja

Legeplads i afdelingen

Skur
Ja

Der er et kælderrum til alle boliger.

Affald
Læs mere

I Ringkøbing-Skjern Kommune skal man affaldssortere. Der er fælles affaldsstationer, hvor madaffald, restaffald, pap, plast og metal kan afleveres. Derudover er der en lille genbrugsplads i Damtoften, som har åbent en gang ugentligt. Øvrigt affald afleveres på den kommunale genbrugsplads eller de offentlige affaldsstationer i byen.

Ladestander

Der er ladestandere fra Prostrøm i afdelingen.

Bliv medlem

Ringkøbing-Skjern boligforening

Thorsvej 6, 6950 Ringkøbing

CVR nr. 44674610

Telefon: + 45 97321711
info@rsbolig.dk

Åbningstider

Administrationen
Mandag
kl. 10.00 - 17.00
Tirsdag til torsdagkl. 10.00 - 13.00
Fredagkl. 9.00 - 12.00

Åbningstider

Lokalkontoret i Tarm (Engholmvej 71)

Torsdagkl. 14.30 - 16.00


Genveje