---
title: "Vinkelvej og Møllevej"
description: "1-95"
date: "2025-08-01"
created: "2025-06-12"
---

-
-
-

https://maps.google.dk/?q=55.9098543,8.5171308

# Vinkelvej og Møllevej

Afdeling 95

## Velkommen til afdeling 95 Vinkelvej og Møllevej

Vinkelvej og Møllevej består af 10 boliger. Vinkelvej 2-10 og Møllevej 11-19.

## Faciliteter

Altan/Have

Ja

Der er have til boligerne.

Gangbesværet

Se mere

Der er trapper i boligerne.

El

Se mere

Som lejer skal du, i forbindelse med indflytning, selv vælge hvilken el-leverandør du ønsker.

Husdyr

Ja

Det er tilladt at holde 2 husdyr.

Hvidevarer

Ja

Der hører komfur, ovn og emhætte med til lejligheden.

Gildesal

Nej

Der er ikke gildesal i afdelingen.

Råderet

Ja

Afdelingen har vedtaget, at man kan forny badeværelset via råderetten.

TV

Ja

Der er installeret fibernet i boligen.

På hjemmesiden rah-fiber.dk kan du se hvilke udbydere af internet og TV, du kan vælge imellem.

Vand

Læs mere

Udgiften til vand betales direkte til Ringkøbing-Skjern Forsyning.

Varme

Læs mere

Boligerne opvarmes med fjernvarme, som betales direkte til Tarm Varmeværk.

Affald

Læs mere

I Ringkøbing-Skjern kommune skal man affaldssortere.

Til hver bolig, hører der en 240 L opdelt affaldscontainer. Containeren bruges til mad- og restaffald.

Øvrigt affald skal afleveres på den kommunale genbrugsplads.

Ladestander

Nej

Der er ikke ladestander til elbil i afdelingen.

                        Se flere

## Boliger i afdelingen

Familieboliger

4 rums

Familieboliger

Boligtype

Værelser

Størrelse

Husleje

Indskud/dp

Plantegning

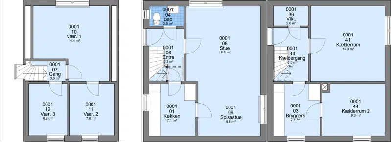
Familieboliger

4

78 m²

4585 kr.

17000 kr.

![](https://rsbolig.dk/i/MOLIRIMEDIA/f4c48381-147a-4d86-2994-08dda22a7775?width=800)






![](https://rsbolig.dk/i/MOLIRIMEDIA/f4c48381-147a-4d86-2994-08dda22a7775?width=800)

![](https://rsbolig.dk/i/MOLIRIMEDIA/d1aab43e-264d-42db-0c25-08dd9d2caa1e?width=800)

![](https://rsbolig.dk/i/MOLIRIMEDIA/f4c48381-147a-4d86-2994-08dda22a7775?width=800)

![](https://rsbolig.dk/i/MOLIRIMEDIA/d1aab43e-264d-42db-0c25-08dd9d2caa1e?width=800)

## Afdelingsdokumenter

Her finder du nyttig information om din afdeling, såsom husorden, vedligeholdelse af dit lejemål, referater m.m.

###

                                                Husorden

[Husorden.pdf](https://rsbolig.dk/p/Files/Boligdata/Afdelinger/1-095/Husorden/Husorden.pdf)

###

                                                Afdelingsmøder

[2025 Referat afd.møde.pdf](https://rsbolig.dk/p/Files/Boligdata/Afdelinger/1-095/Afdelingsm&#xF8;der/2025-Referat-afd.m&#xF8;de.pdf)
                                            [2024 Referat afd.møde.pdf](https://rsbolig.dk/p/Files/Boligdata/Afdelinger/1-095/Afdelingsm&#xF8;der/2024-Referat-afd.m&#xF8;de.pdf)
                                            [2023 Referat afd.møde.pdf](https://rsbolig.dk/p/Files/Boligdata/Afdelinger/1-095/Afdelingsm&#xF8;der/2023-Referat-afd.m&#xF8;de.pdf)
                                            [2022 Referat afd.møde.pdf](https://rsbolig.dk/p/Files/Boligdata/Afdelinger/1-095/Afdelingsm&#xF8;der/2022-Referat-afd.m&#xF8;de.pdf)
                                            [2021 Referat afd.møde.pdf](https://rsbolig.dk/p/Files/Boligdata/Afdelinger/1-095/Afdelingsm&#xF8;der/2021-Referat-afd.m&#xF8;de.pdf)
                                            [2020 Referat afd.møde.pdf](https://rsbolig.dk/p/Files/Boligdata/Afdelinger/1-095/Afdelingsm&#xF8;der/2020-Referat-afd.m&#xF8;de.pdf)
                                            [2019 Referat ekstraordinær generalforsamling Tarm Boligforening.pdf](https://rsbolig.dk/p/Files/Boligdata/Afdelinger/1-095/Afdelingsm&#xF8;der/2019-Referat-ekstraordin&#xE6;r-generalforsamling-Tarm-Boligforening.pdf)
                                            [2019 Referat afd.møde og generalforsamling.pdf](https://rsbolig.dk/p/Files/Boligdata/Afdelinger/1-095/Afdelingsm&#xF8;der/2019-Referat-afd.m&#xF8;de-og-generalforsamling.pdf)
                                            [2019 Referat afd.møde og generalforsamling Tarm Boligforening.pdf](https://rsbolig.dk/p/Files/Boligdata/Afdelinger/1-095/Afdelingsm&#xF8;der/2019-Referat-afd.m&#xF8;de-og-generalforsamling-Tarm-Boligforening.pdf)
                                            [2018 Referat afd.møde og generalforsamling Tarm Boligforening.pdf](https://rsbolig.dk/p/Files/Boligdata/Afdelinger/1-095/Afdelingsm&#xF8;der/2018-Referat-afd.m&#xF8;de-og-generalforsamling-Tarm-Boligforening.pdf)
                                            [2017 Referat ekstraordinært afd.møde Tarm Boligforening.pdf](https://rsbolig.dk/p/Files/Boligdata/Afdelinger/1-095/Afdelingsm&#xF8;der/2017-Referat-ekstraordin&#xE6;rt-afd.m&#xF8;de-Tarm-Boligforening.pdf)
                                            [2017 Referat afd.møde og generalforsamling Tarm Boligforening.pdf](https://rsbolig.dk/p/Files/Boligdata/Afdelinger/1-095/Afdelingsm&#xF8;der/2017-Referat-afd.m&#xF8;de-og-generalforsamling-Tarm-Boligforening.pdf)
                                            [2016 Referat afd.møde Tarm Boligforening.pdf](https://rsbolig.dk/p/Files/Boligdata/Afdelinger/1-095/Afdelingsm&#xF8;der/2016-Referat-afd.m&#xF8;de-Tarm-Boligforening.pdf)

###

                                                Øvrigt

[Tarm Afd. 95 - Indflytningsbrochure.pdf](https://rsbolig.dk/p/Files/Boligdata/Afdelinger/1-095/&#xD8;vrigt/Tarm-Afd.-95---Indflytningsbrochure.pdf)
                                            [Vedtægter Rsbolig.pdf](https://rsbolig.dk/p/Files/Boligdata/Afdelinger/1-095/&#xD8;vrigt/Vedt&#xE6;gter-Rsbolig.pdf)

###

                                                Vedligehold

[Gode råd mod skimmelsvamp.pdf](https://rsbolig.dk/p/Files/Boligdata/Afdelinger/1-095/Vedligehold/Gode-r&#xE5;d-mod-skimmelsvamp.pdf)
                                            [Pas på fugtproblemet.pdf](https://rsbolig.dk/p/Files/Boligdata/Afdelinger/1-095/Vedligehold/Pas-p&#xE5;-fugtproblemet.pdf)
                                            [Vedligeholdelsesreglement.pdf](https://rsbolig.dk/p/Files/Boligdata/Afdelinger/1-095/Vedligehold/Vedligeholdelsesreglement.pdf)

## Placering
