---
title: "V. Strandsbjerg 50 - 68"
description: "1-6"
date: "2025-08-01"
created: "2025-06-12"
---

-
-
-
-
-

https://maps.google.dk/?q=56.0925944,8.2353113

# V. Strandsbjerg 50 - 68

Afdeling 6

## Velkommen til afdeling 6 V. Strandsbjerg 50 - 68

Afdelingen består af 10 rækkehuse. Boligerne er beliggende helt ud til Ringkøbing Fjord, dog stadig tæt ved centrum. Boligerne har egen have både foran og bagved husene. Der er desuden installeret solceller på boligerne.

## Faciliteter

Altan/Have

Ja

Der er en have til alle boliger.

Gangbesværet

Se mere

Der er trapper i alle boliger.

El

Se mere

Som lejer skal du, i forbindelse med indflytning, selv vælge hvilken el-leverandør du ønsker. Der er installeret solceller, som suplement til dit elforbrug.

Husdyr

Ja

Det er tilladt at holde ét husdyr.

Hvidevarer

Ja

Der hører komfur, ovn og emhætte med til lejligheden.

Gildesal

Nej

Der er ikke gildesal i afdelingen.

Råderet

Ja

Afdelngen har vedtaget, at man kan forny køkken og isolere gulv via råderetten.

TV

Ja

Der er installeret fibernet i boligen.

På hjemmesiden rah-fiber.dk kan du se hvilke udbydere af internet og TV, du kan vælge imellem.

Vand

Læs mere

Vand betales direkte til Ringkøbing-Skjern Forsyning.

Varme

Læs mere

Varme betales direkte til Ringkøbing Fjernvarme.

Vicevært

Ja

Vicevært i afdelingen

Skur

Ja

Der er depotrum til alle boliger.

Affald

Læs mere

I Ringkøbing-Skjern kommune skal man affaldssortere.
Til hver bolig, hører der en 240 L opdelt affaldscontainer.
Containeren bruges til mad- og restaffald.
Øvrigt affald skal afleveres på den kommunale genbrugsplads eller de offentlige affaldsstationer i byen.

Ladestander

Nej

Der er ikke ladestander til elbil i afdelingen.

                        Se flere

## Boliger i afdelingen

Familieboliger

3 rums

Familieboliger

Familieboliger

4 rums

Familieboliger

Boligtype

Værelser

Størrelse

Husleje

Indskud/dp

Plantegning

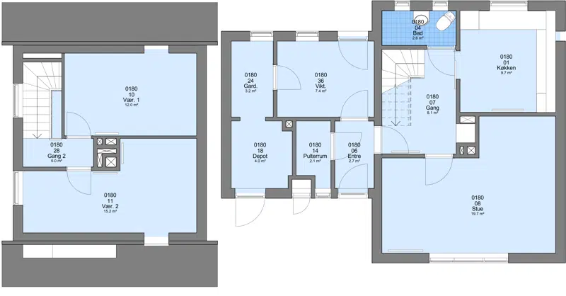
Familieboliger

3

91 m²

5796 kr.

15000 kr.

![](https://rsbolig.dk/i/MOLIRIMEDIA/b7ea1623-2243-4f13-0c6f-08dd9d2caa1e?width=800)






![](https://rsbolig.dk/i/MOLIRIMEDIA/b7ea1623-2243-4f13-0c6f-08dd9d2caa1e?width=800)

![](https://rsbolig.dk/i/MOLIRIMEDIA/261133e6-db5b-41cc-12db-08dd9d2caa1e?width=800)

![](https://rsbolig.dk/i/MOLIRIMEDIA/b7ea1623-2243-4f13-0c6f-08dd9d2caa1e?width=800)

![](https://rsbolig.dk/i/MOLIRIMEDIA/261133e6-db5b-41cc-12db-08dd9d2caa1e?width=800)

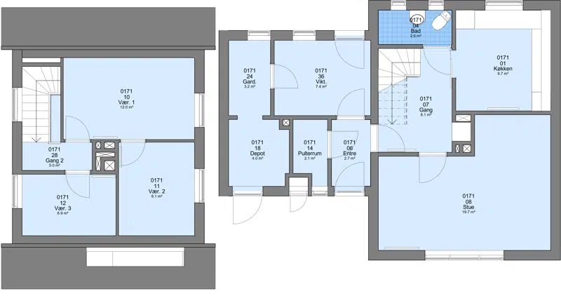
Familieboliger

4

91 m²

5796 kr.

15000 kr.

![](https://rsbolig.dk/i/MOLIRIMEDIA/46b2235c-474f-4c52-26f4-08dda22a7775?width=800)






![](https://rsbolig.dk/i/MOLIRIMEDIA/46b2235c-474f-4c52-26f4-08dda22a7775?width=800)

![](https://rsbolig.dk/i/MOLIRIMEDIA/9e742151-a596-4f7b-11f0-08dd9d2caa1e?width=800)

![](https://rsbolig.dk/i/MOLIRIMEDIA/46b2235c-474f-4c52-26f4-08dda22a7775?width=800)

![](https://rsbolig.dk/i/MOLIRIMEDIA/9e742151-a596-4f7b-11f0-08dd9d2caa1e?width=800)

## Afdelingsdokumenter

Her finder du nyttig information om din afdeling, såsom husorden, vedligeholdelse af dit lejemål, referater m.m.

###

                                                Husorden

[Husorden, tæt lavt byggeri, afd. 6.pdf](https://rsbolig.dk/p/Files/Boligdata/Afdelinger/1-006/Husorden/Husorden--t&#xE6;t-lavt-byggeri--afd.-6.pdf)

###

                                                Afdelingsmøder

[Rapport\_solceller\_termofotografering.pdf](https://rsbolig.dk/p/Files/Boligdata/Afdelinger/1-006/Afdelingsm&#xF8;der/Rapport_solceller_termofotografering.pdf)
                                            [2024-09-02 Referat afd.møde.pdf](https://rsbolig.dk/p/Files/Boligdata/Afdelinger/1-006/Afdelingsm&#xF8;der/2024-09-02-Referat-afd.m&#xF8;de.pdf)
                                            [2023-08-31 Referat afd.møde.pdf](https://rsbolig.dk/p/Files/Boligdata/Afdelinger/1-006/Afdelingsm&#xF8;der/2023-08-31-Referat-afd.m&#xF8;de.pdf)
                                            [2022-09-05, Referat afd. møde.pdf](https://rsbolig.dk/p/Files/Boligdata/Afdelinger/1-006/Afdelingsm&#xF8;der/2022-09-05--Referat-afd.-m&#xF8;de.pdf)
                                            [2021-09-13, Referat afd. møde.pdf](https://rsbolig.dk/p/Files/Boligdata/Afdelinger/1-006/Afdelingsm&#xF8;der/2021-09-13--Referat-afd.-m&#xF8;de.pdf)
                                            [2020-09-28, Dagsorden, ekstraordinært afd.møde.pdf](https://rsbolig.dk/p/Files/Boligdata/Afdelinger/1-006/Afdelingsm&#xF8;der/2020-09-28--Dagsorden--ekstraordin&#xE6;rt-afd.m&#xF8;de.pdf)
                                            [2020-09-07, Referat afd.møde.pdf](https://rsbolig.dk/p/Files/Boligdata/Afdelinger/1-006/Afdelingsm&#xF8;der/2020-09-07--Referat-afd.m&#xF8;de.pdf)
                                            [2020, Ændret mødedato ekstraordinært afd.møde.pdf](https://rsbolig.dk/p/Files/Boligdata/Afdelinger/1-006/Afdelingsm&#xF8;der/2020--&#xC6;ndret-m&#xF8;dedato-ekstraordin&#xE6;rt-afd.m&#xF8;de.pdf)
                                            [2019-09-09, Referat afd.møde.pdf](https://rsbolig.dk/p/Files/Boligdata/Afdelinger/1-006/Afdelingsm&#xF8;der/2019-09-09--Referat-afd.m&#xF8;de.pdf)
                                            [2018-12-04, Referat ekstraordinært afd. møde.pdf](https://rsbolig.dk/p/Files/Boligdata/Afdelinger/1-006/Afdelingsm&#xF8;der/2018-12-04--Referat-ekstraordin&#xE6;rt-afd.-m&#xF8;de.pdf)
                                            [2018-12-04, Indkaldelse ekstraordinært afd.møde.pdf](https://rsbolig.dk/p/Files/Boligdata/Afdelinger/1-006/Afdelingsm&#xF8;der/2018-12-04--Indkaldelse-ekstraordin&#xE6;rt-afd.m&#xF8;de.pdf)
                                            [2018-12-04, Bilag 2 ekstraordinært afd.møde.pdf](https://rsbolig.dk/p/Files/Boligdata/Afdelinger/1-006/Afdelingsm&#xF8;der/2018-12-04--Bilag-2-ekstraordin&#xE6;rt-afd.m&#xF8;de.pdf)
                                            [2018-12-04, Bilag 1 ekstraordinært afd.møde.pdf](https://rsbolig.dk/p/Files/Boligdata/Afdelinger/1-006/Afdelingsm&#xF8;der/2018-12-04--Bilag-1-ekstraordin&#xE6;rt-afd.m&#xF8;de.pdf)
                                            [2018-09-10, Referat afd.møde.pdf](https://rsbolig.dk/p/Files/Boligdata/Afdelinger/1-006/Afdelingsm&#xF8;der/2018-09-10--Referat-afd.m&#xF8;de.pdf)
                                            [2018-01-18, Referat ekstraordinært afd.møde.pdf](https://rsbolig.dk/p/Files/Boligdata/Afdelinger/1-006/Afdelingsm&#xF8;der/2018-01-18--Referat-ekstraordin&#xE6;rt-afd.m&#xF8;de.pdf)
                                            [2018-01-18, Dagsorden ekstraordinært afd.møde.pdf](https://rsbolig.dk/p/Files/Boligdata/Afdelinger/1-006/Afdelingsm&#xF8;der/2018-01-18--Dagsorden-ekstraordin&#xE6;rt-afd.m&#xF8;de.pdf)
                                            [2017-09-06, Referat afd.møde.pdf](https://rsbolig.dk/p/Files/Boligdata/Afdelinger/1-006/Afdelingsm&#xF8;der/2017-09-06--Referat-afd.m&#xF8;de.pdf)

###

                                                Afdelingsbestyrelsesmøder

[2025-06-20 Referat afd.bestyrelsensmøde.pdf](https://rsbolig.dk/p/Files/Boligdata/Afdelinger/1-006/Afdelingsbestyrelsesm&#xF8;der/2025-06-20-Referat-afd.bestyrelsensm&#xF8;de.pdf)
                                            [2025-04-24 Referat afd.bestyrelsesmøde.pdf](https://rsbolig.dk/p/Files/Boligdata/Afdelinger/1-006/Afdelingsbestyrelsesm&#xF8;der/2025-04-24-Referat-afd.bestyrelsesm&#xF8;de.pdf)
                                            [2024-08-04 Referat afd.bestyrelsesmøde.pdf](https://rsbolig.dk/p/Files/Boligdata/Afdelinger/1-006/Afdelingsbestyrelsesm&#xF8;der/2024-08-04-Referat-afd.bestyrelsesm&#xF8;de.pdf)
                                            [2024-05-27 Referat afd.bestyrelsesmøde.pdf](https://rsbolig.dk/p/Files/Boligdata/Afdelinger/1-006/Afdelingsbestyrelsesm&#xF8;der/2024-05-27-Referat-afd.bestyrelsesm&#xF8;de.pdf)
                                            [2024-03-11 Referat afd.bestyrelsesmøde.pdf](https://rsbolig.dk/p/Files/Boligdata/Afdelinger/1-006/Afdelingsbestyrelsesm&#xF8;der/2024-03-11-Referat-afd.bestyrelsesm&#xF8;de.pdf)
                                            [2023-10-24 Referat afd.bestyrelsesmøde.pdf](https://rsbolig.dk/p/Files/Boligdata/Afdelinger/1-006/Afdelingsbestyrelsesm&#xF8;der/2023-10-24-Referat-afd.bestyrelsesm&#xF8;de.pdf)
                                            [2023-05-30 Referat afd.bestyrelsesmøde.pdf](https://rsbolig.dk/p/Files/Boligdata/Afdelinger/1-006/Afdelingsbestyrelsesm&#xF8;der/2023-05-30-Referat-afd.bestyrelsesm&#xF8;de.pdf)
                                            [2023-04-11 Referat  afd.bestyrelsesmøde.pdf](https://rsbolig.dk/p/Files/Boligdata/Afdelinger/1-006/Afdelingsbestyrelsesm&#xF8;der/2023-04-11-Referat--afd.bestyrelsesm&#xF8;de.pdf)
                                            [2022-12-08 Referat afd.bestyrelsesmøde.pdf](https://rsbolig.dk/p/Files/Boligdata/Afdelinger/1-006/Afdelingsbestyrelsesm&#xF8;der/2022-12-08-Referat-afd.bestyrelsesm&#xF8;de.pdf)
                                            [2022-09-12 Referat afd.bestyrelsesmøde.pdf](https://rsbolig.dk/p/Files/Boligdata/Afdelinger/1-006/Afdelingsbestyrelsesm&#xF8;der/2022-09-12-Referat-afd.bestyrelsesm&#xF8;de.pdf)
                                            [2017-12-05 Referat afd.bestyrelsesmøde.pdf](https://rsbolig.dk/p/Files/Boligdata/Afdelinger/1-006/Afdelingsbestyrelsesm&#xF8;der/2017-12-05-Referat-afd.bestyrelsesm&#xF8;de.pdf)
                                            [2017-12-05, Dagsorden afd.bestyrelsesmøde.pdf](https://rsbolig.dk/p/Files/Boligdata/Afdelinger/1-006/Afdelingsbestyrelsesm&#xF8;der/2017-12-05--Dagsorden-afd.bestyrelsesm&#xF8;de.pdf)

###

                                                Øvrigt

[Afd. 6 - Indflytningsbrochure.pdf](https://rsbolig.dk/p/Files/Boligdata/Afdelinger/1-006/&#xD8;vrigt/Afd.-6---Indflytningsbrochure.pdf)
                                            [Solcelleanlæg.pdf](https://rsbolig.dk/p/Files/Boligdata/Afdelinger/1-006/&#xD8;vrigt/Solcelleanl&#xE6;g.pdf)
                                            [Vedtægter Rsbolig.pdf](https://rsbolig.dk/p/Files/Boligdata/Afdelinger/1-006/&#xD8;vrigt/Vedt&#xE6;gter-Rsbolig.pdf)

###

                                                Vedligehold

[Gode råd mod skimmelsvamp.pdf](https://rsbolig.dk/p/Files/Boligdata/Afdelinger/1-006/Vedligehold/Gode-r&#xE5;d-mod-skimmelsvamp.pdf)
                                            [Pas på fugtproblemet.pdf](https://rsbolig.dk/p/Files/Boligdata/Afdelinger/1-006/Vedligehold/Pas-p&#xE5;-fugtproblemet.pdf)
                                            [Vedligeholdelsesreglement.pdf](https://rsbolig.dk/p/Files/Boligdata/Afdelinger/1-006/Vedligehold/Vedligeholdelsesreglement.pdf)

## Placering
