---
title: "Toften/Baunsbækvej"
description: "1-94"
date: "2025-12-09"
created: "2025-07-09"
---

-
-
-
-
-
-
-
-
-
-
-
-
-

https://maps.google.dk/?q=55.908235,%208.518388

# Toften/Baunsbækvej

Afdeling 94

## Velkommen til afdeling 94 Toften/Baunsbækvej

Afdelingen består af 31 nybyggede røgfri lavenergi boliger.

Boligerne er placeret på den gamle rådhusgrund midt i Tarm by.

## Faciliteter

Altan/Have

Ja

Der er altan til boligerne med indgang på 1. sal. Boligerne med indgang i stueetagen har en terrasse.

El

Se mere

Udgiften til el betales aconto til boligforeningen.

Der er installeret solceller, som suplement til dit elforbrug.

Husdyr

Ja

Det er tilladt at holde ét husdyr.

Hvidevarer

Ja

Der er komfur, ovn, emhætte og Køle-/fryseskab i boligen.

Gildesal

Nej

Der er ikke gildesal i afdelingen.

Råderet

Nej

Der er ikke vedtaget mulighed for råderet i afdelingen.

TV

Ja

Der er installeret fibernet i boligen.

På hjemmesiden rah-fiber.dk kan du se hvilke udbydere af internet og TV, du kan vælge imellem.

Varme

Læs mere

Boligerne opvarmes via fjernvarme.

Vicevært

Ja

Vicevært i afdelingen

Skur

Ja

Der er et skur til hver bolig.

Affald

Læs mere

I Ringkøbing-Skjern Kommune skal man affaldssortere.

Der er fælles affaldsstation, hvor madaffald, restaffald, glas og pap kan afleveres.

Øvrigt affald afleveres på den kommunale genbrugsplads eller de offentlige affaldsstationer i byen.

Ladestander

Der er ladestander fra Prostrøm i afdelingen.

                        Se flere

## Boliger i afdelingen

Familieboliger

2 rums

Familieboliger

Familieboliger

3 rums

Familieboliger

Boligtype

Værelser

Størrelse

Husleje

Indskud/dp

Plantegning

Familieboliger

2

91 m²

6876 kr.

14338 kr.

![](https://rsbolig.dk/i/MOLIRIMEDIA/3a5c2f88-a414-4d8f-0ba7-08dd9d2caa1e?width=800)






![](https://rsbolig.dk/i/MOLIRIMEDIA/3a5c2f88-a414-4d8f-0ba7-08dd9d2caa1e?width=800)

![](https://rsbolig.dk/i/MOLIRIMEDIA/f892b417-a1ee-4bba-13b4-08dd9d2caa1e?width=800)

![](https://rsbolig.dk/i/MOLIRIMEDIA/3a5c2f88-a414-4d8f-0ba7-08dd9d2caa1e?width=800)

![](https://rsbolig.dk/i/MOLIRIMEDIA/f892b417-a1ee-4bba-13b4-08dd9d2caa1e?width=800)

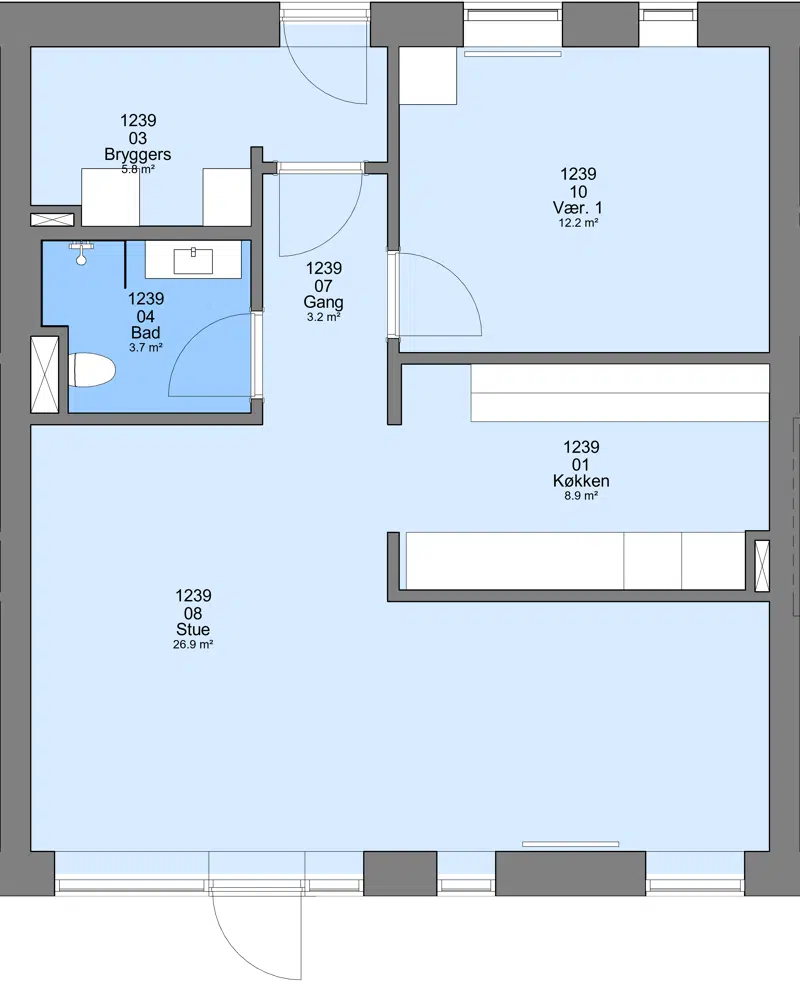
Familieboliger

2

67 m²

6876 kr.

28675 kr.

![](https://rsbolig.dk/i/MOLIRIMEDIA/87a44077-9ac6-4436-0bfd-08dd9d2caa1e?width=800)






![](https://rsbolig.dk/i/MOLIRIMEDIA/87a44077-9ac6-4436-0bfd-08dd9d2caa1e?width=800)

![](https://rsbolig.dk/i/MOLIRIMEDIA/d99094cf-d5fe-456f-102f-08dd9d2caa1e?width=800)

![](https://rsbolig.dk/i/MOLIRIMEDIA/87a44077-9ac6-4436-0bfd-08dd9d2caa1e?width=800)

![](https://rsbolig.dk/i/MOLIRIMEDIA/d99094cf-d5fe-456f-102f-08dd9d2caa1e?width=800)

Familieboliger

2

85 m²

7364 kr.

16108 kr.

![](https://rsbolig.dk/i/MOLIRIMEDIA/a37fd1c5-c39c-4b30-2716-08dda22a7775?width=800)






![](https://rsbolig.dk/i/MOLIRIMEDIA/a37fd1c5-c39c-4b30-2716-08dda22a7775?width=800)

![](https://rsbolig.dk/i/MOLIRIMEDIA/9caf238e-cc49-4945-0e4d-08dd9d2caa1e?width=800)

![](https://rsbolig.dk/i/MOLIRIMEDIA/a37fd1c5-c39c-4b30-2716-08dda22a7775?width=800)

![](https://rsbolig.dk/i/MOLIRIMEDIA/9caf238e-cc49-4945-0e4d-08dd9d2caa1e?width=800)

Familieboliger

2

79 m²

7364 kr.

32215 kr.

![](https://rsbolig.dk/i/MOLIRIMEDIA/9fe2d976-1397-4b76-0b10-08dd9d2caa1e?width=800)






![](https://rsbolig.dk/i/MOLIRIMEDIA/9fe2d976-1397-4b76-0b10-08dd9d2caa1e?width=800)

![](https://rsbolig.dk/i/MOLIRIMEDIA/22d72a7d-afb5-42b5-1062-08dd9d2caa1e?width=800)

![](https://rsbolig.dk/i/MOLIRIMEDIA/9fe2d976-1397-4b76-0b10-08dd9d2caa1e?width=800)

![](https://rsbolig.dk/i/MOLIRIMEDIA/22d72a7d-afb5-42b5-1062-08dd9d2caa1e?width=800)

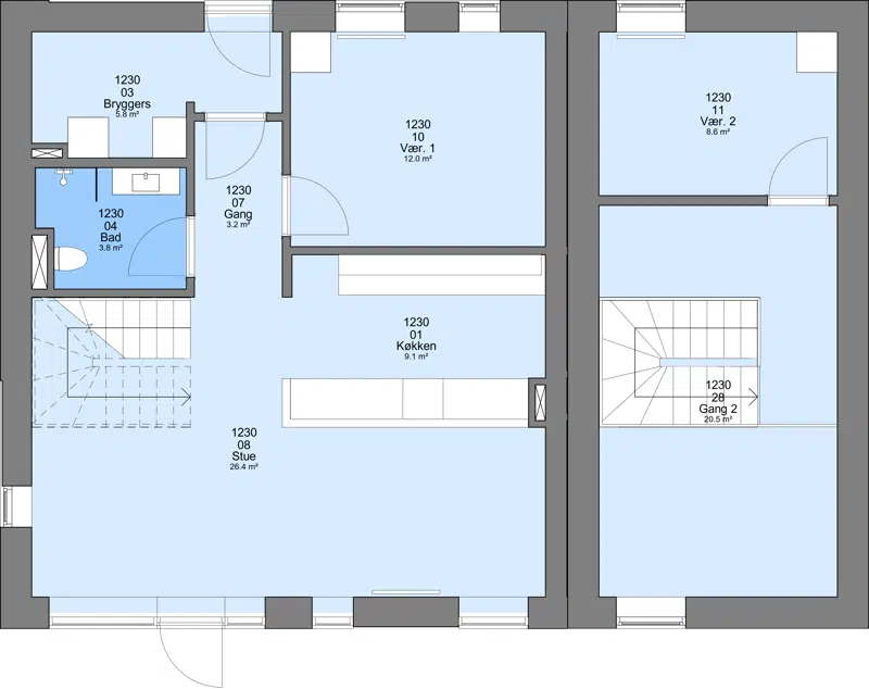
Familieboliger

3

108 m²

9125 kr.

44225 kr.

![](https://rsbolig.dk/i/MOLIRIMEDIA/094e139a-ddcb-4039-0bdd-08dd9d2caa1e?width=800)






![](https://rsbolig.dk/i/MOLIRIMEDIA/094e139a-ddcb-4039-0bdd-08dd9d2caa1e?width=800)

![](https://rsbolig.dk/i/MOLIRIMEDIA/6cdecb42-f956-4e21-126b-08dd9d2caa1e?width=800)

![](https://rsbolig.dk/i/MOLIRIMEDIA/094e139a-ddcb-4039-0bdd-08dd9d2caa1e?width=800)

![](https://rsbolig.dk/i/MOLIRIMEDIA/6cdecb42-f956-4e21-126b-08dd9d2caa1e?width=800)

Familieboliger

3

99 m²

8309 kr.

19538 kr.

![](https://rsbolig.dk/i/MOLIRIMEDIA/0e91cf82-b07b-4766-2711-08dda22a7775?width=800)






![](https://rsbolig.dk/i/MOLIRIMEDIA/0e91cf82-b07b-4766-2711-08dda22a7775?width=800)

![](https://rsbolig.dk/i/MOLIRIMEDIA/ad12d705-f236-4c11-101e-08dd9d2caa1e?width=800)

![](https://rsbolig.dk/i/MOLIRIMEDIA/0e91cf82-b07b-4766-2711-08dda22a7775?width=800)

![](https://rsbolig.dk/i/MOLIRIMEDIA/ad12d705-f236-4c11-101e-08dd9d2caa1e?width=800)

Familieboliger

3

99 m²

8309 kr.

19538 kr.

![](https://rsbolig.dk/i/MOLIRIMEDIA/e13ff64f-f289-4fef-0ca9-08dd9d2caa1e?width=800)






![](https://rsbolig.dk/i/MOLIRIMEDIA/e13ff64f-f289-4fef-0ca9-08dd9d2caa1e?width=800)

![](https://rsbolig.dk/i/MOLIRIMEDIA/dfa153ba-5ff2-407d-11d6-08dd9d2caa1e?width=800)

![](https://rsbolig.dk/i/MOLIRIMEDIA/e13ff64f-f289-4fef-0ca9-08dd9d2caa1e?width=800)

![](https://rsbolig.dk/i/MOLIRIMEDIA/dfa153ba-5ff2-407d-11d6-08dd9d2caa1e?width=800)

Familieboliger

3

91 m²

7685 kr.

18100 kr.

![](https://rsbolig.dk/i/MOLIRIMEDIA/da09f07a-6f90-466c-0fd4-08dd9d2caa1e?width=800)






![](https://rsbolig.dk/i/MOLIRIMEDIA/da09f07a-6f90-466c-0fd4-08dd9d2caa1e?width=800)

![](https://rsbolig.dk/i/MOLIRIMEDIA/c1ca8b18-66a0-4b97-137d-08dd9d2caa1e?width=800)

![](https://rsbolig.dk/i/MOLIRIMEDIA/da09f07a-6f90-466c-0fd4-08dd9d2caa1e?width=800)

![](https://rsbolig.dk/i/MOLIRIMEDIA/c1ca8b18-66a0-4b97-137d-08dd9d2caa1e?width=800)

Familieboliger

3

91 m²

7908 kr.

18100 kr.

![](https://rsbolig.dk/i/MOLIRIMEDIA/ed8d4756-f89f-4e82-2712-08dda22a7775?width=800)






![](https://rsbolig.dk/i/MOLIRIMEDIA/ed8d4756-f89f-4e82-2712-08dda22a7775?width=800)

![](https://rsbolig.dk/i/MOLIRIMEDIA/491dd8dc-5116-49b7-0db5-08dd9d2caa1e?width=800)

![](https://rsbolig.dk/i/MOLIRIMEDIA/ed8d4756-f89f-4e82-2712-08dda22a7775?width=800)

![](https://rsbolig.dk/i/MOLIRIMEDIA/491dd8dc-5116-49b7-0db5-08dd9d2caa1e?width=800)

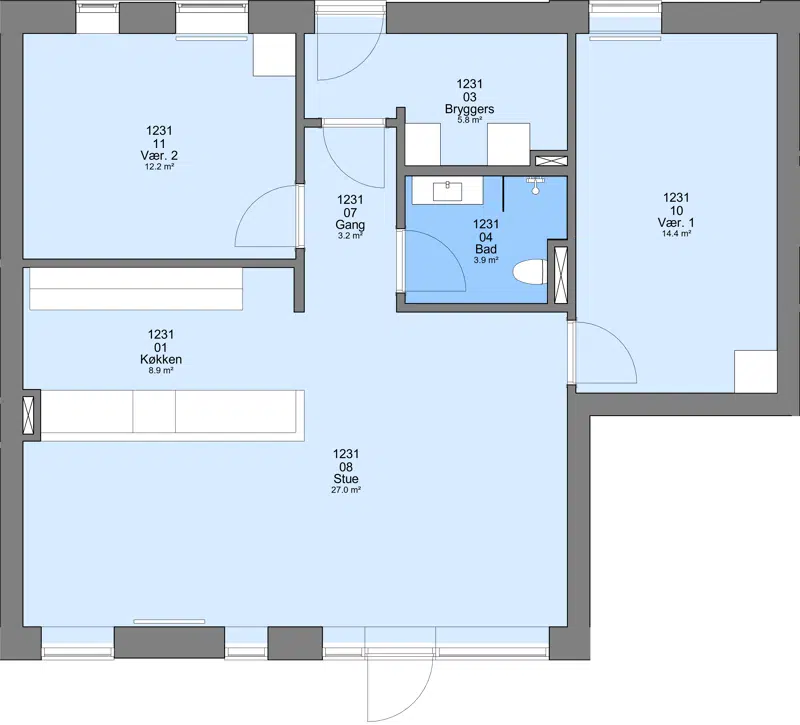
Familieboliger

3

85 m²

8008 kr.

36200 kr.

![](https://rsbolig.dk/i/MOLIRIMEDIA/82170ffa-ec9f-46a3-2713-08dda22a7775?width=800)






![](https://rsbolig.dk/i/MOLIRIMEDIA/82170ffa-ec9f-46a3-2713-08dda22a7775?width=800)

![](https://rsbolig.dk/i/MOLIRIMEDIA/55cc7b40-8ecd-492d-0f1d-08dd9d2caa1e?width=800)

![](https://rsbolig.dk/i/MOLIRIMEDIA/82170ffa-ec9f-46a3-2713-08dda22a7775?width=800)

![](https://rsbolig.dk/i/MOLIRIMEDIA/55cc7b40-8ecd-492d-0f1d-08dd9d2caa1e?width=800)

Familieboliger

3

91 m²

7908 kr.

18100 kr.

![](https://rsbolig.dk/i/MOLIRIMEDIA/09d8a4a7-e4f5-4bb4-2727-08dda22a7775?width=800)






![](https://rsbolig.dk/i/MOLIRIMEDIA/09d8a4a7-e4f5-4bb4-2727-08dda22a7775?width=800)

![](https://rsbolig.dk/i/MOLIRIMEDIA/3b45180a-89d4-41ef-0b51-08dd9d2caa1e?width=800)

![](https://rsbolig.dk/i/MOLIRIMEDIA/09d8a4a7-e4f5-4bb4-2727-08dda22a7775?width=800)

![](https://rsbolig.dk/i/MOLIRIMEDIA/3b45180a-89d4-41ef-0b51-08dd9d2caa1e?width=800)

Familieboliger

3

85 m²

7908 kr.

36200 kr.

![](https://rsbolig.dk/i/MOLIRIMEDIA/f162f1a0-0a26-4dc3-0c15-08dd9d2caa1e?width=800)






![](https://rsbolig.dk/i/MOLIRIMEDIA/f162f1a0-0a26-4dc3-0c15-08dd9d2caa1e?width=800)

![](https://rsbolig.dk/i/MOLIRIMEDIA/65d486b9-2c19-4733-1480-08dd9d2caa1e?width=800)

![](https://rsbolig.dk/i/MOLIRIMEDIA/f162f1a0-0a26-4dc3-0c15-08dd9d2caa1e?width=800)

![](https://rsbolig.dk/i/MOLIRIMEDIA/65d486b9-2c19-4733-1480-08dd9d2caa1e?width=800)

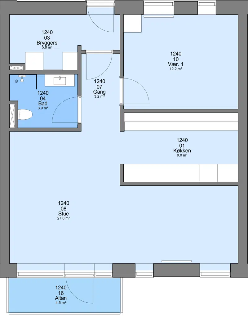
Familieboliger

3

99 m²

8309 kr.

19538 kr.

![](https://rsbolig.dk/i/MOLIRIMEDIA/a335469c-3621-4126-10aa-08dd9d2caa1e?width=800)






![](https://rsbolig.dk/i/MOLIRIMEDIA/a335469c-3621-4126-10aa-08dd9d2caa1e?width=800)

![](https://rsbolig.dk/i/MOLIRIMEDIA/ad490f50-09a7-475f-14b4-08dd9d2caa1e?width=800)

![](https://rsbolig.dk/i/MOLIRIMEDIA/a335469c-3621-4126-10aa-08dd9d2caa1e?width=800)

![](https://rsbolig.dk/i/MOLIRIMEDIA/ad490f50-09a7-475f-14b4-08dd9d2caa1e?width=800)

Familieboliger

3

92 m²

8309 kr.

39075 kr.

![](https://rsbolig.dk/i/MOLIRIMEDIA/afd10173-32fc-4c70-29ac-08dda22a7775?width=800)






![](https://rsbolig.dk/i/MOLIRIMEDIA/afd10173-32fc-4c70-29ac-08dda22a7775?width=800)

![](https://rsbolig.dk/i/MOLIRIMEDIA/5d97ae5d-be50-4eed-0b5d-08dd9d2caa1e?width=800)

![](https://rsbolig.dk/i/MOLIRIMEDIA/afd10173-32fc-4c70-29ac-08dda22a7775?width=800)

![](https://rsbolig.dk/i/MOLIRIMEDIA/5d97ae5d-be50-4eed-0b5d-08dd9d2caa1e?width=800)

Familieboliger

3

108 m²

9025 kr.

44225 kr.

![](https://rsbolig.dk/i/MOLIRIMEDIA/e78d8359-cdb6-4686-0e43-08dd9d2caa1e?width=800)






![](https://rsbolig.dk/i/MOLIRIMEDIA/e78d8359-cdb6-4686-0e43-08dd9d2caa1e?width=800)

![](https://rsbolig.dk/i/MOLIRIMEDIA/d25e1d82-545e-4eea-0e67-08dd9d2caa1e?width=800)

![](https://rsbolig.dk/i/MOLIRIMEDIA/e78d8359-cdb6-4686-0e43-08dd9d2caa1e?width=800)

![](https://rsbolig.dk/i/MOLIRIMEDIA/d25e1d82-545e-4eea-0e67-08dd9d2caa1e?width=800)

## Afdelingsdokumenter

Her finder du nyttig information om din afdeling, såsom husorden, vedligeholdelse af dit lejemål, referater m.m.

###

                                                Husorden

[Husorden, tæt lavt byggeri, afd. 94.pdf](https://rsbolig.dk/p/Files/Boligdata/Afdelinger/1-094/Husorden/Husorden--t&#xE6;t-lavt-byggeri--afd.-94.pdf)

###

                                                Afdelingsmøder

[2025 Referat afd.møde.pdf](https://rsbolig.dk/p/Files/Boligdata/Afdelinger/1-094/Afdelingsm&#xF8;der/2025-Referat-afd.m&#xF8;de.pdf)
                                            [2024 Referat afd.møde.pdf](https://rsbolig.dk/p/Files/Boligdata/Afdelinger/1-094/Afdelingsm&#xF8;der/2024-Referat-afd.m&#xF8;de.pdf)
                                            [2023 Referat afd.møde.pdf](https://rsbolig.dk/p/Files/Boligdata/Afdelinger/1-094/Afdelingsm&#xF8;der/2023-Referat-afd.m&#xF8;de.pdf)
                                            [2022 Referat afd.møde.pdf](https://rsbolig.dk/p/Files/Boligdata/Afdelinger/1-094/Afdelingsm&#xF8;der/2022-Referat-afd.m&#xF8;de.pdf)

###

                                                Øvrigt

[Tarm Afd. 94 - Indflytningsbrochure.pdf](https://rsbolig.dk/p/Files/Boligdata/Afdelinger/1-094/&#xD8;vrigt/Tarm-Afd.-94---Indflytningsbrochure.pdf)
                                            [Vedtægter Rsbolig.pdf](https://rsbolig.dk/p/Files/Boligdata/Afdelinger/1-094/&#xD8;vrigt/Vedt&#xE6;gter-Rsbolig.pdf)

###

                                                Vedligehold

[Gode råd mod skimmelsvamp.pdf](https://rsbolig.dk/p/Files/Boligdata/Afdelinger/1-094/Vedligehold/Gode-r&#xE5;d-mod-skimmelsvamp.pdf)
                                            [Pas på fugtproblemet.pdf](https://rsbolig.dk/p/Files/Boligdata/Afdelinger/1-094/Vedligehold/Pas-p&#xE5;-fugtproblemet.pdf)
                                            [Vedligeholdelsesreglement.pdf](https://rsbolig.dk/p/Files/Boligdata/Afdelinger/1-094/Vedligehold/Vedligeholdelsesreglement.pdf)

## Placering
