---
title: "Toften"
description: "1-81"
date: "2025-11-10"
created: "2025-06-12"
---

-
-
-

https://maps.google.dk/?q=55.907709,8.5187959

# Toften

Afdeling 81

## Velkommen til afdeling 81 Toften

Afdelingen består af 10 senior boliger bygget som etagebyggeri. Boligerne er beliggende i Tarm bymidte. I kælderen er der depotrum tilhørende hver bolig, samt fælles cykelparkering og vaskeri. For at leje en bolig i denne afdeling, skal man være mindst 45 år. Derudover må der heller ikke være hjemmeboende børn.

## Faciliteter

Altan/Have

Ja

Der er altan til boligerne.

Gangbesværet

Se mere

Nogle af boligerne ligger på 1. sal.
Der er dørtrin i boligerne og der kan forekomme niveauforskelle ved indgangen.

El

Se mere

Som lejer skal du, i forbindelse med indflytning, selv vælge hvilken el-leverandør du ønsker.

Husdyr

Nej

Det er ikke tilladt at holde husdyr.

Hvidevarer

Ja

Der hører komfur, ovn og emhætte med til lejligheden.

Gildesal

Nej

Der er ikke gildesal i afdelingen.

Råderet

Nej

Der er ikke vedtaget mulighed for råderet i afdelingen.

TV

Ja

Der er installeret fibernet i boligen.

På hjemmesiden rah-fiber.dk kan du se hvilke udbydere af internet og TV, du kan vælge imellem.

Vand

Læs mere

Udgiften til vand er inkl. i boliglejen.

Varme

Læs mere

Boligerne opvarmes med fjernvarme, som betales aconto til Boligforeningen.

Vicevært

Ja

Vicevært i afdelingen

Fællesvaskeri

Ja

Vaskeri i afdelingen

Affald

Læs mere

I Ringkøbing-Skjern Kommune skal man affaldssortere.

Der er fælles affaldsstation, hvor madaffald og restaffald kan afleveres.

Øvrigt affald afleveres på den kommunale genbrugsplads.

Ladestander

Nej

Der er ikke ladestander til elbil i afdelingen.

                        Se flere

## Boliger i afdelingen

Familieboliger

2 rums

Familieboliger

Seniorboliger

2 rums

Seniorboliger

Familieboliger

3 rums

Familieboliger

Seniorboliger

3 rums

Seniorboliger

Boligtype

Værelser

Størrelse

Husleje

Indskud/dp

Plantegning

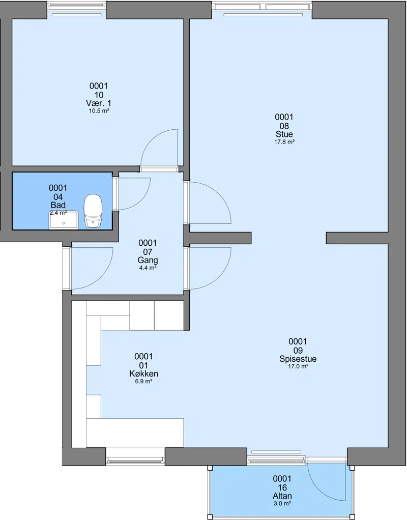
Familieboliger

2

68 m²

5182 kr.

13000 kr.

![](https://rsbolig.dk/i/MOLIRIMEDIA/79487f26-9f8f-4901-26c4-08dda22a7775?width=800)






![](https://rsbolig.dk/i/MOLIRIMEDIA/79487f26-9f8f-4901-26c4-08dda22a7775?width=800)

![](https://rsbolig.dk/i/MOLIRIMEDIA/09821a59-aa19-4805-124f-08dd9d2caa1e?width=800)

![](https://rsbolig.dk/i/MOLIRIMEDIA/79487f26-9f8f-4901-26c4-08dda22a7775?width=800)

![](https://rsbolig.dk/i/MOLIRIMEDIA/09821a59-aa19-4805-124f-08dd9d2caa1e?width=800)

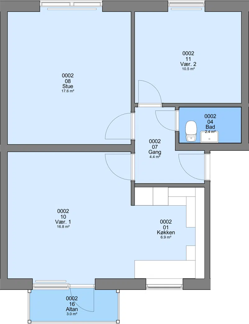
Familieboliger

3

75 m²

5612 kr.

15000 kr.

![](https://rsbolig.dk/i/MOLIRIMEDIA/665e9776-8475-4d2d-d9f0-08dd9de71a53?width=800)






![](https://rsbolig.dk/i/MOLIRIMEDIA/665e9776-8475-4d2d-d9f0-08dd9de71a53?width=800)

![](https://rsbolig.dk/i/MOLIRIMEDIA/2a06c2fb-f600-4b68-0eff-08dd9d2caa1e?width=800)

![](https://rsbolig.dk/i/MOLIRIMEDIA/665e9776-8475-4d2d-d9f0-08dd9de71a53?width=800)

![](https://rsbolig.dk/i/MOLIRIMEDIA/2a06c2fb-f600-4b68-0eff-08dd9d2caa1e?width=800)

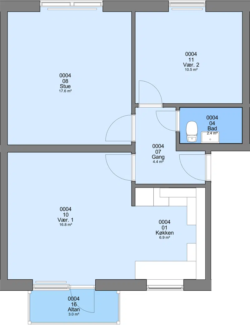
Familieboliger

3

75 m²

5612 kr.

15000 kr.

![](https://rsbolig.dk/i/MOLIRIMEDIA/7cb5136d-7560-45a4-10bd-08dd9d2caa1e?width=800)






![](https://rsbolig.dk/i/MOLIRIMEDIA/7cb5136d-7560-45a4-10bd-08dd9d2caa1e?width=800)

![](https://rsbolig.dk/i/MOLIRIMEDIA/440ee19a-3c6b-42a1-1451-08dd9d2caa1e?width=800)

![](https://rsbolig.dk/i/MOLIRIMEDIA/7cb5136d-7560-45a4-10bd-08dd9d2caa1e?width=800)

![](https://rsbolig.dk/i/MOLIRIMEDIA/440ee19a-3c6b-42a1-1451-08dd9d2caa1e?width=800)

Seniorboliger

2

59 m²

4270 kr.

11000 kr.

![](https://rsbolig.dk/i/MOLIRIMEDIA/297dce71-b81e-4c93-d94b-08dd9de71a53?width=800)






![](https://rsbolig.dk/i/MOLIRIMEDIA/297dce71-b81e-4c93-d94b-08dd9de71a53?width=800)

![](https://rsbolig.dk/i/MOLIRIMEDIA/f214e7ea-56a9-480d-108d-08dd9d2caa1e?width=800)

![](https://rsbolig.dk/i/MOLIRIMEDIA/297dce71-b81e-4c93-d94b-08dd9de71a53?width=800)

![](https://rsbolig.dk/i/MOLIRIMEDIA/f214e7ea-56a9-480d-108d-08dd9d2caa1e?width=800)

Seniorboliger

2

66 m²

5058 kr.

15000 kr.

![](https://rsbolig.dk/i/MOLIRIMEDIA/d73b88df-2c23-49d2-0aa7-08dd9d2caa1e?width=800)






![](https://rsbolig.dk/i/MOLIRIMEDIA/d73b88df-2c23-49d2-0aa7-08dd9d2caa1e?width=800)

![](https://rsbolig.dk/i/MOLIRIMEDIA/c5445f97-334c-4426-0b34-08dd9d2caa1e?width=800)

![](https://rsbolig.dk/i/MOLIRIMEDIA/d73b88df-2c23-49d2-0aa7-08dd9d2caa1e?width=800)

![](https://rsbolig.dk/i/MOLIRIMEDIA/c5445f97-334c-4426-0b34-08dd9d2caa1e?width=800)

Seniorboliger

2

59 m²

4624 kr.

11000 kr.

![](https://rsbolig.dk/i/MOLIRIMEDIA/c101bea7-d705-48de-13d0-08dd9d2caa1e?width=800)






![](https://rsbolig.dk/i/MOLIRIMEDIA/c101bea7-d705-48de-13d0-08dd9d2caa1e?width=800)

![](https://rsbolig.dk/i/MOLIRIMEDIA/3a1b7567-2a83-4308-13d3-08dd9d2caa1e?width=800)

![](https://rsbolig.dk/i/MOLIRIMEDIA/c101bea7-d705-48de-13d0-08dd9d2caa1e?width=800)

![](https://rsbolig.dk/i/MOLIRIMEDIA/3a1b7567-2a83-4308-13d3-08dd9d2caa1e?width=800)

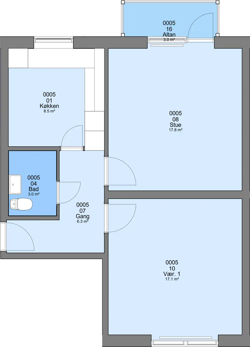
Seniorboliger

3

75 m²

5413 kr.

15000 kr.

![](https://rsbolig.dk/i/MOLIRIMEDIA/2ea83516-6bf6-4fbe-26f9-08dda22a7775?width=800)






![](https://rsbolig.dk/i/MOLIRIMEDIA/2ea83516-6bf6-4fbe-26f9-08dda22a7775?width=800)

![](https://rsbolig.dk/i/MOLIRIMEDIA/cb844dd2-9d20-4b45-0d3e-08dd9d2caa1e?width=800)

![](https://rsbolig.dk/i/MOLIRIMEDIA/2ea83516-6bf6-4fbe-26f9-08dda22a7775?width=800)

![](https://rsbolig.dk/i/MOLIRIMEDIA/cb844dd2-9d20-4b45-0d3e-08dd9d2caa1e?width=800)

Seniorboliger

3

75 m²

5612 kr.

15000 kr.

![](https://rsbolig.dk/i/MOLIRIMEDIA/e8439f42-fa56-4860-d9ba-08dd9de71a53?width=800)






![](https://rsbolig.dk/i/MOLIRIMEDIA/e8439f42-fa56-4860-d9ba-08dd9de71a53?width=800)

![](https://rsbolig.dk/i/MOLIRIMEDIA/1a9dbe1c-68ad-4a89-0f7e-08dd9d2caa1e?width=800)

![](https://rsbolig.dk/i/MOLIRIMEDIA/e8439f42-fa56-4860-d9ba-08dd9de71a53?width=800)

![](https://rsbolig.dk/i/MOLIRIMEDIA/1a9dbe1c-68ad-4a89-0f7e-08dd9d2caa1e?width=800)

## Afdelingsdokumenter

Her finder du nyttig information om din afdeling, såsom husorden, vedligeholdelse af dit lejemål, referater m.m.

###

                                                Husorden

[Husorden, etage byggeri, afd. 81.pdf](https://rsbolig.dk/p/Files/Boligdata/Afdelinger/1-081/Husorden/Husorden--etage-byggeri--afd.-81.pdf)

###

                                                Afdelingsmøder

[2025 Referat afd.møde.pdf](https://rsbolig.dk/p/Files/Boligdata/Afdelinger/1-081/Afdelingsm&#xF8;der/2025-Referat-afd.m&#xF8;de.pdf)
                                            [2024 Referat afd.møde.pdf](https://rsbolig.dk/p/Files/Boligdata/Afdelinger/1-081/Afdelingsm&#xF8;der/2024-Referat-afd.m&#xF8;de.pdf)
                                            [2023 Referat afd.møde.pdf](https://rsbolig.dk/p/Files/Boligdata/Afdelinger/1-081/Afdelingsm&#xF8;der/2023-Referat-afd.m&#xF8;de.pdf)
                                            [2022 Referat afd.møde.pdf](https://rsbolig.dk/p/Files/Boligdata/Afdelinger/1-081/Afdelingsm&#xF8;der/2022-Referat-afd.m&#xF8;de.pdf)
                                            [2021 Referat afd.møde.pdf](https://rsbolig.dk/p/Files/Boligdata/Afdelinger/1-081/Afdelingsm&#xF8;der/2021-Referat-afd.m&#xF8;de.pdf)
                                            [2020 Referat afd.møde.pdf](https://rsbolig.dk/p/Files/Boligdata/Afdelinger/1-081/Afdelingsm&#xF8;der/2020-Referat-afd.m&#xF8;de.pdf)
                                            [2019 Referat afd.møde.pdf](https://rsbolig.dk/p/Files/Boligdata/Afdelinger/1-081/Afdelingsm&#xF8;der/2019-Referat-afd.m&#xF8;de.pdf)
                                            [2018 Referat afd.møde.pdf](https://rsbolig.dk/p/Files/Boligdata/Afdelinger/1-081/Afdelingsm&#xF8;der/2018-Referat-afd.m&#xF8;de.pdf)
                                            [2017 Referat afd.møde.pdf](https://rsbolig.dk/p/Files/Boligdata/Afdelinger/1-081/Afdelingsm&#xF8;der/2017-Referat-afd.m&#xF8;de.pdf)

###

                                                Øvrigt

[Tarm Afd. 81 - Indflytningsbrochure.pdf](https://rsbolig.dk/p/Files/Boligdata/Afdelinger/1-081/&#xD8;vrigt/Tarm-Afd.-81---Indflytningsbrochure.pdf)
                                            [Vedtægter Rsbolig.pdf](https://rsbolig.dk/p/Files/Boligdata/Afdelinger/1-081/&#xD8;vrigt/Vedt&#xE6;gter-Rsbolig.pdf)

###

                                                Vedligehold

[Gode råd mod skimmelsvamp.pdf](https://rsbolig.dk/p/Files/Boligdata/Afdelinger/1-081/Vedligehold/Gode-r&#xE5;d-mod-skimmelsvamp.pdf)
                                            [Pas på fugtproblemet.pdf](https://rsbolig.dk/p/Files/Boligdata/Afdelinger/1-081/Vedligehold/Pas-p&#xE5;-fugtproblemet.pdf)
                                            [Vedligeholdelsesreglement.pdf](https://rsbolig.dk/p/Files/Boligdata/Afdelinger/1-081/Vedligehold/Vedligeholdelsesreglement.pdf)

## Placering
