---
title: "Strandvænget"
description: "1-13"
date: "2025-08-01"
created: "2025-06-12"
---

-
-
-
-
-

https://maps.google.dk/?q=56.0915919,8.2376898

# Strandvænget

Afdeling 13

## Velkommen til afdeling 13 Strandvænget

Afdelingen består af 15 rækkehuse beliggende centralt i Ringkøbing. Tæt ved centrum og fjorden.

## Faciliteter

Altan/Have

Ja

Der er en have til alle boligerne.

Gangbesværet

Se mere

Der er dørtrin i boligerne og der kan forekomme niveauforskelle ved indgangen.
Alle 3 rums boliger er i to plan med indvendige trapper.

El

Se mere

Som lejer skal du, i forbindelse med indflytning, selv vælge hvilken el-leverandør du ønsker.

Husdyr

Ja

Det er tilladt at holde ét husdyr.

Hvidevarer

Ja

Der hører komfur, ovn og emhætte med til lejligheden.

Gildesal

Nej

Der er ikke gildesal i afdelingen.

Råderet

Ja

Afdelingen har vedtaget, at man kan forny døre og garderobe via råderet.

TV

Ja

Der er installeret fibernet i boligen.

På hjemmesiden rah-fiber.dk kan du se hvilke udbydere af internet og TV, du kan vælge imellem.

Vand

Læs mere

Vand betales direkte til Ringkøbing-Skjern Forsyning.

Varme

Læs mere

Varme betales direkte til Ringkøbing Fjernvarme.

Vicevært

Ja

Vicevært i afdelingen

Skur

Ja

Der medfølger to skure til hver bolig.

Derudover er der mulighed for at leje en af afdelingens 6 carporte.

Affald

Læs mere

I Ringkøbing-Skjern Kommune skal man affaldssortere.
Der er fælles en affaldsstation, hvor madaffald, restaffald, glas og pap kan afleveres.
Øvrigt affald afleveres på den kommunale genbrugsplads eller de offentlige affaldsstationer i byen.

Ladestander

Nej

Der er ikke ladestander til elbil i afdelingen.

                        Se flere

## Boliger i afdelingen

Familieboliger

2 rums

Familieboliger

Familieboliger

3 rums

Familieboliger

Boligtype

Værelser

Størrelse

Husleje

Indskud/dp

Plantegning

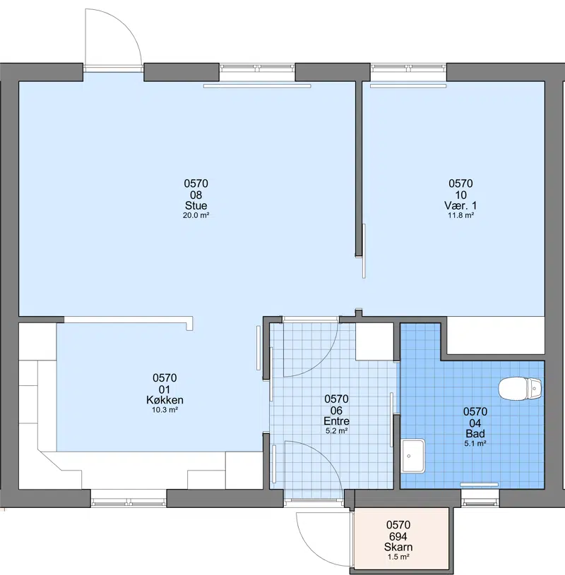
Familieboliger

2

62 m²

4970 kr.

11000 kr.

![](https://rsbolig.dk/i/MOLIRIMEDIA/68a6beb5-d0bb-47c0-d8cf-08dd9de71a53?width=800)






![](https://rsbolig.dk/i/MOLIRIMEDIA/68a6beb5-d0bb-47c0-d8cf-08dd9de71a53?width=800)

![](https://rsbolig.dk/i/MOLIRIMEDIA/d3143963-5fd5-4b63-1119-08dd9d2caa1e?width=800)

![](https://rsbolig.dk/i/MOLIRIMEDIA/68a6beb5-d0bb-47c0-d8cf-08dd9de71a53?width=800)

![](https://rsbolig.dk/i/MOLIRIMEDIA/d3143963-5fd5-4b63-1119-08dd9d2caa1e?width=800)

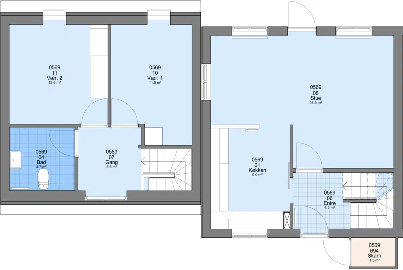
Familieboliger

3

84 m²

5875 kr.

15000 kr.

![](https://rsbolig.dk/i/MOLIRIMEDIA/6c54706b-fb59-40a8-1393-08dd9d2caa1e?width=800)






![](https://rsbolig.dk/i/MOLIRIMEDIA/6c54706b-fb59-40a8-1393-08dd9d2caa1e?width=800)

![](https://rsbolig.dk/i/MOLIRIMEDIA/fb27c65a-d143-4c67-13fb-08dd9d2caa1e?width=800)

![](https://rsbolig.dk/i/MOLIRIMEDIA/6c54706b-fb59-40a8-1393-08dd9d2caa1e?width=800)

![](https://rsbolig.dk/i/MOLIRIMEDIA/fb27c65a-d143-4c67-13fb-08dd9d2caa1e?width=800)

## Afdelingsdokumenter

Her finder du nyttig information om din afdeling, såsom husorden, vedligeholdelse af dit lejemål, referater m.m.

###

                                                Husorden

[Husorden, tæt lavt byggeri afd. 13.pdf](https://rsbolig.dk/p/Files/Boligdata/Afdelinger/1-013/Husorden/Husorden--t&#xE6;t-lavt-byggeri-afd.-13.pdf)

###

                                                Afdelingsmøder

[2025 Referat afd.møde.pdf](https://rsbolig.dk/p/Files/Boligdata/Afdelinger/1-013/Afdelingsm&#xF8;der/2025-Referat-afd.m&#xF8;de.pdf)
                                            [2024 Referat afd.møde.pdf](https://rsbolig.dk/p/Files/Boligdata/Afdelinger/1-013/Afdelingsm&#xF8;der/2024-Referat-afd.m&#xF8;de.pdf)
                                            [2023 Referat afd.møde.pdf](https://rsbolig.dk/p/Files/Boligdata/Afdelinger/1-013/Afdelingsm&#xF8;der/2023-Referat-afd.m&#xF8;de.pdf)
                                            [2022 Referat afd.møde.pdf](https://rsbolig.dk/p/Files/Boligdata/Afdelinger/1-013/Afdelingsm&#xF8;der/2022-Referat-afd.m&#xF8;de.pdf)
                                            [2021 Referat afd.møde.pdf](https://rsbolig.dk/p/Files/Boligdata/Afdelinger/1-013/Afdelingsm&#xF8;der/2021-Referat-afd.m&#xF8;de.pdf)
                                            [2020 Referat afd.møde.pdf](https://rsbolig.dk/p/Files/Boligdata/Afdelinger/1-013/Afdelingsm&#xF8;der/2020-Referat-afd.m&#xF8;de.pdf)
                                            [2019 Referat ekstraordinært afd.møde.pdf](https://rsbolig.dk/p/Files/Boligdata/Afdelinger/1-013/Afdelingsm&#xF8;der/2019-Referat-ekstraordin&#xE6;rt-afd.m&#xF8;de.pdf)
                                            [2019 Referat afd.møde.pdf](https://rsbolig.dk/p/Files/Boligdata/Afdelinger/1-013/Afdelingsm&#xF8;der/2019-Referat-afd.m&#xF8;de.pdf)
                                            [2018 Referat ekstraordinært afd.møde.pdf](https://rsbolig.dk/p/Files/Boligdata/Afdelinger/1-013/Afdelingsm&#xF8;der/2018-Referat-ekstraordin&#xE6;rt-afd.m&#xF8;de.pdf)
                                            [2018 Referat afd.møde.pdf](https://rsbolig.dk/p/Files/Boligdata/Afdelinger/1-013/Afdelingsm&#xF8;der/2018-Referat-afd.m&#xF8;de.pdf)
                                            [2017 Referat afd.møde.pdf](https://rsbolig.dk/p/Files/Boligdata/Afdelinger/1-013/Afdelingsm&#xF8;der/2017-Referat-afd.m&#xF8;de.pdf)
                                            [2016 Referat afd.møde.pdf](https://rsbolig.dk/p/Files/Boligdata/Afdelinger/1-013/Afdelingsm&#xF8;der/2016-Referat-afd.m&#xF8;de.pdf)

###

                                                Øvrigt

[Afd. 13 - Indflytningsbrochure.pdf](https://rsbolig.dk/p/Files/Boligdata/Afdelinger/1-013/&#xD8;vrigt/Afd.-13---Indflytningsbrochure.pdf)
                                            [Retningslinjer for udestuer.pdf](https://rsbolig.dk/p/Files/Boligdata/Afdelinger/1-013/&#xD8;vrigt/Retningslinjer-for-udestuer.pdf)
                                            [Vedtægter Rsbolig.pdf](https://rsbolig.dk/p/Files/Boligdata/Afdelinger/1-013/&#xD8;vrigt/Vedt&#xE6;gter-Rsbolig.pdf)

###

                                                Vedligehold

[Gode råd mod skimmelsvamp.pdf](https://rsbolig.dk/p/Files/Boligdata/Afdelinger/1-013/Vedligehold/Gode-r&#xE5;d-mod-skimmelsvamp.pdf)
                                            [Pas på fugtproblemet.pdf](https://rsbolig.dk/p/Files/Boligdata/Afdelinger/1-013/Vedligehold/Pas-p&#xE5;-fugtproblemet.pdf)
                                            [Vedligeholdelsesreglement.pdf](https://rsbolig.dk/p/Files/Boligdata/Afdelinger/1-013/Vedligehold/Vedligeholdelsesreglement.pdf)

## Placering
