---
title: "Ringkøbing opland"
description: "1-14"
date: "2025-08-01"
created: "2025-06-12"
---

-
-
-
-
-
-
-
-
-
-
-
-
-
-
-
-
-
-
-
-
-
-
-
-
-
-

https://maps.google.dk/?q=56.1954067,8.3115367

# Ringkøbing opland

Afdeling 14

## Velkommen til afdeling 14 Ringkøbing opland

Afdelingen består af 64 boliger beliggende i Tim, Stadil, Vedersø, No, Ølstrup, Hee og Højmark.
Boligerne er fordelt således:

8 på Trine Rahbeks vej/Hovedgade (Tim),
8 på Fresiavej (Tim),
6 på Regnspovevej (Tim),
4 på Vesterhavsvej (Vedersø)
4 på Skelmosevej (Stadil)
4 på Lybækvej (No)
5 på Byvejen (Ølstrup)
4 på Hovervej (Hee)
6 på N. P. Jeppensensvej (Hee)
7 på Bjørnevej (Hee)
2 på Adelvej (Højmark)
6 på Mads Degnbols vej (Højmark)

## Faciliteter

Altan/Have

Ja

Alle boligerne har have, undtaget nedenstående.

På Trine Rahbeks vej og Hovedgaden er der en terrasse eller altan til boligerne.

Gangbesværet

Se mere

Der er dørtrin i boligerne og der kan forekomme niveauforskelle ved indgangen.
På Trine Rahbeks vej og Hovedgaden er der boliger på 1. sal.

El

Se mere

Som lejer skal du, i forbindelse med indflytning, selv vælge hvilken el-leverandør du ønsker.

Husdyr

Ja

Det er tilladt at holde ét husdyr.

Hvidevarer

Ja

Der hører komfur, ovn og emhætte med til lejligheden.

Gildesal

Nej

Der er ikke gildesal i afdelingen.

Råderet

Ja

Det er vedtaget, at man kan forny køkken via råderet i boligerne i Tim.

TV

Ja

Der er installeret fibernet i boligen.

På hjemmesiden rah-fiber.dk kan du se hvilke udbydere af internet og TV, du kan vælge imellem.

Vand

Læs mere

Vand betales direkte til Ringkøbing-Skjern forsyning.

Varme

Læs mere

Tim: Fjernvarme
Ølstrup: Naturgas
Stadil: Varmepumpe og elvarme
Vedersø: Varmepumpe og elvarme
No: Naturgas
Hee: Naturgas
Højmark: Adelvej har varmepumpe, Mads Degnbols vej har Naturgas

Vicevært

Ja

Vicevært i afdelingen

Garage/carport

Ja

Carport

Affald

Læs mere

I Ringkøbing-Skjern kommune skal man affaldssortere.

Til hver bolig, hører der en 240 L opdelt affaldscontainer. Containeren bruges til mad- og restaffald.

Øvrigt affald skal afleveres på den kommunale genbrugsplads.

Ladestander

Nej

Der er ikke ladestander til elbil i afdelingen.

                        Se flere

## Boliger i afdelingen

Familieboliger

2 rums

Familieboliger

Familieboliger

3 rums

Familieboliger

Familieboliger

4 rums

Familieboliger

Boligtype

Værelser

Størrelse

Husleje

Indskud/dp

Plantegning

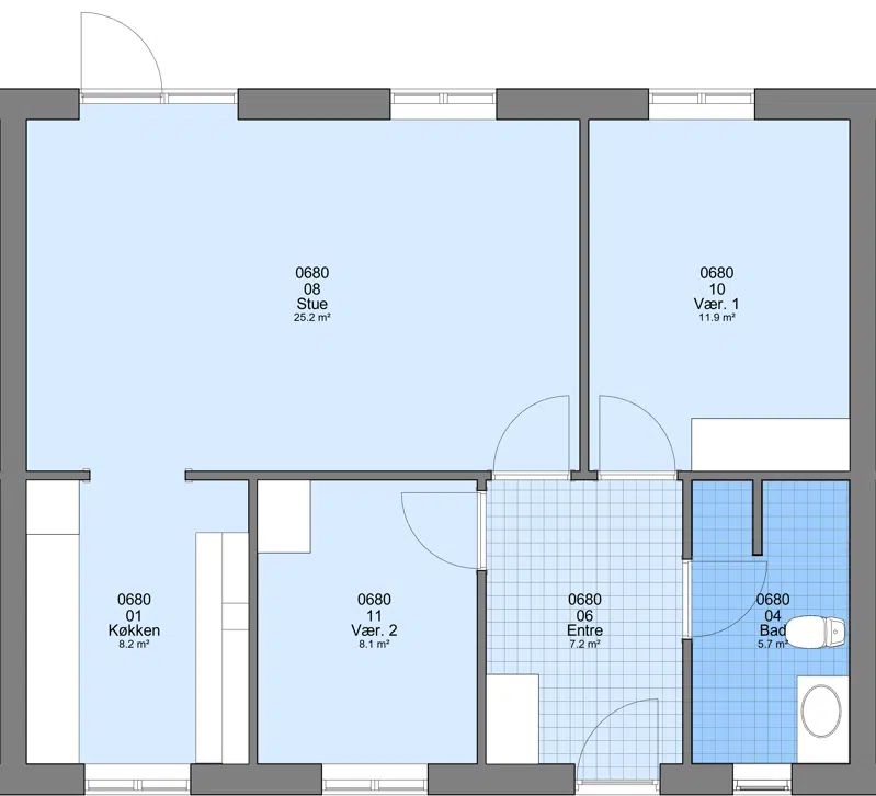
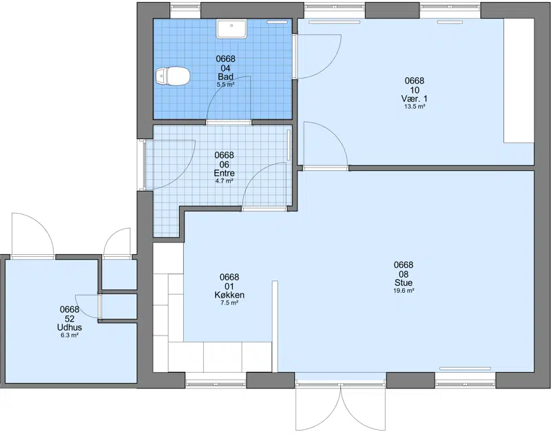
Familieboliger

2

62 m²

4805 kr.

11000 kr.

![](https://rsbolig.dk/i/MOLIRIMEDIA/9137b5d3-79f6-432e-d900-08dd9de71a53?width=800)






![](https://rsbolig.dk/i/MOLIRIMEDIA/9137b5d3-79f6-432e-d900-08dd9de71a53?width=800)

![](https://rsbolig.dk/i/MOLIRIMEDIA/763c5524-8e3e-46cc-0f7d-08dd9d2caa1e?width=800)

![](https://rsbolig.dk/i/MOLIRIMEDIA/9137b5d3-79f6-432e-d900-08dd9de71a53?width=800)

![](https://rsbolig.dk/i/MOLIRIMEDIA/763c5524-8e3e-46cc-0f7d-08dd9d2caa1e?width=800)

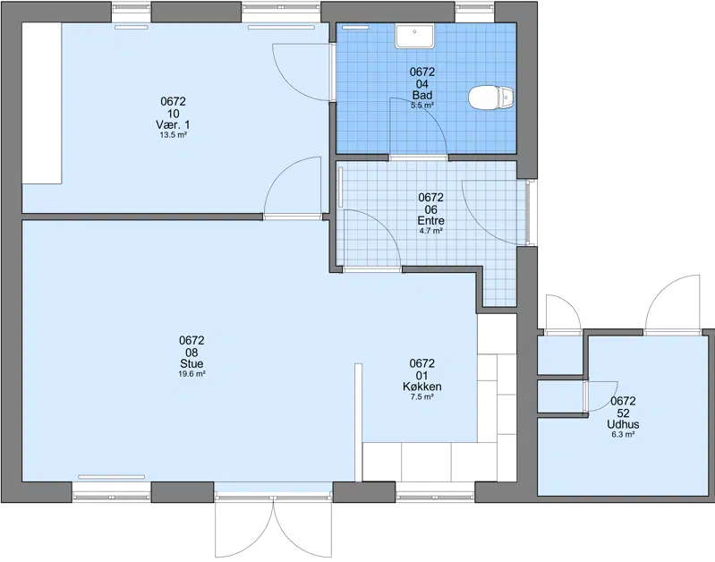
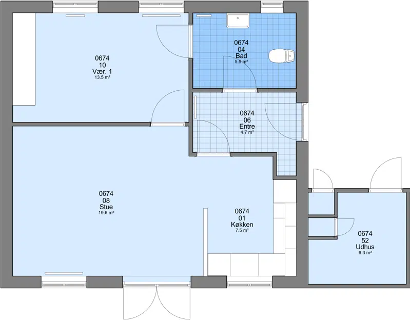
Familieboliger

2

62 m²

4805 kr.

14198 kr.

![](https://rsbolig.dk/i/MOLIRIMEDIA/df520961-7a28-4e43-1019-08dd9d2caa1e?width=800)






![](https://rsbolig.dk/i/MOLIRIMEDIA/df520961-7a28-4e43-1019-08dd9d2caa1e?width=800)

![](https://rsbolig.dk/i/MOLIRIMEDIA/60a93c5a-df4e-4fcb-1481-08dd9d2caa1e?width=800)

![](https://rsbolig.dk/i/MOLIRIMEDIA/df520961-7a28-4e43-1019-08dd9d2caa1e?width=800)

![](https://rsbolig.dk/i/MOLIRIMEDIA/60a93c5a-df4e-4fcb-1481-08dd9d2caa1e?width=800)

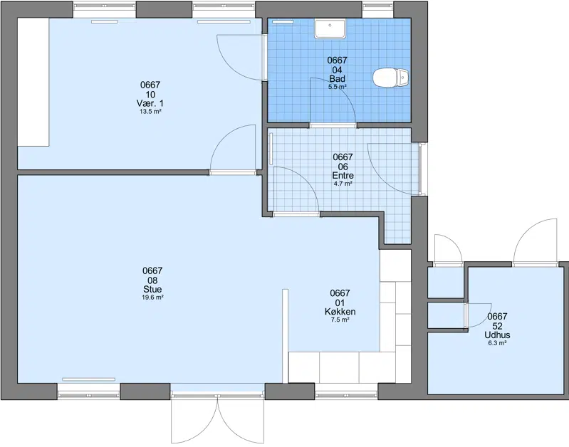
Familieboliger

2

62 m²

5546 kr.

14198 kr.

![](https://rsbolig.dk/i/MOLIRIMEDIA/e2e478e5-c1ae-4a88-0ca8-08dd9d2caa1e?width=800)






![](https://rsbolig.dk/i/MOLIRIMEDIA/e2e478e5-c1ae-4a88-0ca8-08dd9d2caa1e?width=800)

![](https://rsbolig.dk/i/MOLIRIMEDIA/5cf7b898-5641-46da-1455-08dd9d2caa1e?width=800)

![](https://rsbolig.dk/i/MOLIRIMEDIA/e2e478e5-c1ae-4a88-0ca8-08dd9d2caa1e?width=800)

![](https://rsbolig.dk/i/MOLIRIMEDIA/5cf7b898-5641-46da-1455-08dd9d2caa1e?width=800)

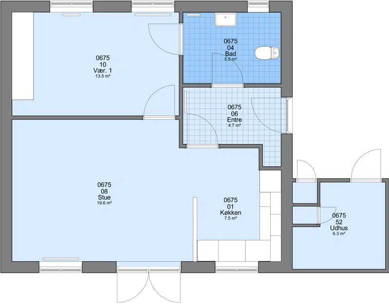
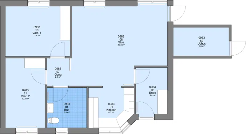
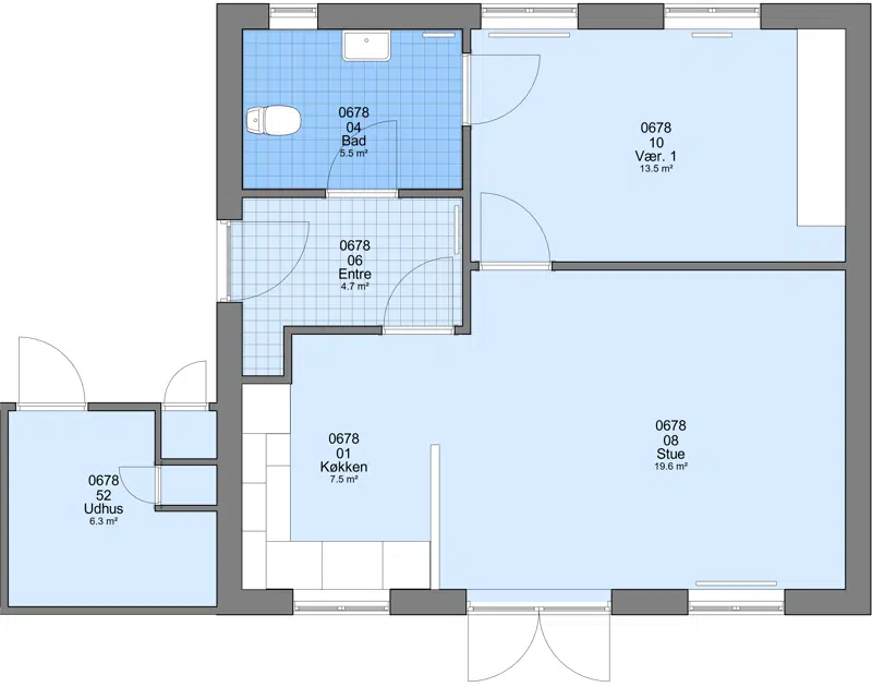
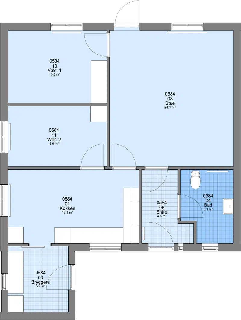
Familieboliger

2

62 m²

4867 kr.

11000 kr.

![](https://rsbolig.dk/i/MOLIRIMEDIA/06bdd365-95ca-409a-da7c-08dd9de71a53?width=800)






![](https://rsbolig.dk/i/MOLIRIMEDIA/06bdd365-95ca-409a-da7c-08dd9de71a53?width=800)

![](https://rsbolig.dk/i/MOLIRIMEDIA/db9010a2-cb48-44b1-0ab1-08dd9d2caa1e?width=800)

![](https://rsbolig.dk/i/MOLIRIMEDIA/06bdd365-95ca-409a-da7c-08dd9de71a53?width=800)

![](https://rsbolig.dk/i/MOLIRIMEDIA/db9010a2-cb48-44b1-0ab1-08dd9d2caa1e?width=800)

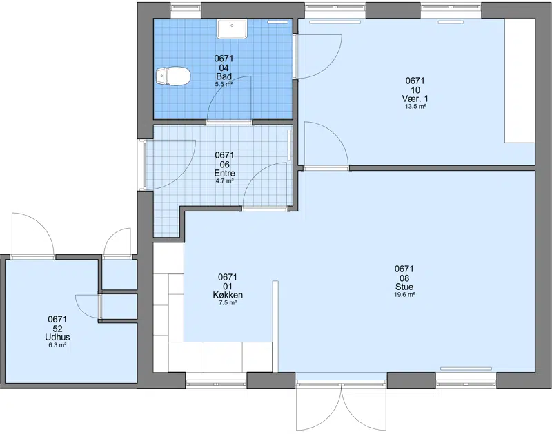
Familieboliger

2

67 m²

4798 kr.

13000 kr.

![](https://rsbolig.dk/i/MOLIRIMEDIA/45efe415-7630-4f4a-d903-08dd9de71a53?width=800)






![](https://rsbolig.dk/i/MOLIRIMEDIA/45efe415-7630-4f4a-d903-08dd9de71a53?width=800)

![](https://rsbolig.dk/i/MOLIRIMEDIA/8e02584d-f67c-4729-0b8a-08dd9d2caa1e?width=800)

![](https://rsbolig.dk/i/MOLIRIMEDIA/45efe415-7630-4f4a-d903-08dd9de71a53?width=800)

![](https://rsbolig.dk/i/MOLIRIMEDIA/8e02584d-f67c-4729-0b8a-08dd9d2caa1e?width=800)

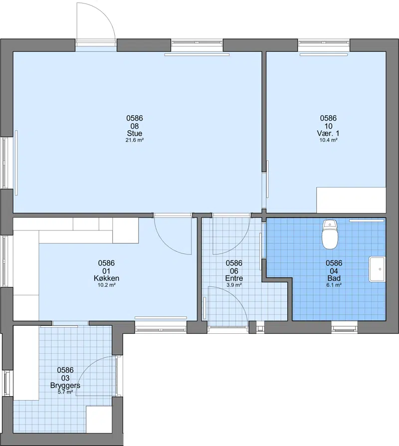
Familieboliger

2

70 m²

5027 kr.

13000 kr.

![](https://rsbolig.dk/i/MOLIRIMEDIA/72fef214-fba4-4383-2688-08dda22a7775?width=800)






![](https://rsbolig.dk/i/MOLIRIMEDIA/72fef214-fba4-4383-2688-08dda22a7775?width=800)

![](https://rsbolig.dk/i/MOLIRIMEDIA/8305eb96-c727-4e6d-10c4-08dd9d2caa1e?width=800)

![](https://rsbolig.dk/i/MOLIRIMEDIA/72fef214-fba4-4383-2688-08dda22a7775?width=800)

![](https://rsbolig.dk/i/MOLIRIMEDIA/8305eb96-c727-4e6d-10c4-08dd9d2caa1e?width=800)

Familieboliger

2

62 m²

4985 kr.

11000 kr.

![](https://rsbolig.dk/i/MOLIRIMEDIA/eaf1a92b-c2ee-483b-127d-08dd9d2caa1e?width=800)






![](https://rsbolig.dk/i/MOLIRIMEDIA/eaf1a92b-c2ee-483b-127d-08dd9d2caa1e?width=800)

![](https://rsbolig.dk/i/MOLIRIMEDIA/c5bf5b50-9339-4f8e-12a7-08dd9d2caa1e?width=800)

![](https://rsbolig.dk/i/MOLIRIMEDIA/eaf1a92b-c2ee-483b-127d-08dd9d2caa1e?width=800)

![](https://rsbolig.dk/i/MOLIRIMEDIA/c5bf5b50-9339-4f8e-12a7-08dd9d2caa1e?width=800)

Familieboliger

2

62 m²

5527 kr.

11000 kr.

![](https://rsbolig.dk/i/MOLIRIMEDIA/ae55acc9-7448-4136-0f2d-08dd9d2caa1e?width=800)






![](https://rsbolig.dk/i/MOLIRIMEDIA/ae55acc9-7448-4136-0f2d-08dd9d2caa1e?width=800)

![](https://rsbolig.dk/i/MOLIRIMEDIA/98b4b2fd-1f7c-4d24-0f2f-08dd9d2caa1e?width=800)

![](https://rsbolig.dk/i/MOLIRIMEDIA/ae55acc9-7448-4136-0f2d-08dd9d2caa1e?width=800)

![](https://rsbolig.dk/i/MOLIRIMEDIA/98b4b2fd-1f7c-4d24-0f2f-08dd9d2caa1e?width=800)

Familieboliger

2

62 m²

5450 kr.

11000 kr.

![](https://rsbolig.dk/i/MOLIRIMEDIA/66a662f1-006c-48e2-26ac-08dda22a7775?width=800)






![](https://rsbolig.dk/i/MOLIRIMEDIA/66a662f1-006c-48e2-26ac-08dda22a7775?width=800)

![](https://rsbolig.dk/i/MOLIRIMEDIA/e05b90cb-8a5f-4fa4-0f98-08dd9d2caa1e?width=800)

![](https://rsbolig.dk/i/MOLIRIMEDIA/66a662f1-006c-48e2-26ac-08dda22a7775?width=800)

![](https://rsbolig.dk/i/MOLIRIMEDIA/e05b90cb-8a5f-4fa4-0f98-08dd9d2caa1e?width=800)

Familieboliger

2

62 m²

4805 kr.

11000 kr.

![](https://rsbolig.dk/i/MOLIRIMEDIA/31fcfcae-fd8b-418a-d9f3-08dd9de71a53?width=800)






![](https://rsbolig.dk/i/MOLIRIMEDIA/31fcfcae-fd8b-418a-d9f3-08dd9de71a53?width=800)

![](https://rsbolig.dk/i/MOLIRIMEDIA/9cf85b4f-a403-4473-0f72-08dd9d2caa1e?width=800)

![](https://rsbolig.dk/i/MOLIRIMEDIA/31fcfcae-fd8b-418a-d9f3-08dd9de71a53?width=800)

![](https://rsbolig.dk/i/MOLIRIMEDIA/9cf85b4f-a403-4473-0f72-08dd9d2caa1e?width=800)

Familieboliger

2

70 m²

4750 kr.

13000 kr.

![](https://rsbolig.dk/i/MOLIRIMEDIA/92fcf312-6106-4ac9-da28-08dd9de71a53?width=800)






![](https://rsbolig.dk/i/MOLIRIMEDIA/92fcf312-6106-4ac9-da28-08dd9de71a53?width=800)

![](https://rsbolig.dk/i/MOLIRIMEDIA/3e4abbe0-eed4-4e8f-0d15-08dd9d2caa1e?width=800)

![](https://rsbolig.dk/i/MOLIRIMEDIA/92fcf312-6106-4ac9-da28-08dd9de71a53?width=800)

![](https://rsbolig.dk/i/MOLIRIMEDIA/3e4abbe0-eed4-4e8f-0d15-08dd9d2caa1e?width=800)

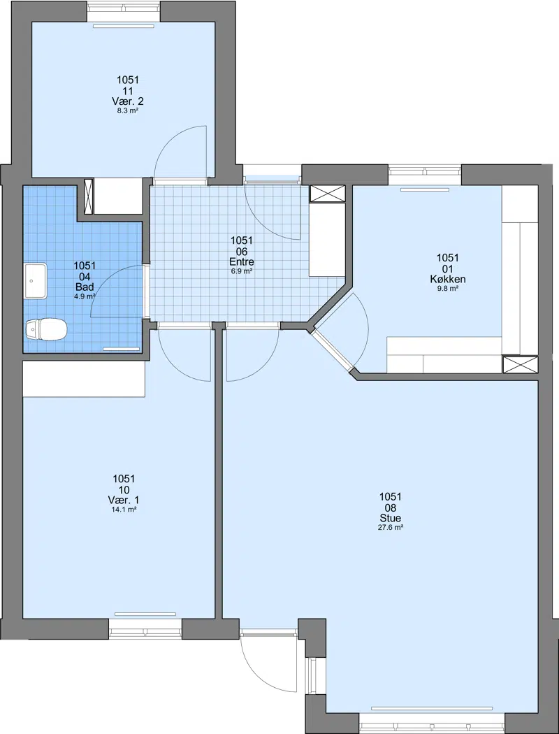
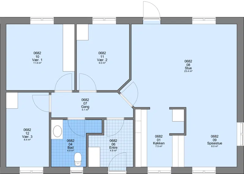
Familieboliger

3

86 m²

7036 kr.

18700 kr.

![](https://rsbolig.dk/i/MOLIRIMEDIA/e87b080e-b489-4b24-d9e2-08dd9de71a53?width=800)






![](https://rsbolig.dk/i/MOLIRIMEDIA/e87b080e-b489-4b24-d9e2-08dd9de71a53?width=800)

![](https://rsbolig.dk/i/MOLIRIMEDIA/eb1c6c48-e34e-4806-10f2-08dd9d2caa1e?width=800)

![](https://rsbolig.dk/i/MOLIRIMEDIA/e87b080e-b489-4b24-d9e2-08dd9de71a53?width=800)

![](https://rsbolig.dk/i/MOLIRIMEDIA/eb1c6c48-e34e-4806-10f2-08dd9d2caa1e?width=800)

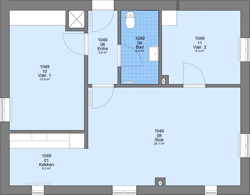
Familieboliger

3

79 m²

6642 kr.

17710 kr.

![](https://rsbolig.dk/i/MOLIRIMEDIA/7bb94920-1221-44cb-2704-08dda22a7775?width=800)






![](https://rsbolig.dk/i/MOLIRIMEDIA/7bb94920-1221-44cb-2704-08dda22a7775?width=800)

![](https://rsbolig.dk/i/MOLIRIMEDIA/4175abe1-67c8-432f-0f20-08dd9d2caa1e?width=800)

![](https://rsbolig.dk/i/MOLIRIMEDIA/7bb94920-1221-44cb-2704-08dda22a7775?width=800)

![](https://rsbolig.dk/i/MOLIRIMEDIA/4175abe1-67c8-432f-0f20-08dd9d2caa1e?width=800)

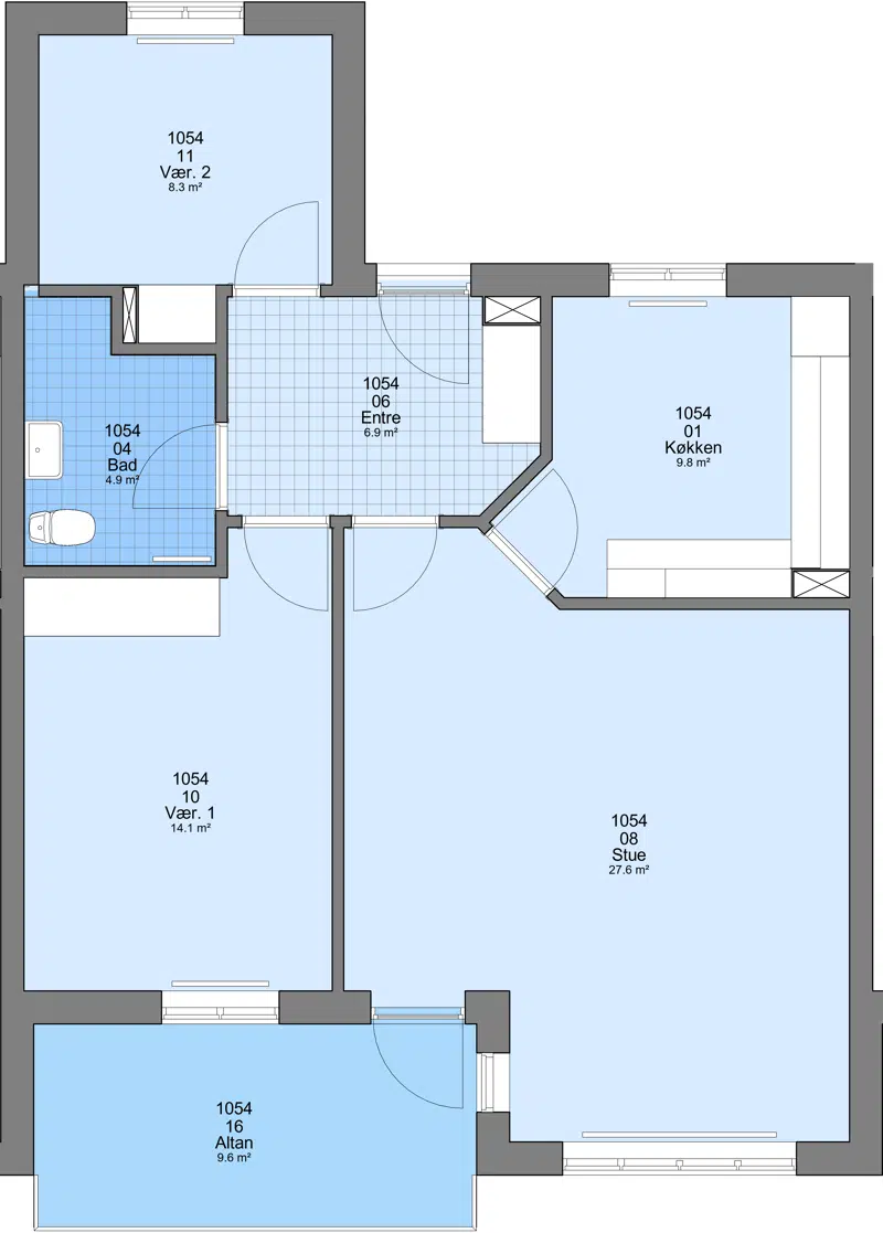
Familieboliger

3

86 m²

7036 kr.

18700 kr.

![](https://rsbolig.dk/i/MOLIRIMEDIA/ad420d32-ab9e-4677-0e47-08dd9d2caa1e?width=800)






![](https://rsbolig.dk/i/MOLIRIMEDIA/ad420d32-ab9e-4677-0e47-08dd9d2caa1e?width=800)

![](https://rsbolig.dk/i/MOLIRIMEDIA/64f71c8a-130e-465c-0fb7-08dd9d2caa1e?width=800)

![](https://rsbolig.dk/i/MOLIRIMEDIA/ad420d32-ab9e-4677-0e47-08dd9d2caa1e?width=800)

![](https://rsbolig.dk/i/MOLIRIMEDIA/64f71c8a-130e-465c-0fb7-08dd9d2caa1e?width=800)

Familieboliger

3

85.05 m²

6203 kr.

15225 kr.

![](https://rsbolig.dk/i/MOLIRIMEDIA/2c020790-d851-41e5-0abb-08dd9d2caa1e?width=800)






![](https://rsbolig.dk/i/MOLIRIMEDIA/2c020790-d851-41e5-0abb-08dd9d2caa1e?width=800)

![](https://rsbolig.dk/i/MOLIRIMEDIA/be3fd028-269e-421b-0ae0-08dd9d2caa1e?width=800)

![](https://rsbolig.dk/i/MOLIRIMEDIA/2c020790-d851-41e5-0abb-08dd9d2caa1e?width=800)

![](https://rsbolig.dk/i/MOLIRIMEDIA/be3fd028-269e-421b-0ae0-08dd9d2caa1e?width=800)

Familieboliger

3

79 m²

6642 kr.

17710 kr.

![](https://rsbolig.dk/i/MOLIRIMEDIA/04dbdb03-543b-4c58-da2b-08dd9de71a53?width=800)






![](https://rsbolig.dk/i/MOLIRIMEDIA/04dbdb03-543b-4c58-da2b-08dd9de71a53?width=800)

![](https://rsbolig.dk/i/MOLIRIMEDIA/9db5f7fd-b03a-4bd8-11ab-08dd9d2caa1e?width=800)

![](https://rsbolig.dk/i/MOLIRIMEDIA/04dbdb03-543b-4c58-da2b-08dd9de71a53?width=800)

![](https://rsbolig.dk/i/MOLIRIMEDIA/9db5f7fd-b03a-4bd8-11ab-08dd9d2caa1e?width=800)

Familieboliger

3

86 m²

6691 kr.

18700 kr.

![](https://rsbolig.dk/i/MOLIRIMEDIA/bab9c8a5-4231-4df3-da92-08dd9de71a53?width=800)






![](https://rsbolig.dk/i/MOLIRIMEDIA/bab9c8a5-4231-4df3-da92-08dd9de71a53?width=800)

![](https://rsbolig.dk/i/MOLIRIMEDIA/bfd1ac75-e6e7-4f77-0cea-08dd9d2caa1e?width=800)

![](https://rsbolig.dk/i/MOLIRIMEDIA/bab9c8a5-4231-4df3-da92-08dd9de71a53?width=800)

![](https://rsbolig.dk/i/MOLIRIMEDIA/bfd1ac75-e6e7-4f77-0cea-08dd9d2caa1e?width=800)

Familieboliger

3

86 m²

7036 kr.

18700 kr.

![](https://rsbolig.dk/i/MOLIRIMEDIA/2c92ae27-80b5-4de1-0add-08dd9d2caa1e?width=800)






![](https://rsbolig.dk/i/MOLIRIMEDIA/2c92ae27-80b5-4de1-0add-08dd9d2caa1e?width=800)

![](https://rsbolig.dk/i/MOLIRIMEDIA/c5f3deeb-6211-4a68-0d83-08dd9d2caa1e?width=800)

![](https://rsbolig.dk/i/MOLIRIMEDIA/2c92ae27-80b5-4de1-0add-08dd9d2caa1e?width=800)

![](https://rsbolig.dk/i/MOLIRIMEDIA/c5f3deeb-6211-4a68-0d83-08dd9d2caa1e?width=800)

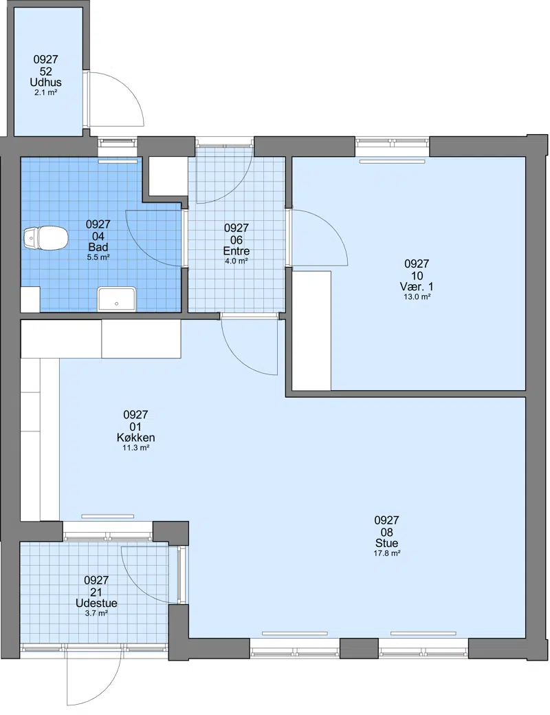
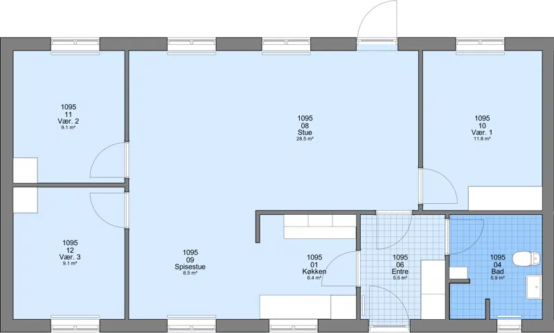
Familieboliger

3

96 m²

5611 kr.

15000 kr.

![](https://rsbolig.dk/i/MOLIRIMEDIA/36217838-3898-4d7e-0db9-08dd9d2caa1e?width=800)






![](https://rsbolig.dk/i/MOLIRIMEDIA/36217838-3898-4d7e-0db9-08dd9d2caa1e?width=800)

![](https://rsbolig.dk/i/MOLIRIMEDIA/202c3d47-b14a-4e70-11b4-08dd9d2caa1e?width=800)

![](https://rsbolig.dk/i/MOLIRIMEDIA/36217838-3898-4d7e-0db9-08dd9d2caa1e?width=800)

![](https://rsbolig.dk/i/MOLIRIMEDIA/202c3d47-b14a-4e70-11b4-08dd9d2caa1e?width=800)

Familieboliger

3

96 m²

5611 kr.

15000 kr.

![](https://rsbolig.dk/i/MOLIRIMEDIA/27eac029-6d9f-4e36-11d5-08dd9d2caa1e?width=800)






![](https://rsbolig.dk/i/MOLIRIMEDIA/27eac029-6d9f-4e36-11d5-08dd9d2caa1e?width=800)

![](https://rsbolig.dk/i/MOLIRIMEDIA/4e9dc1d3-f73e-42ac-13ca-08dd9d2caa1e?width=800)

![](https://rsbolig.dk/i/MOLIRIMEDIA/27eac029-6d9f-4e36-11d5-08dd9d2caa1e?width=800)

![](https://rsbolig.dk/i/MOLIRIMEDIA/4e9dc1d3-f73e-42ac-13ca-08dd9d2caa1e?width=800)

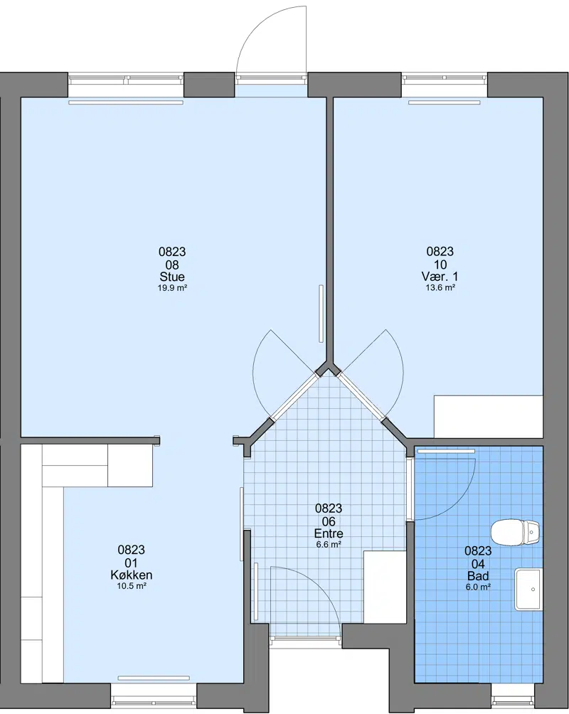
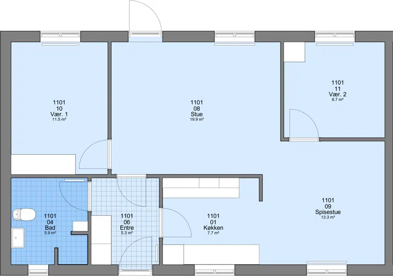
Familieboliger

3

80.1 m²

5722 kr.

15000 kr.

![](https://rsbolig.dk/i/MOLIRIMEDIA/8fb9a1a7-5413-4b95-26e3-08dda22a7775?width=800)






![](https://rsbolig.dk/i/MOLIRIMEDIA/8fb9a1a7-5413-4b95-26e3-08dda22a7775?width=800)

![](https://rsbolig.dk/i/MOLIRIMEDIA/dceb0110-1ae8-43bf-12be-08dd9d2caa1e?width=800)

![](https://rsbolig.dk/i/MOLIRIMEDIA/8fb9a1a7-5413-4b95-26e3-08dda22a7775?width=800)

![](https://rsbolig.dk/i/MOLIRIMEDIA/dceb0110-1ae8-43bf-12be-08dd9d2caa1e?width=800)

Familieboliger

3

78.7 m²

6311 kr.

17310 kr.

![](https://rsbolig.dk/i/MOLIRIMEDIA/1f628244-5046-4e82-0adc-08dd9d2caa1e?width=800)






![](https://rsbolig.dk/i/MOLIRIMEDIA/1f628244-5046-4e82-0adc-08dd9d2caa1e?width=800)

![](https://rsbolig.dk/i/MOLIRIMEDIA/3bf3da5d-9562-420d-1457-08dd9d2caa1e?width=800)

![](https://rsbolig.dk/i/MOLIRIMEDIA/1f628244-5046-4e82-0adc-08dd9d2caa1e?width=800)

![](https://rsbolig.dk/i/MOLIRIMEDIA/3bf3da5d-9562-420d-1457-08dd9d2caa1e?width=800)

Familieboliger

3

78.7 m²

6464 kr.

17310 kr.

![](https://rsbolig.dk/i/MOLIRIMEDIA/f3b8ae89-569e-4adb-0d6f-08dd9d2caa1e?width=800)






![](https://rsbolig.dk/i/MOLIRIMEDIA/f3b8ae89-569e-4adb-0d6f-08dd9d2caa1e?width=800)

![](https://rsbolig.dk/i/MOLIRIMEDIA/2270616f-0aa5-4474-142b-08dd9d2caa1e?width=800)

![](https://rsbolig.dk/i/MOLIRIMEDIA/f3b8ae89-569e-4adb-0d6f-08dd9d2caa1e?width=800)

![](https://rsbolig.dk/i/MOLIRIMEDIA/2270616f-0aa5-4474-142b-08dd9d2caa1e?width=800)

Familieboliger

3

85 m²

5412 kr.

15000 kr.

![](https://rsbolig.dk/i/MOLIRIMEDIA/289a381e-09d2-4d40-12ae-08dd9d2caa1e?width=800)






![](https://rsbolig.dk/i/MOLIRIMEDIA/289a381e-09d2-4d40-12ae-08dd9d2caa1e?width=800)

![](https://rsbolig.dk/i/MOLIRIMEDIA/4180685b-513d-4c70-1492-08dd9d2caa1e?width=800)

![](https://rsbolig.dk/i/MOLIRIMEDIA/289a381e-09d2-4d40-12ae-08dd9d2caa1e?width=800)

![](https://rsbolig.dk/i/MOLIRIMEDIA/4180685b-513d-4c70-1492-08dd9d2caa1e?width=800)

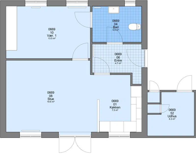
Familieboliger

4

99.08 m²

6862 kr.

17740 kr.

![](https://rsbolig.dk/i/MOLIRIMEDIA/4a41da8b-8bca-463e-12d0-08dd9d2caa1e?width=800)






![](https://rsbolig.dk/i/MOLIRIMEDIA/4a41da8b-8bca-463e-12d0-08dd9d2caa1e?width=800)

![](https://rsbolig.dk/i/MOLIRIMEDIA/ea291af1-3e28-474d-1303-08dd9d2caa1e?width=800)

![](https://rsbolig.dk/i/MOLIRIMEDIA/4a41da8b-8bca-463e-12d0-08dd9d2caa1e?width=800)

![](https://rsbolig.dk/i/MOLIRIMEDIA/ea291af1-3e28-474d-1303-08dd9d2caa1e?width=800)

Familieboliger

4

100 m²

7774 kr.

21750 kr.

![](https://rsbolig.dk/i/MOLIRIMEDIA/feb2046d-e3ed-4605-da17-08dd9de71a53?width=800)






![](https://rsbolig.dk/i/MOLIRIMEDIA/feb2046d-e3ed-4605-da17-08dd9de71a53?width=800)

![](https://rsbolig.dk/i/MOLIRIMEDIA/53a61e59-5c86-4086-0d97-08dd9d2caa1e?width=800)

![](https://rsbolig.dk/i/MOLIRIMEDIA/feb2046d-e3ed-4605-da17-08dd9de71a53?width=800)

![](https://rsbolig.dk/i/MOLIRIMEDIA/53a61e59-5c86-4086-0d97-08dd9d2caa1e?width=800)

Familieboliger

4

98.8 m²

7510 kr.

21730 kr.

![](https://rsbolig.dk/i/MOLIRIMEDIA/eec7db51-48fb-4cea-d95e-08dd9de71a53?width=800)






![](https://rsbolig.dk/i/MOLIRIMEDIA/eec7db51-48fb-4cea-d95e-08dd9de71a53?width=800)

![](https://rsbolig.dk/i/MOLIRIMEDIA/c6f8b4c9-d3f9-4ebb-0b39-08dd9d2caa1e?width=800)

![](https://rsbolig.dk/i/MOLIRIMEDIA/eec7db51-48fb-4cea-d95e-08dd9de71a53?width=800)

![](https://rsbolig.dk/i/MOLIRIMEDIA/c6f8b4c9-d3f9-4ebb-0b39-08dd9d2caa1e?width=800)

## Afdelingsdokumenter

Her finder du nyttig information om din afdeling, såsom husorden, vedligeholdelse af dit lejemål, referater m.m.

###

                                                Husorden

[Husorden, tæt lavt byggeri.pdf](https://rsbolig.dk/p/Files/Boligdata/Afdelinger/1-014/Husorden/Husorden--t&#xE6;t-lavt-byggeri.pdf)

###

                                                Afdelingsmøder

[2025 Referat afd.møde.pdf](https://rsbolig.dk/p/Files/Boligdata/Afdelinger/1-014/Afdelingsm&#xF8;der/2025-Referat-afd.m&#xF8;de.pdf)
                                            [2024 Referat ekstraordinært afd.møde.pdf](https://rsbolig.dk/p/Files/Boligdata/Afdelinger/1-014/Afdelingsm&#xF8;der/2024-Referat-ekstraordin&#xE6;rt-afd.m&#xF8;de.pdf)
                                            [2024 Referat afd.møde.pdf](https://rsbolig.dk/p/Files/Boligdata/Afdelinger/1-014/Afdelingsm&#xF8;der/2024-Referat-afd.m&#xF8;de.pdf)
                                            [2023 Referat afd.møde.pdf](https://rsbolig.dk/p/Files/Boligdata/Afdelinger/1-014/Afdelingsm&#xF8;der/2023-Referat-afd.m&#xF8;de.pdf)
                                            [2022 Referat ekstraordinært afd.møde, afd. 14, 21 og 28, 24.pdf](https://rsbolig.dk/p/Files/Boligdata/Afdelinger/1-014/Afdelingsm&#xF8;der/2022-Referat-ekstraordin&#xE6;rt-afd.m&#xF8;de--afd.-14--21-og-28--24.pdf)
                                            [2022 Referat afd.møde (tidligere afd. 14).pdf](https://rsbolig.dk/p/Files/Boligdata/Afdelinger/1-014/Afdelingsm&#xF8;der/2022-Referat-afd.m&#xF8;de--tidligere-afd.-14-.pdf)
                                            [2021 Referat afd.møde (tidligere afd. 21).pdf](https://rsbolig.dk/p/Files/Boligdata/Afdelinger/1-014/Afdelingsm&#xF8;der/2021-Referat-afd.m&#xF8;de--tidligere-afd.-21-.pdf)
                                            [2021 Referat afd.møde (tidligere afd. 14).pdf](https://rsbolig.dk/p/Files/Boligdata/Afdelinger/1-014/Afdelingsm&#xF8;der/2021-Referat-afd.m&#xF8;de--tidligere-afd.-14-.pdf)
                                            [2020 Referat afd.møde (tidligere afd. 28).pdf](https://rsbolig.dk/p/Files/Boligdata/Afdelinger/1-014/Afdelingsm&#xF8;der/2020-Referat-afd.m&#xF8;de--tidligere-afd.-28-.pdf)
                                            [2020 Referat afd.møde (tidligere afd. 21).pdf](https://rsbolig.dk/p/Files/Boligdata/Afdelinger/1-014/Afdelingsm&#xF8;der/2020-Referat-afd.m&#xF8;de--tidligere-afd.-21-.pdf)
                                            [2020 Referat afd.møde (tidligere afd. 14).pdf](https://rsbolig.dk/p/Files/Boligdata/Afdelinger/1-014/Afdelingsm&#xF8;der/2020-Referat-afd.m&#xF8;de--tidligere-afd.-14-.pdf)
                                            [2019 Referat afd.møde (tidligere afd. 28).pdf](https://rsbolig.dk/p/Files/Boligdata/Afdelinger/1-014/Afdelingsm&#xF8;der/2019-Referat-afd.m&#xF8;de--tidligere-afd.-28-.pdf)
                                            [2019 Referat afd.møde (tidligere afd. 21).pdf](https://rsbolig.dk/p/Files/Boligdata/Afdelinger/1-014/Afdelingsm&#xF8;der/2019-Referat-afd.m&#xF8;de--tidligere-afd.-21-.pdf)
                                            [2019 Referat afd.møde (tidligere afd. 14).pdf](https://rsbolig.dk/p/Files/Boligdata/Afdelinger/1-014/Afdelingsm&#xF8;der/2019-Referat-afd.m&#xF8;de--tidligere-afd.-14-.pdf)
                                            [2018 Referat afd.møde (tidligere afd. 28).pdf](https://rsbolig.dk/p/Files/Boligdata/Afdelinger/1-014/Afdelingsm&#xF8;der/2018-Referat-afd.m&#xF8;de--tidligere-afd.-28-.pdf)
                                            [2018 Referat afd.møde (tidligere afd. 21).pdf](https://rsbolig.dk/p/Files/Boligdata/Afdelinger/1-014/Afdelingsm&#xF8;der/2018-Referat-afd.m&#xF8;de--tidligere-afd.-21-.pdf)
                                            [2017 Referat afd.møde (tidligere afd. 28).pdf](https://rsbolig.dk/p/Files/Boligdata/Afdelinger/1-014/Afdelingsm&#xF8;der/2017-Referat-afd.m&#xF8;de--tidligere-afd.-28-.pdf)
                                            [2017 Referat afd.møde (tidligere afd. 21).pdf](https://rsbolig.dk/p/Files/Boligdata/Afdelinger/1-014/Afdelingsm&#xF8;der/2017-Referat-afd.m&#xF8;de--tidligere-afd.-21-.pdf)
                                            [2017 Referat afd.møde (tidligere afd. 14).pdf](https://rsbolig.dk/p/Files/Boligdata/Afdelinger/1-014/Afdelingsm&#xF8;der/2017-Referat-afd.m&#xF8;de--tidligere-afd.-14-.pdf)
                                            [2016 Referat afd.møde (tidligere afd. 14).pdf](https://rsbolig.dk/p/Files/Boligdata/Afdelinger/1-014/Afdelingsm&#xF8;der/2016-Referat-afd.m&#xF8;de--tidligere-afd.-14-.pdf)

###

                                                Øvrigt

[Afd. 14 - Indflytningsbrochure.pdf](https://rsbolig.dk/p/Files/Boligdata/Afdelinger/1-014/&#xD8;vrigt/Afd.-14---Indflytningsbrochure.pdf)
                                            [Vedtægter Rsbolig.pdf](https://rsbolig.dk/p/Files/Boligdata/Afdelinger/1-014/&#xD8;vrigt/Vedt&#xE6;gter-Rsbolig.pdf)

###

                                                Vedligehold

[Gode råd mod skimmelsvamp.pdf](https://rsbolig.dk/p/Files/Boligdata/Afdelinger/1-014/Vedligehold/Gode-r&#xE5;d-mod-skimmelsvamp.pdf)
                                            [Pas på fugtproblemet.pdf](https://rsbolig.dk/p/Files/Boligdata/Afdelinger/1-014/Vedligehold/Pas-p&#xE5;-fugtproblemet.pdf)
                                            [Vedligeholdelsesreglement.pdf](https://rsbolig.dk/p/Files/Boligdata/Afdelinger/1-014/Vedligehold/Vedligeholdelsesreglement.pdf)

## Placering
