---
title: "Parkallé"
description: "1-91"
date: "2025-08-01"
created: "2025-06-12"
---

-
-
-
-

https://maps.google.dk/?q=55.9072894,8.5118107

# Parkallé

Afdeling 91

## Velkommen til afdeling 91 Parkallé

Afdelingen består af 10 rækkehuse. Parkallé 16-34. Boligerne er beliggende i et grønt og naturskønt område tæt på Tarm bymidte.

## Faciliteter

Altan/Have

Ja

Der er have til boligerne.

Gangbesværet

Se mere

Der er dørtrin i boligerne og der kan være niveauforskelle ved indgangen.

El

Se mere

Som lejer skal du, i forbindelse med indflytning, selv vælge hvilken el-leverandør du ønsker.

Husdyr

Ja

Det er tilladt at holde ét husdyr.

Hvidevarer

Ja

Der hører køle-/fryseskab, komfur, ovn og emhætte med til lejligheden.

Gildesal

Nej

Der er ikke gildesal i afdelingen.

Råderet

Ja

Afdelingen har vedtaget, at man kan opføre et haveskur via råderetten.

TV

Ja

Der er installeret fibernet i boligen.

På hjemmesiden rah-fiber.dk kan du se hvilke udbydere af internet og TV, du kan vælge imellem.

Vand

Læs mere

Udgiften til vand betales direkte til Ringkøbing-Skjern Forsyning.

Varme

Læs mere

Boligerne opvarmes med fjernvarme, som betales direkte til Tarm Varmeværk.

Vicevært

Ja

Vicevært i afdelingen

Skur

Ja

Der er et skur til boligerne.

Affald

Læs mere

I Ringkøbing-Skjern kommune skal man affaldssortere.

Til hver bolig, hører der en 240 L opdelt affaldscontainer. Containeren bruges til mad- og restaffald.

Øvrigt affald skal afleveres på den kommunale genbrugsplads.

Ladestander

Nej

Der er ikke ladestander til elbil i afdelingen.

                        Se flere

## Boliger i afdelingen

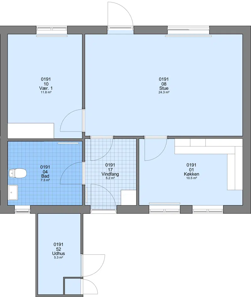
Familieboliger

2 rums

Familieboliger

Familieboliger

3 rums

Familieboliger

Boligtype

Værelser

Størrelse

Husleje

Indskud/dp

Plantegning

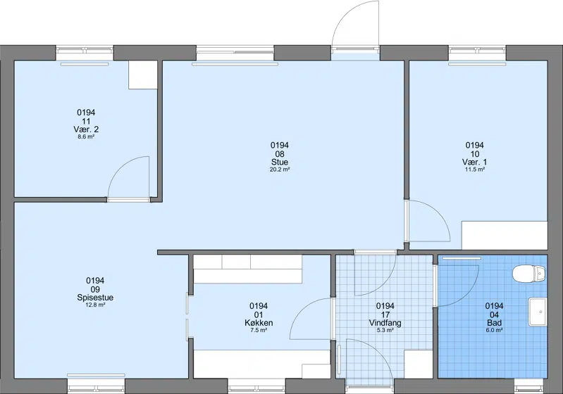
Familieboliger

2

69.7 m²

5073 kr.

13000 kr.

![](https://rsbolig.dk/i/MOLIRIMEDIA/a5f38140-8b13-4b76-0c96-08dd9d2caa1e?width=800)






![](https://rsbolig.dk/i/MOLIRIMEDIA/a5f38140-8b13-4b76-0c96-08dd9d2caa1e?width=800)

![](https://rsbolig.dk/i/MOLIRIMEDIA/916f3a59-22c6-40c4-11e4-08dd9d2caa1e?width=800)

![](https://rsbolig.dk/i/MOLIRIMEDIA/a5f38140-8b13-4b76-0c96-08dd9d2caa1e?width=800)

![](https://rsbolig.dk/i/MOLIRIMEDIA/916f3a59-22c6-40c4-11e4-08dd9d2caa1e?width=800)

Familieboliger

3

84.9 m²

5940 kr.

15000 kr.

![](https://rsbolig.dk/i/MOLIRIMEDIA/adb0b1e6-71c6-4120-1238-08dd9d2caa1e?width=800)






![](https://rsbolig.dk/i/MOLIRIMEDIA/adb0b1e6-71c6-4120-1238-08dd9d2caa1e?width=800)

![](https://rsbolig.dk/i/MOLIRIMEDIA/ab089c4f-e973-46a2-1486-08dd9d2caa1e?width=800)

![](https://rsbolig.dk/i/MOLIRIMEDIA/adb0b1e6-71c6-4120-1238-08dd9d2caa1e?width=800)

![](https://rsbolig.dk/i/MOLIRIMEDIA/ab089c4f-e973-46a2-1486-08dd9d2caa1e?width=800)

## Afdelingsdokumenter

Her finder du nyttig information om din afdeling, såsom husorden, vedligeholdelse af dit lejemål, referater m.m.

###

                                                Husorden

[Husorden, tæt lavt byggeri, afd. 91.pdf](https://rsbolig.dk/p/Files/Boligdata/Afdelinger/1-091/Husorden/Husorden--t&#xE6;t-lavt-byggeri--afd.-91.pdf)

###

                                                Afdelingsmøder

[2025 Referat afd.møde.pdf](https://rsbolig.dk/p/Files/Boligdata/Afdelinger/1-091/Afdelingsm&#xF8;der/2025-Referat-afd.m&#xF8;de.pdf)
                                            [2024 Referat afd.møde.pdf](https://rsbolig.dk/p/Files/Boligdata/Afdelinger/1-091/Afdelingsm&#xF8;der/2024-Referat-afd.m&#xF8;de.pdf)
                                            [2023 Referat afd.møde.pdf](https://rsbolig.dk/p/Files/Boligdata/Afdelinger/1-091/Afdelingsm&#xF8;der/2023-Referat-afd.m&#xF8;de.pdf)
                                            [2022 Referat afd.møde.pdf](https://rsbolig.dk/p/Files/Boligdata/Afdelinger/1-091/Afdelingsm&#xF8;der/2022-Referat-afd.m&#xF8;de.pdf)
                                            [2021 Referat afd. møde.pdf](https://rsbolig.dk/p/Files/Boligdata/Afdelinger/1-091/Afdelingsm&#xF8;der/2021-Referat-afd.-m&#xF8;de.pdf)
                                            [2020 Referat afd.møde.pdf](https://rsbolig.dk/p/Files/Boligdata/Afdelinger/1-091/Afdelingsm&#xF8;der/2020-Referat-afd.m&#xF8;de.pdf)
                                            [2019 Referat afd.møde.pdf](https://rsbolig.dk/p/Files/Boligdata/Afdelinger/1-091/Afdelingsm&#xF8;der/2019-Referat-afd.m&#xF8;de.pdf)
                                            [2018 Referat afd.møde.pdf](https://rsbolig.dk/p/Files/Boligdata/Afdelinger/1-091/Afdelingsm&#xF8;der/2018-Referat-afd.m&#xF8;de.pdf)
                                            [2017 Referat afd.møde.pdf](https://rsbolig.dk/p/Files/Boligdata/Afdelinger/1-091/Afdelingsm&#xF8;der/2017-Referat-afd.m&#xF8;de.pdf)
                                            [2016 Referat afd.møde.pdf](https://rsbolig.dk/p/Files/Boligdata/Afdelinger/1-091/Afdelingsm&#xF8;der/2016-Referat-afd.m&#xF8;de.pdf)

###

                                                Øvrigt

[Tarm Afd. 91 - Indflytningsbrochure.pdf](https://rsbolig.dk/p/Files/Boligdata/Afdelinger/1-091/&#xD8;vrigt/Tarm-Afd.-91---Indflytningsbrochure.pdf)
                                            [Vedtægter Rsbolig.pdf](https://rsbolig.dk/p/Files/Boligdata/Afdelinger/1-091/&#xD8;vrigt/Vedt&#xE6;gter-Rsbolig.pdf)

###

                                                Vedligehold

[Gode råd mod skimmelsvamp.pdf](https://rsbolig.dk/p/Files/Boligdata/Afdelinger/1-091/Vedligehold/Gode-r&#xE5;d-mod-skimmelsvamp.pdf)
                                            [Pas på fugtproblemet.pdf](https://rsbolig.dk/p/Files/Boligdata/Afdelinger/1-091/Vedligehold/Pas-p&#xE5;-fugtproblemet.pdf)
                                            [Vedligeholdelsesreglement.pdf](https://rsbolig.dk/p/Files/Boligdata/Afdelinger/1-091/Vedligehold/Vedligeholdelsesreglement.pdf)

## Placering
