---
title: "Østergade"
description: "1-25"
date: "2025-06-17"
created: "2025-06-12"
---

-
-
-

https://maps.google.dk/?q=56.0897575,8.2463176

# Østergade

Afdeling 25

## Velkommen til afdeling 25 Østergade

Afdelingen består af 14 rækkehuse beliggende centralt i Ringkøbing. Boligerne indrammer et hyggeligt gårdmiljø.

## Faciliteter

Gangbesværet

Se mere

De fleste boliger har indvendig eller udvendig trappe.

El

Se mere

Som lejer skal du, i forbindelse med indflytning, selv vælge hvilken el-leverandør du ønsker.

Husdyr

Nej

Det er tilladt at have én hund eller én kat. En hund må som voksen ikke være større end en "Cocker Spaniel". Uanset størrelsen, er det ikke tilladt at have en "Kamphund".

Hvidevarer

Ja

Der hører komfur, ovn og emhætte med til lejligheden.

Råderet

Ja

Afdelingen har vedtaget, at man kan forny køkkener via råderetten.

TV

Ja

Der er installeret fibernet i boligen.

På hjemmesiden rah-fiber.dk kan du se hvilke udbydere af internet og TV, du kan vælge imellem.

Vand

Læs mere

Udgiften til vand er inkl. i boliglejen.

Varme

Læs mere

Varme betales direkte til Ringkøbing Fjernvarme.

Vicevært

Ja

Vicevært i afdelingen

Fællesvaskeri

Ja

Vaskeri i afdelingen

Affald

Læs mere

I Ringkøbing-Skjern Kommune skal man affaldssortere.
Der er fælles affaldsstation, hvor madaffald og restaffald kan afleveres.
Øvrigt affald afleveres på den kommunale genbrugsplads eller de offentlige affaldsstationer i byen.

Ladestander

Nej

Der er ikke ladestander til elbil i afdelingen.

                        Se flere

## Boliger i afdelingen

Familieboliger

2 rums

Familieboliger

Familieboliger

3 rums

Familieboliger

Boligtype

Værelser

Størrelse

Husleje

Indskud/dp

Plantegning

Familieboliger

2

66.2 m²

5592 kr.

13000 kr.

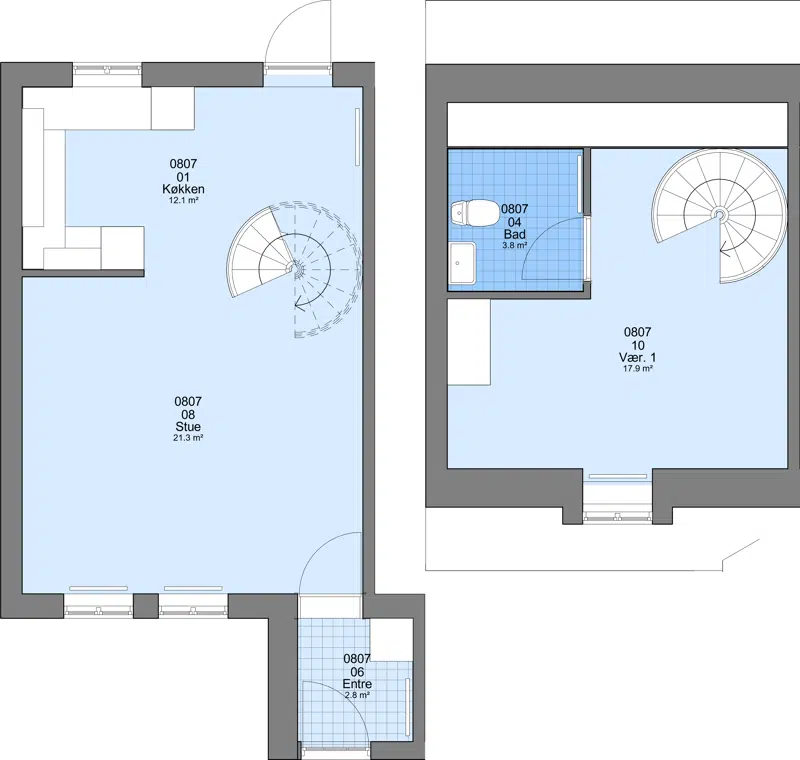
![](https://rsbolig.dk/i/MOLIRIMEDIA/268ad7a3-302e-4b77-26b7-08dda22a7775?width=800)






![](https://rsbolig.dk/i/MOLIRIMEDIA/268ad7a3-302e-4b77-26b7-08dda22a7775?width=800)

![](https://rsbolig.dk/i/MOLIRIMEDIA/992102bf-b4e8-45e6-10f4-08dd9d2caa1e?width=800)

![](https://rsbolig.dk/i/MOLIRIMEDIA/268ad7a3-302e-4b77-26b7-08dda22a7775?width=800)

![](https://rsbolig.dk/i/MOLIRIMEDIA/992102bf-b4e8-45e6-10f4-08dd9d2caa1e?width=800)

Familieboliger

2

69.9 m²

6685 kr.

13000 kr.

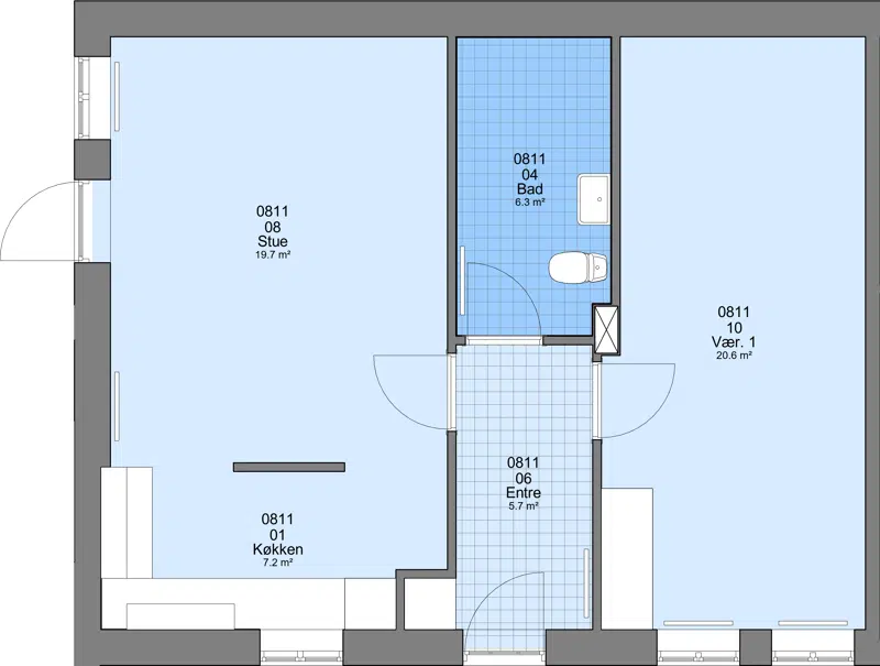
![](https://rsbolig.dk/i/MOLIRIMEDIA/a4097888-e060-46f0-d991-08dd9de71a53?width=800)






![](https://rsbolig.dk/i/MOLIRIMEDIA/a4097888-e060-46f0-d991-08dd9de71a53?width=800)

![](https://rsbolig.dk/i/MOLIRIMEDIA/555d095b-64c4-4621-1324-08dd9d2caa1e?width=800)

![](https://rsbolig.dk/i/MOLIRIMEDIA/a4097888-e060-46f0-d991-08dd9de71a53?width=800)

![](https://rsbolig.dk/i/MOLIRIMEDIA/555d095b-64c4-4621-1324-08dd9d2caa1e?width=800)

Familieboliger

2

69.9 m²

5826 kr.

11550 kr.

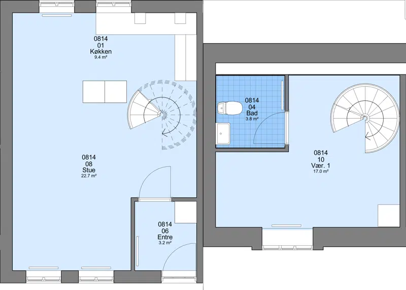
![](https://rsbolig.dk/i/MOLIRIMEDIA/6f391f03-20ba-4c41-10ff-08dd9d2caa1e?width=800)






![](https://rsbolig.dk/i/MOLIRIMEDIA/6f391f03-20ba-4c41-10ff-08dd9d2caa1e?width=800)

![](https://rsbolig.dk/i/MOLIRIMEDIA/78b5d48c-c0c7-43b8-1440-08dd9d2caa1e?width=800)

![](https://rsbolig.dk/i/MOLIRIMEDIA/6f391f03-20ba-4c41-10ff-08dd9d2caa1e?width=800)

![](https://rsbolig.dk/i/MOLIRIMEDIA/78b5d48c-c0c7-43b8-1440-08dd9d2caa1e?width=800)

Familieboliger

2

78 m²

6346 kr.

14350 kr.

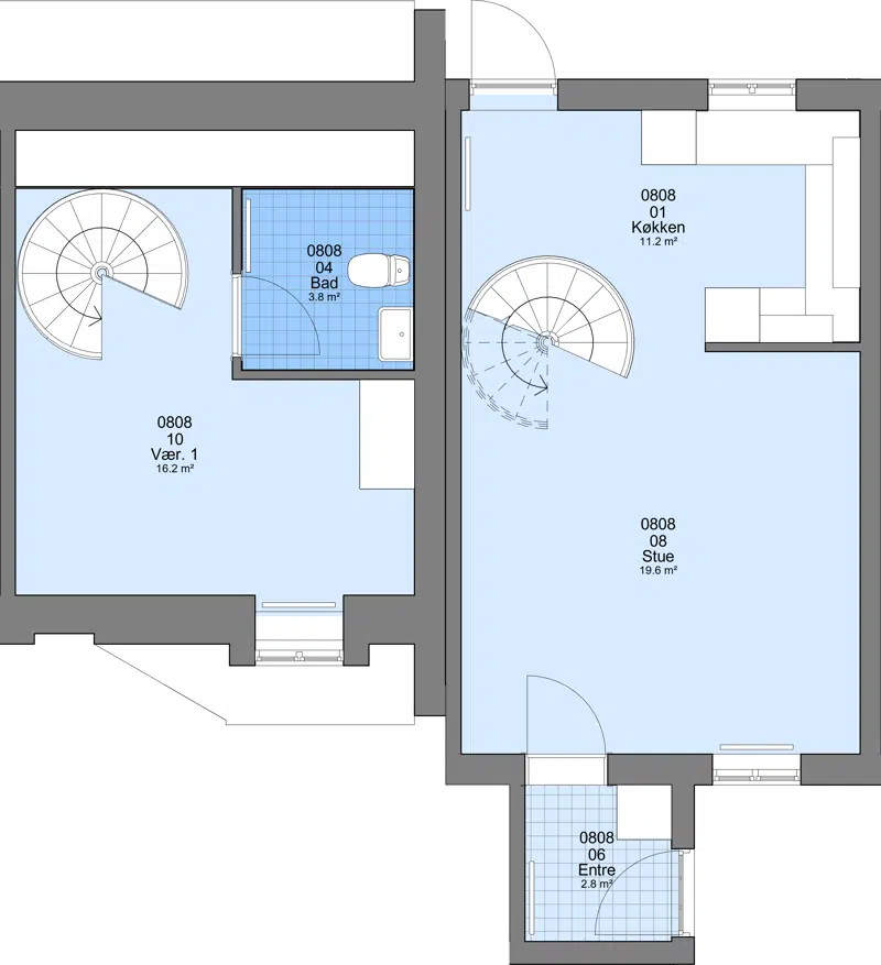
![](https://rsbolig.dk/i/MOLIRIMEDIA/7d8b63b3-db37-4e87-2613-08dda22a7775?width=800)






![](https://rsbolig.dk/i/MOLIRIMEDIA/7d8b63b3-db37-4e87-2613-08dda22a7775?width=800)

![](https://rsbolig.dk/i/MOLIRIMEDIA/95988e7a-91c1-4580-0f6d-08dd9d2caa1e?width=800)

![](https://rsbolig.dk/i/MOLIRIMEDIA/7d8b63b3-db37-4e87-2613-08dda22a7775?width=800)

![](https://rsbolig.dk/i/MOLIRIMEDIA/95988e7a-91c1-4580-0f6d-08dd9d2caa1e?width=800)

Familieboliger

2

70.6 m²

5867 kr.

13000 kr.

![](https://rsbolig.dk/i/MOLIRIMEDIA/15ea1672-0cc0-4c12-d8b2-08dd9de71a53?width=800)






![](https://rsbolig.dk/i/MOLIRIMEDIA/15ea1672-0cc0-4c12-d8b2-08dd9de71a53?width=800)

![](https://rsbolig.dk/i/MOLIRIMEDIA/3f5528ef-3c03-4f5b-0d0c-08dd9d2caa1e?width=800)

![](https://rsbolig.dk/i/MOLIRIMEDIA/15ea1672-0cc0-4c12-d8b2-08dd9de71a53?width=800)

![](https://rsbolig.dk/i/MOLIRIMEDIA/3f5528ef-3c03-4f5b-0d0c-08dd9d2caa1e?width=800)

Familieboliger

2

73.8 m²

6076 kr.

13000 kr.

![](https://rsbolig.dk/i/MOLIRIMEDIA/36bd5f90-695b-41dd-0b8f-08dd9d2caa1e?width=800)






![](https://rsbolig.dk/i/MOLIRIMEDIA/36bd5f90-695b-41dd-0b8f-08dd9d2caa1e?width=800)

![](https://rsbolig.dk/i/MOLIRIMEDIA/657eaf04-163e-4468-13d6-08dd9d2caa1e?width=800)

![](https://rsbolig.dk/i/MOLIRIMEDIA/36bd5f90-695b-41dd-0b8f-08dd9d2caa1e?width=800)

![](https://rsbolig.dk/i/MOLIRIMEDIA/657eaf04-163e-4468-13d6-08dd9d2caa1e?width=800)

Familieboliger

2

57.4 m²

5036 kr.

11000 kr.

![](https://rsbolig.dk/i/MOLIRIMEDIA/b1a0fcd1-f02b-4b04-2645-08dda22a7775?width=800)






![](https://rsbolig.dk/i/MOLIRIMEDIA/b1a0fcd1-f02b-4b04-2645-08dda22a7775?width=800)

![](https://rsbolig.dk/i/MOLIRIMEDIA/fb63badb-cc8a-46dc-0c09-08dd9d2caa1e?width=800)

![](https://rsbolig.dk/i/MOLIRIMEDIA/b1a0fcd1-f02b-4b04-2645-08dda22a7775?width=800)

![](https://rsbolig.dk/i/MOLIRIMEDIA/fb63badb-cc8a-46dc-0c09-08dd9d2caa1e?width=800)

Familieboliger

2

62.2 m²

5343 kr.

11000 kr.

![](https://rsbolig.dk/i/MOLIRIMEDIA/91a24f19-8ead-4e97-12e1-08dd9d2caa1e?width=800)






![](https://rsbolig.dk/i/MOLIRIMEDIA/91a24f19-8ead-4e97-12e1-08dd9d2caa1e?width=800)

![](https://rsbolig.dk/i/MOLIRIMEDIA/48676e2c-7df9-4f7b-1468-08dd9d2caa1e?width=800)

![](https://rsbolig.dk/i/MOLIRIMEDIA/91a24f19-8ead-4e97-12e1-08dd9d2caa1e?width=800)

![](https://rsbolig.dk/i/MOLIRIMEDIA/48676e2c-7df9-4f7b-1468-08dd9d2caa1e?width=800)

Familieboliger

2

62.2 m²

5343 kr.

11000 kr.

![](https://rsbolig.dk/i/MOLIRIMEDIA/7ce79a9d-b880-4dfe-da4b-08dd9de71a53?width=800)






![](https://rsbolig.dk/i/MOLIRIMEDIA/7ce79a9d-b880-4dfe-da4b-08dd9de71a53?width=800)

![](https://rsbolig.dk/i/MOLIRIMEDIA/16bf5262-fa9f-4c0a-1182-08dd9d2caa1e?width=800)

![](https://rsbolig.dk/i/MOLIRIMEDIA/7ce79a9d-b880-4dfe-da4b-08dd9de71a53?width=800)

![](https://rsbolig.dk/i/MOLIRIMEDIA/16bf5262-fa9f-4c0a-1182-08dd9d2caa1e?width=800)

Familieboliger

2

66.6 m²

6409 kr.

13000 kr.

![](https://rsbolig.dk/i/MOLIRIMEDIA/c1fb0d47-357c-48fd-26a8-08dda22a7775?width=800)






![](https://rsbolig.dk/i/MOLIRIMEDIA/c1fb0d47-357c-48fd-26a8-08dda22a7775?width=800)

![](https://rsbolig.dk/i/MOLIRIMEDIA/c17d0ecb-3d40-44c2-0acb-08dd9d2caa1e?width=800)

![](https://rsbolig.dk/i/MOLIRIMEDIA/c1fb0d47-357c-48fd-26a8-08dda22a7775?width=800)

![](https://rsbolig.dk/i/MOLIRIMEDIA/c17d0ecb-3d40-44c2-0acb-08dd9d2caa1e?width=800)

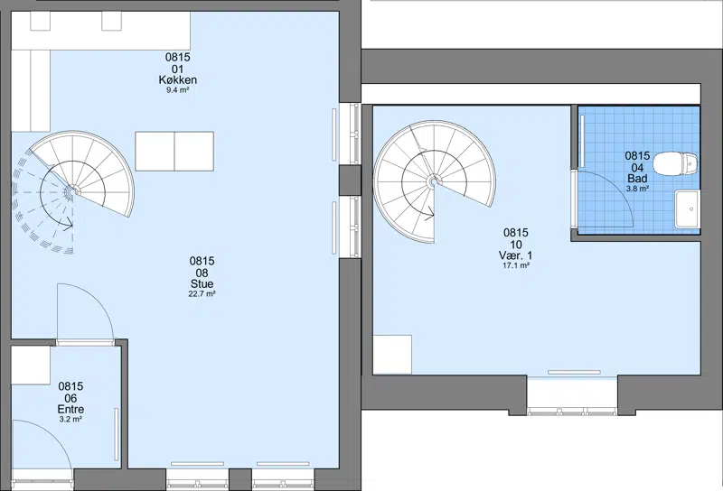
Familieboliger

2

78 m²

6346 kr.

13000 kr.

![](https://rsbolig.dk/i/MOLIRIMEDIA/eb0d46fb-5443-484b-0cfb-08dd9d2caa1e?width=800)






![](https://rsbolig.dk/i/MOLIRIMEDIA/eb0d46fb-5443-484b-0cfb-08dd9d2caa1e?width=800)

![](https://rsbolig.dk/i/MOLIRIMEDIA/1df4e4e6-7285-4428-0faa-08dd9d2caa1e?width=800)

![](https://rsbolig.dk/i/MOLIRIMEDIA/eb0d46fb-5443-484b-0cfb-08dd9d2caa1e?width=800)

![](https://rsbolig.dk/i/MOLIRIMEDIA/1df4e4e6-7285-4428-0faa-08dd9d2caa1e?width=800)

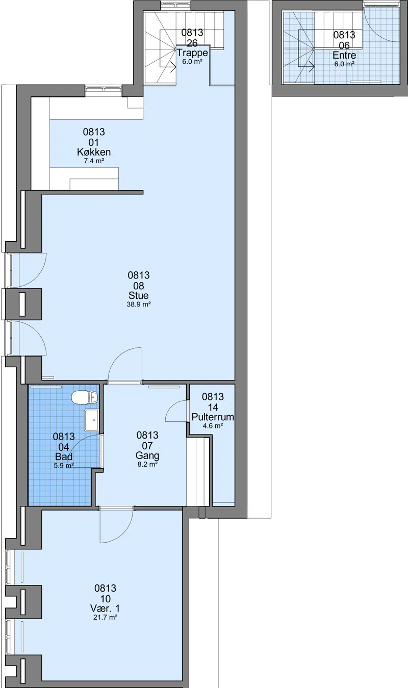
Familieboliger

3

102.7 m²

8148 kr.

15700 kr.

![](https://rsbolig.dk/i/MOLIRIMEDIA/1a84fded-4ff3-473f-da5b-08dd9de71a53?width=800)






![](https://rsbolig.dk/i/MOLIRIMEDIA/1a84fded-4ff3-473f-da5b-08dd9de71a53?width=800)

![](https://rsbolig.dk/i/MOLIRIMEDIA/b4234a39-ac50-4f77-0d99-08dd9d2caa1e?width=800)

![](https://rsbolig.dk/i/MOLIRIMEDIA/1a84fded-4ff3-473f-da5b-08dd9de71a53?width=800)

![](https://rsbolig.dk/i/MOLIRIMEDIA/b4234a39-ac50-4f77-0d99-08dd9d2caa1e?width=800)

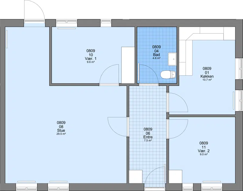
Familieboliger

3

84.9 m²

6777 kr.

15000 kr.

![](https://rsbolig.dk/i/MOLIRIMEDIA/db8f2a2e-a022-4b01-d932-08dd9de71a53?width=800)






![](https://rsbolig.dk/i/MOLIRIMEDIA/db8f2a2e-a022-4b01-d932-08dd9de71a53?width=800)

![](https://rsbolig.dk/i/MOLIRIMEDIA/a4223ff8-3941-4b48-0d65-08dd9d2caa1e?width=800)

![](https://rsbolig.dk/i/MOLIRIMEDIA/db8f2a2e-a022-4b01-d932-08dd9de71a53?width=800)

![](https://rsbolig.dk/i/MOLIRIMEDIA/a4223ff8-3941-4b48-0d65-08dd9d2caa1e?width=800)

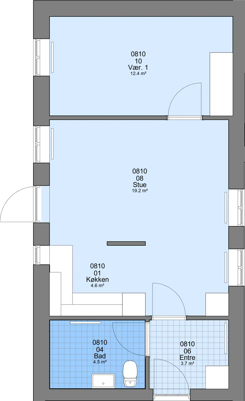
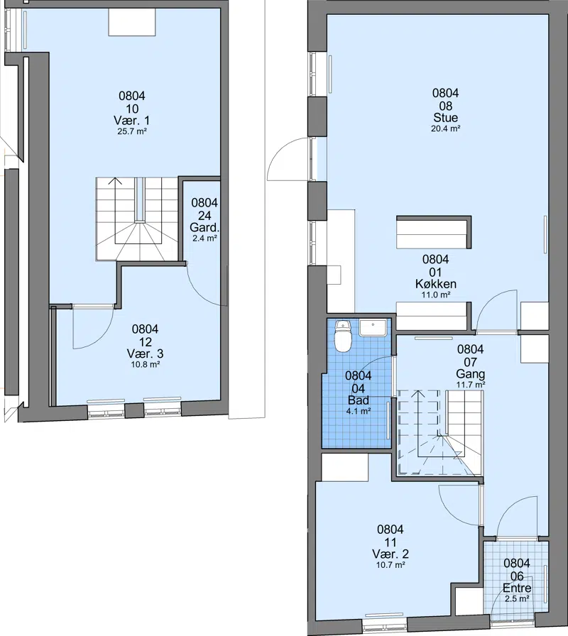
Familieboliger

3

108.5 m²

8268 kr.

16450 kr.

![](https://rsbolig.dk/i/MOLIRIMEDIA/49df3396-4ee8-48de-d918-08dd9de71a53?width=800)






![](https://rsbolig.dk/i/MOLIRIMEDIA/49df3396-4ee8-48de-d918-08dd9de71a53?width=800)

![](https://rsbolig.dk/i/MOLIRIMEDIA/7ef1968e-8b3e-4fa6-0c63-08dd9d2caa1e?width=800)

![](https://rsbolig.dk/i/MOLIRIMEDIA/49df3396-4ee8-48de-d918-08dd9de71a53?width=800)

![](https://rsbolig.dk/i/MOLIRIMEDIA/7ef1968e-8b3e-4fa6-0c63-08dd9d2caa1e?width=800)

## Afdelingsdokumenter

Her finder du nyttig information om din afdeling, såsom husorden, vedligeholdelse af dit lejemål, referater m.m.

###

                                                Husorden

[Husorden, tæt lavt byggeri.pdf](https://rsbolig.dk/p/Files/Boligdata/Afdelinger/1-025/Husorden/Husorden--t&#xE6;t-lavt-byggeri.pdf)

###

                                                Afdelingsmøder

[2025 Referat afd.møde.pdf](https://rsbolig.dk/p/Files/Boligdata/Afdelinger/1-025/Afdelingsm&#xF8;der/2025-Referat-afd.m&#xF8;de.pdf)
                                            [2024 Referat afd.møde.pdf](https://rsbolig.dk/p/Files/Boligdata/Afdelinger/1-025/Afdelingsm&#xF8;der/2024-Referat-afd.m&#xF8;de.pdf)
                                            [2023 Referat afd.møde.pdf](https://rsbolig.dk/p/Files/Boligdata/Afdelinger/1-025/Afdelingsm&#xF8;der/2023-Referat-afd.m&#xF8;de.pdf)
                                            [2022 Referat afd.møde.pdf](https://rsbolig.dk/p/Files/Boligdata/Afdelinger/1-025/Afdelingsm&#xF8;der/2022-Referat-afd.m&#xF8;de.pdf)
                                            [2021 Referat afd.møde.pdf](https://rsbolig.dk/p/Files/Boligdata/Afdelinger/1-025/Afdelingsm&#xF8;der/2021-Referat-afd.m&#xF8;de.pdf)
                                            [2020 Referat afd.møde.pdf](https://rsbolig.dk/p/Files/Boligdata/Afdelinger/1-025/Afdelingsm&#xF8;der/2020-Referat-afd.m&#xF8;de.pdf)
                                            [2019 Referat afd.møde.pdf](https://rsbolig.dk/p/Files/Boligdata/Afdelinger/1-025/Afdelingsm&#xF8;der/2019-Referat-afd.m&#xF8;de.pdf)
                                            [2018 Referat afd.møde.pdf](https://rsbolig.dk/p/Files/Boligdata/Afdelinger/1-025/Afdelingsm&#xF8;der/2018-Referat-afd.m&#xF8;de.pdf)
                                            [2017 Referat afd.møde.pdf](https://rsbolig.dk/p/Files/Boligdata/Afdelinger/1-025/Afdelingsm&#xF8;der/2017-Referat-afd.m&#xF8;de.pdf)
                                            [2016 Referat afd.møde.pdf](https://rsbolig.dk/p/Files/Boligdata/Afdelinger/1-025/Afdelingsm&#xF8;der/2016-Referat-afd.m&#xF8;de.pdf)
                                            [2015 Referat afd.møde.pdf](https://rsbolig.dk/p/Files/Boligdata/Afdelinger/1-025/Afdelingsm&#xF8;der/2015-Referat-afd.m&#xF8;de.pdf)

###

                                                Afdelingsbestyrelsesmøder

[2017-03-22 Referat afd.best.møde.pdf](https://rsbolig.dk/p/Files/Boligdata/Afdelinger/1-025/Afdelingsbestyrelsesm&#xF8;der/2017-03-22-Referat-afd.best.m&#xF8;de.pdf)

###

                                                Øvrigt

[Afd. 25 - Indflytningsbrochure.pdf](https://rsbolig.dk/p/Files/Boligdata/Afdelinger/1-025/&#xD8;vrigt/Afd.-25---Indflytningsbrochure.pdf)
                                            [Vedtægter Rsbolig.pdf](https://rsbolig.dk/p/Files/Boligdata/Afdelinger/1-025/&#xD8;vrigt/Vedt&#xE6;gter-Rsbolig.pdf)

###

                                                Vedligehold

[Gode råd mod skimmelsvamp.pdf](https://rsbolig.dk/p/Files/Boligdata/Afdelinger/1-025/Vedligehold/Gode-r&#xE5;d-mod-skimmelsvamp.pdf)
                                            [Hvid sæbe til nåletræsgulve.pdf](https://rsbolig.dk/p/Files/Boligdata/Afdelinger/1-025/Vedligehold/Hvid-s&#xE6;be-til-n&#xE5;letr&#xE6;sgulve.pdf)
                                            [Pas på fugtproblemet.pdf](https://rsbolig.dk/p/Files/Boligdata/Afdelinger/1-025/Vedligehold/Pas-p&#xE5;-fugtproblemet.pdf)
                                            [sæbelud.pdf](https://rsbolig.dk/p/Files/Boligdata/Afdelinger/1-025/Vedligehold/s&#xE6;belud.pdf)
                                            [Vedligeholdelsesreglement.pdf](https://rsbolig.dk/p/Files/Boligdata/Afdelinger/1-025/Vedligehold/Vedligeholdelsesreglement.pdf)

## Placering
