---
title: "Holmegaardsbakken 24 - 30"
description: "1-39"
date: "2025-08-01"
created: "2025-06-12"
---

-

https://maps.google.dk/?q=56.0912931,8.2635055

# Holmegaardsbakken 24 - 30

Afdeling 39

## Velkommen til afdeling 39 Holmegaardsbakken 24 - 30

Afdelingen består af 26 ældreboliger. Boligerne er fordelt i 4 huse, hvor lejlighederne ligger i forbindelse med store fællesarealer. Anvisning af ældreboligerne sker via Ringkøbing-Skjern Kommune.

## Faciliteter

Altan/Have

Ja

Der er en terrasse til boligerne.

Gangbesværet

Se mere

Boligerne er indrettet ældre- og handicapvenligt.

El

Se mere

Som lejer skal du, i forbindelse med indflytning, selv vælge hvilken el-leverandør du ønsker.

Husdyr

Nej

Det er ikke tilladt at holde husdyr.

Hvidevarer

Ja

Der hører et køleskab med en lille frostboks til boligen.

Råderet

Nej

Der er ikke vedtaget mulighed for råderet i afdelingen.

TV

Ja

Der er installeret fibernet i boligen.

På hjemmesiden rah-fiber.dk kan du se hvilke udbydere af internet og TV, du kan vælge imellem.

Vand

Læs mere

Vand betales direkte til Ringkøbing-Skjern Forsyning.

Varme

Læs mere

Varme betales direkte til Ringkøbing Fjernvarme.

Vicevært

Ja

Vicevært i afdelingen

Fællesvaskeri

Ja

Vaskeri i afdelingen

Affald

Læs mere

I Ringkøbing-Skjern Kommune skal man affaldssortere.

Der er fælles affaldsstation, hvor mad- og restaffald kan afleveres.

Øvrigt affald afleveres på den kommunale genbrugsplads eller de offentlige affaldsstationer i byen.

Ladestander

Nej

Der er ikke ladestander til elbil i afdelingen.

                        Se flere

## Boliger i afdelingen

Ældreboliger

2 rums

Ældreboliger

Boligtype

Værelser

Størrelse

Husleje

Indskud/dp

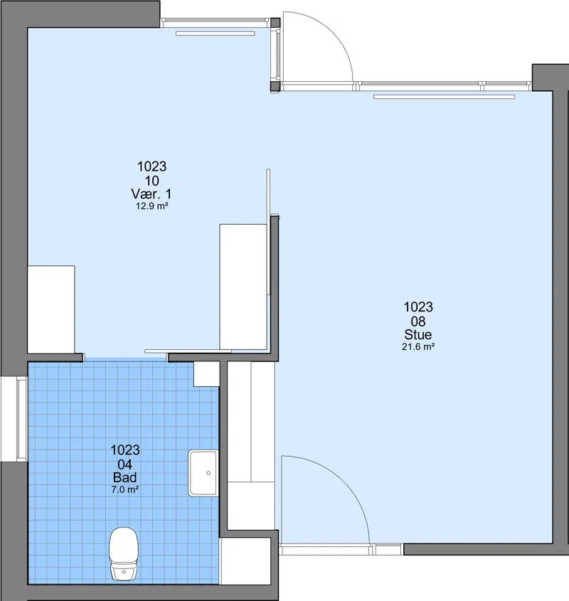
Plantegning

Ældreboliger

2

85 m²

8080 kr.

19890 kr.

![](https://rsbolig.dk/i/MOLIRIMEDIA/67b2e5de-7e1e-4d5a-0aa6-08dd9d2caa1e?width=800)






![](https://rsbolig.dk/i/MOLIRIMEDIA/67b2e5de-7e1e-4d5a-0aa6-08dd9d2caa1e?width=800)

![](https://rsbolig.dk/i/MOLIRIMEDIA/eb6cb289-7a9a-494e-0fab-08dd9d2caa1e?width=800)

![](https://rsbolig.dk/i/MOLIRIMEDIA/67b2e5de-7e1e-4d5a-0aa6-08dd9d2caa1e?width=800)

![](https://rsbolig.dk/i/MOLIRIMEDIA/eb6cb289-7a9a-494e-0fab-08dd9d2caa1e?width=800)

## Afdelingsdokumenter

Her finder du nyttig information om din afdeling, såsom husorden, vedligeholdelse af dit lejemål, referater m.m.

###

                                                Husorden

[Husorden, tæt lavt byggeri.pdf](https://rsbolig.dk/p/Files/Boligdata/Afdelinger/1-039/Husorden/Husorden--t&#xE6;t-lavt-byggeri.pdf)

###

                                                Afdelingsmøder

[2025 Referat afd.møde.pdf](https://rsbolig.dk/p/Files/Boligdata/Afdelinger/1-039/Afdelingsm&#xF8;der/2025-Referat-afd.m&#xF8;de.pdf)
                                            [2024 Referat afd.møde.pdf](https://rsbolig.dk/p/Files/Boligdata/Afdelinger/1-039/Afdelingsm&#xF8;der/2024-Referat-afd.m&#xF8;de.pdf)
                                            [2023 Referat afd.møde.pdf](https://rsbolig.dk/p/Files/Boligdata/Afdelinger/1-039/Afdelingsm&#xF8;der/2023-Referat-afd.m&#xF8;de.pdf)
                                            [2022 Referat afd.møde.pdf](https://rsbolig.dk/p/Files/Boligdata/Afdelinger/1-039/Afdelingsm&#xF8;der/2022-Referat-afd.m&#xF8;de.pdf)
                                            [2021 Referat afd.møde.pdf](https://rsbolig.dk/p/Files/Boligdata/Afdelinger/1-039/Afdelingsm&#xF8;der/2021-Referat-afd.m&#xF8;de.pdf)
                                            [2020 Referat afd.møde.pdf](https://rsbolig.dk/p/Files/Boligdata/Afdelinger/1-039/Afdelingsm&#xF8;der/2020-Referat-afd.m&#xF8;de.pdf)
                                            [2019 Referat afd.møde.pdf](https://rsbolig.dk/p/Files/Boligdata/Afdelinger/1-039/Afdelingsm&#xF8;der/2019-Referat-afd.m&#xF8;de.pdf)
                                            [2018 Referat afd.møde.pdf](https://rsbolig.dk/p/Files/Boligdata/Afdelinger/1-039/Afdelingsm&#xF8;der/2018-Referat-afd.m&#xF8;de.pdf)

###

                                                Øvrigt

[Afd. 39 - Indflytningsbrochure.pdf](https://rsbolig.dk/p/Files/Boligdata/Afdelinger/1-039/&#xD8;vrigt/Afd.-39---Indflytningsbrochure.pdf)
                                            [Vedtægter Rsbolig.pdf](https://rsbolig.dk/p/Files/Boligdata/Afdelinger/1-039/&#xD8;vrigt/Vedt&#xE6;gter-Rsbolig.pdf)

###

                                                Vedligehold

[Gode råd mod skimmelsvamp.pdf](https://rsbolig.dk/p/Files/Boligdata/Afdelinger/1-039/Vedligehold/Gode-r&#xE5;d-mod-skimmelsvamp.pdf)
                                            [Pas på fugtproblemet.pdf](https://rsbolig.dk/p/Files/Boligdata/Afdelinger/1-039/Vedligehold/Pas-p&#xE5;-fugtproblemet.pdf)
                                            [Vedligeholdelsesreglement.pdf](https://rsbolig.dk/p/Files/Boligdata/Afdelinger/1-039/Vedligehold/Vedligeholdelsesreglement.pdf)

## Placering
