---
title: "Fjordudsigten, etape 2"
description: "1-54"
date: "2025-08-01"
created: "2025-06-12"
---

-
-
-
-
-
-
-

https://maps.google.dk/?q=56.1256218,8.3083572

# Fjordudsigten, etape 2

Afdeling 54

## Velkommen til afdeling 54 Fjordudsigten, etape 2

Afdelingen består af 33 røgfri lavenergi boliger. Boligerne er placeret tæt på naturen i Naturbydelen i Ringkøbing. Afdelingen er 2. etape ud af 80 boliger. Flere af boligerne har udsigt direkte til Ringkøbing fjord.

## Faciliteter

Altan/Have

Ja

Der er altan til boligerne med indgang på 1. sal. Boligerne med indgang i stueetagen har en terrasse.

Gangbesværet

Se mere

Boligerne med 3 rum er i to plan. Der er 11 stk. 4 rums boliger, som er uden trapper.

El

Se mere

Udgiften til el betales aconto til boligforeningen.

Der er installeret solceller, som supplement til dit elforbrug.

Husdyr

Ja

Det er tilladt at holde ét husdyr.

Hvidevarer

Ja

Der er komfur, ovn, emhætte og Køle-/fryseskab i boligen.

Gildesal

Nej

Der er ikke gildesal i afdelingen.

Råderet

Nej

Der er ikke vedtaget mulighed for råderet i afdelingen.

TV

Ja

Der er installeret fibernet i boligen.

På hjemmesiden rah-fiber.dk kan du se hvilke udbydere af internet og TV, du kan vælge imellem.

Vand

Læs mere

Vand betales aconto til Ringkøbing-Skjern Boligforening. Der laves en årlig opgørelse.

Varme

Læs mere

Boligerne opvarmes via et ventilationsanlæg med varmegenindvinding.

Anlægget har en varmepumpe til at producere varmt vand.

Vicevært

Ja

Vicevært i afdelingen

Skur

Ja

Der er et skur til hver bolig.

Affald

Læs mere

I Ringkøbing-Skjern Kommune skal man affaldssortere.

Der er fælles affaldsstation, hvor madaffald, restaffald, pap/papir og plast/metal/mad- og drikkekartoner kan afleveres.

Øvrigt affald afleveres på den kommunale genbrugsplads eller de offentlige affaldsstationer i byen.

Ladestander

Der er ladestander fra Prostrøm i afdelingen.

                        Se flere

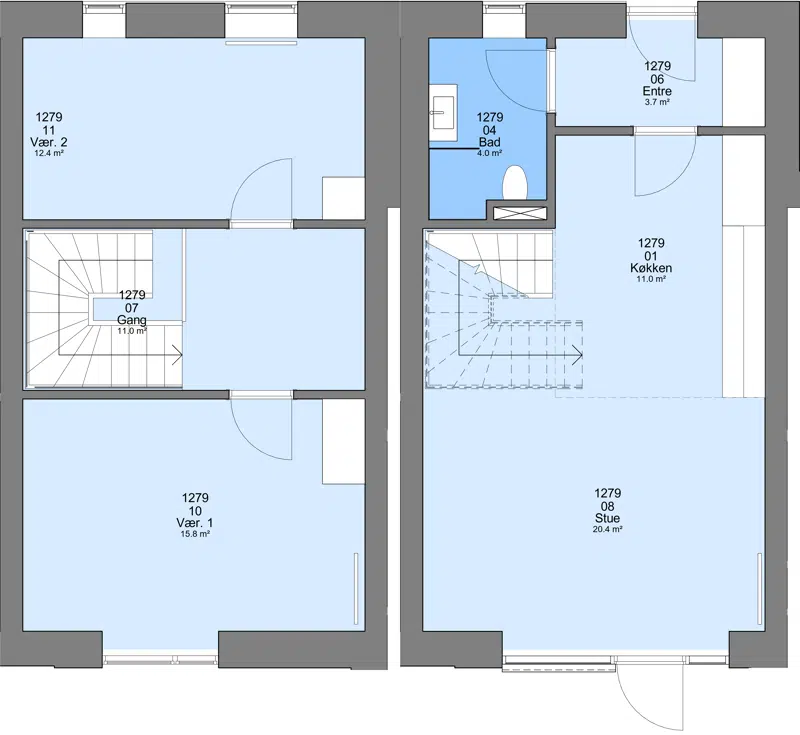
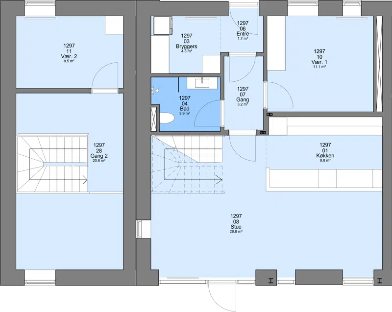
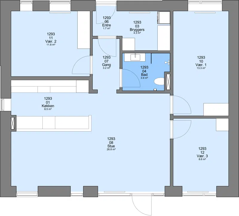
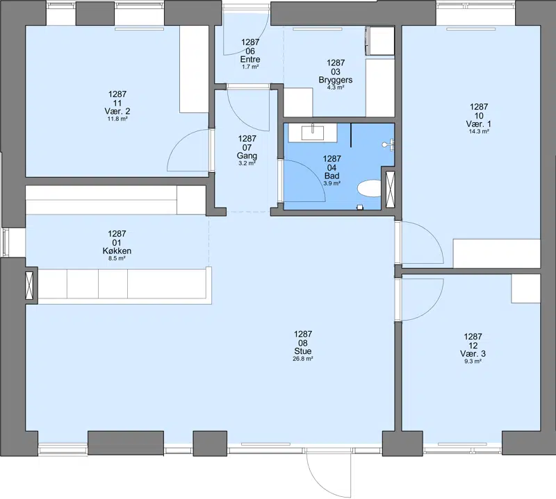
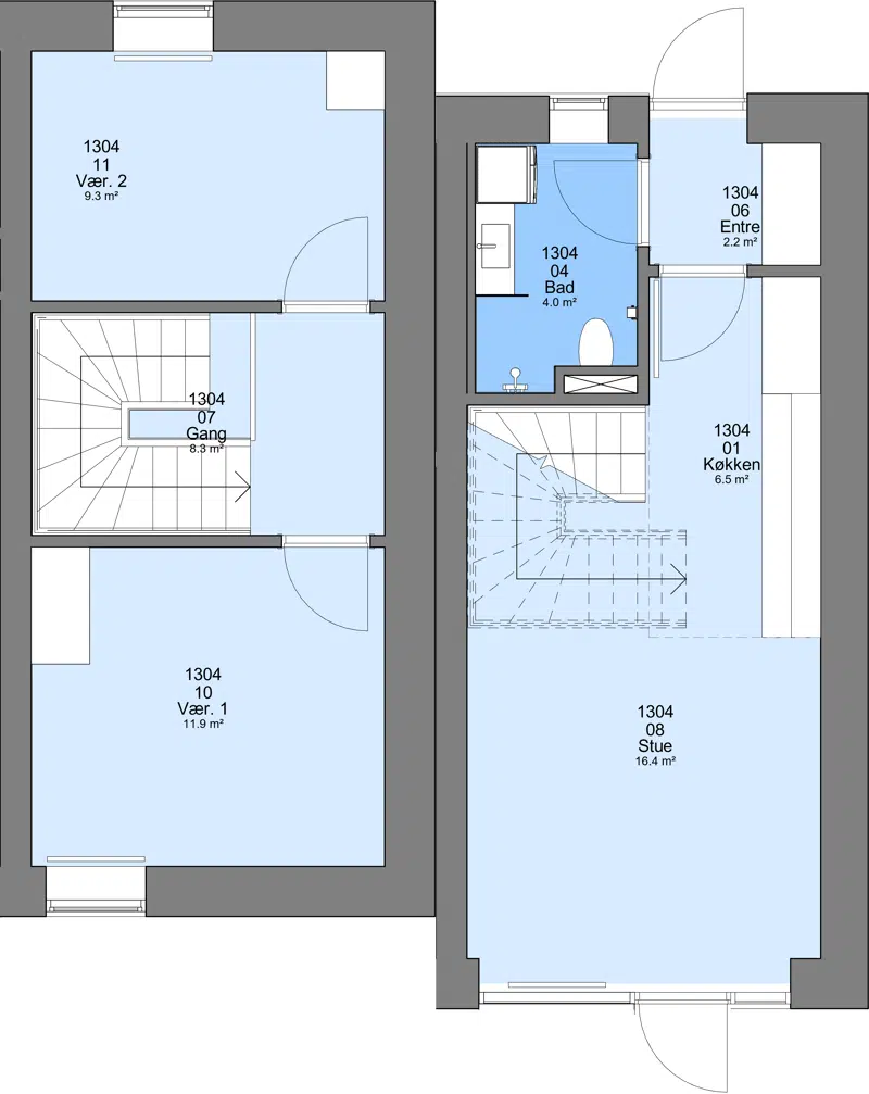
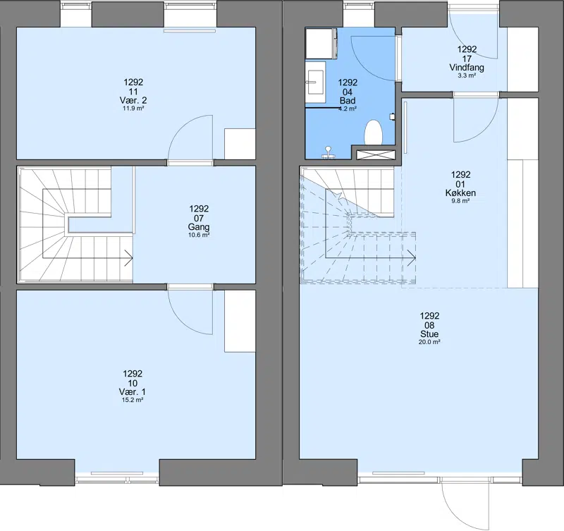
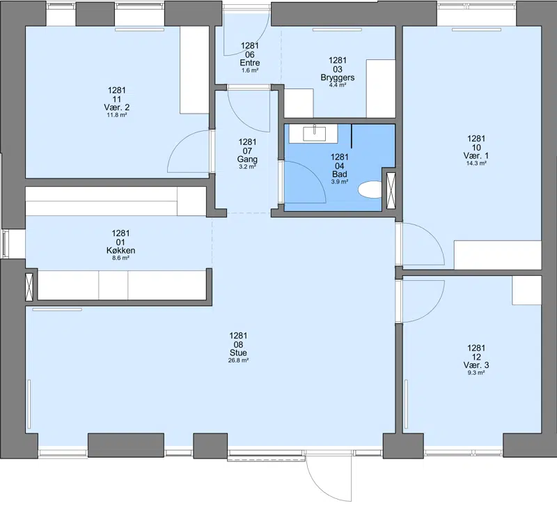
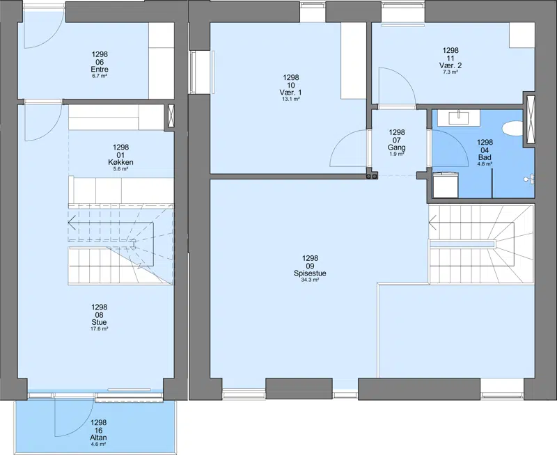
## Boliger i afdelingen

Familieboliger

3 rums

Familieboliger

Familieboliger

4 rums

Familieboliger

Boligtype

Værelser

Størrelse

Husleje

Indskud/dp

Plantegning

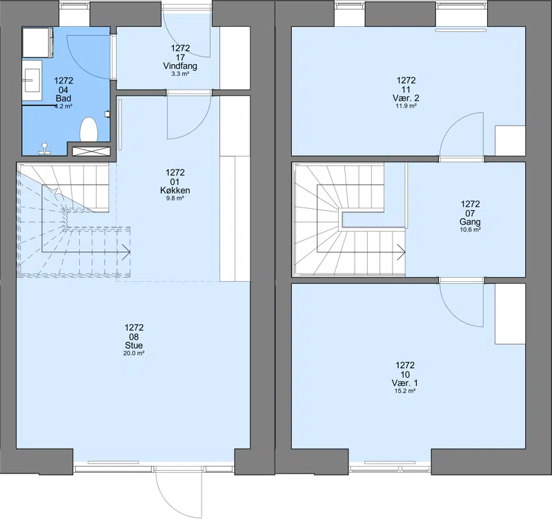
Familieboliger

3

100 m²

7968 kr.

24000 kr.

![](https://rsbolig.dk/i/MOLIRIMEDIA/32c5f46a-b887-412a-13e2-08dd9d2caa1e?width=800)






![](https://rsbolig.dk/i/MOLIRIMEDIA/32c5f46a-b887-412a-13e2-08dd9d2caa1e?width=800)

![](https://rsbolig.dk/i/MOLIRIMEDIA/98b6d5ac-35fd-41d2-13fe-08dd9d2caa1e?width=800)

![](https://rsbolig.dk/i/MOLIRIMEDIA/32c5f46a-b887-412a-13e2-08dd9d2caa1e?width=800)

![](https://rsbolig.dk/i/MOLIRIMEDIA/98b6d5ac-35fd-41d2-13fe-08dd9d2caa1e?width=800)

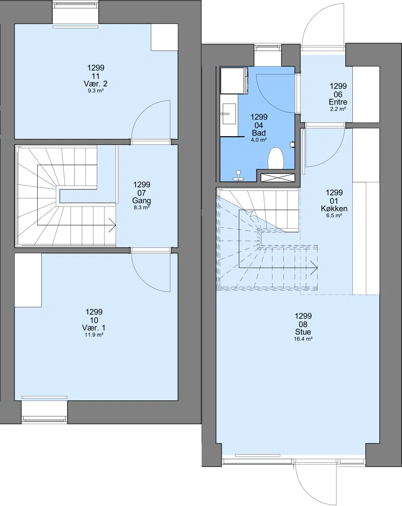
Familieboliger

3

80 m²

6890 kr.

33100 kr.

![](https://rsbolig.dk/i/MOLIRIMEDIA/275cde66-a662-4df6-d94f-08dd9de71a53?width=800)






![](https://rsbolig.dk/i/MOLIRIMEDIA/275cde66-a662-4df6-d94f-08dd9de71a53?width=800)

![](https://rsbolig.dk/i/MOLIRIMEDIA/2ae58a90-2e08-4cae-0b44-08dd9d2caa1e?width=800)

![](https://rsbolig.dk/i/MOLIRIMEDIA/275cde66-a662-4df6-d94f-08dd9de71a53?width=800)

![](https://rsbolig.dk/i/MOLIRIMEDIA/2ae58a90-2e08-4cae-0b44-08dd9d2caa1e?width=800)

Familieboliger

3

80 m²

7077 kr.

21500 kr.

![](https://rsbolig.dk/i/MOLIRIMEDIA/607a2a32-bfb0-4b40-d930-08dd9de71a53?width=800)






![](https://rsbolig.dk/i/MOLIRIMEDIA/607a2a32-bfb0-4b40-d930-08dd9de71a53?width=800)

![](https://rsbolig.dk/i/MOLIRIMEDIA/bb1714bc-0f39-4ee6-133e-08dd9d2caa1e?width=800)

![](https://rsbolig.dk/i/MOLIRIMEDIA/607a2a32-bfb0-4b40-d930-08dd9de71a53?width=800)

![](https://rsbolig.dk/i/MOLIRIMEDIA/bb1714bc-0f39-4ee6-133e-08dd9d2caa1e?width=800)

Familieboliger

3

115 m²

9645 kr.

29000 kr.

![](https://rsbolig.dk/i/MOLIRIMEDIA/5bdb99f1-1653-4b97-da89-08dd9de71a53?width=800)






![](https://rsbolig.dk/i/MOLIRIMEDIA/5bdb99f1-1653-4b97-da89-08dd9de71a53?width=800)

![](https://rsbolig.dk/i/MOLIRIMEDIA/41d0b9ea-8aad-4b25-0e11-08dd9d2caa1e?width=800)

![](https://rsbolig.dk/i/MOLIRIMEDIA/5bdb99f1-1653-4b97-da89-08dd9de71a53?width=800)

![](https://rsbolig.dk/i/MOLIRIMEDIA/41d0b9ea-8aad-4b25-0e11-08dd9d2caa1e?width=800)

Familieboliger

3

109 m²

9645 kr.

29000 kr.

![](https://rsbolig.dk/i/MOLIRIMEDIA/72807da2-2228-4c5a-d919-08dd9de71a53?width=800)






![](https://rsbolig.dk/i/MOLIRIMEDIA/72807da2-2228-4c5a-d919-08dd9de71a53?width=800)

![](https://rsbolig.dk/i/MOLIRIMEDIA/f79255bc-9aa8-4ae4-111d-08dd9d2caa1e?width=800)

![](https://rsbolig.dk/i/MOLIRIMEDIA/72807da2-2228-4c5a-d919-08dd9de71a53?width=800)

![](https://rsbolig.dk/i/MOLIRIMEDIA/f79255bc-9aa8-4ae4-111d-08dd9d2caa1e?width=800)

Familieboliger

3

100 m²

7968 kr.

24000 kr.

![](https://rsbolig.dk/i/MOLIRIMEDIA/0a09ada5-bfdb-49a4-1042-08dd9d2caa1e?width=800)






![](https://rsbolig.dk/i/MOLIRIMEDIA/0a09ada5-bfdb-49a4-1042-08dd9d2caa1e?width=800)

![](https://rsbolig.dk/i/MOLIRIMEDIA/f77699e3-3b80-4c43-10cb-08dd9d2caa1e?width=800)

![](https://rsbolig.dk/i/MOLIRIMEDIA/0a09ada5-bfdb-49a4-1042-08dd9d2caa1e?width=800)

![](https://rsbolig.dk/i/MOLIRIMEDIA/f77699e3-3b80-4c43-10cb-08dd9d2caa1e?width=800)

Familieboliger

3

100 m²

7968 kr.

24000 kr.

![](https://rsbolig.dk/i/MOLIRIMEDIA/d31e3c1e-c31e-4c93-2636-08dda22a7775?width=800)






![](https://rsbolig.dk/i/MOLIRIMEDIA/d31e3c1e-c31e-4c93-2636-08dda22a7775?width=800)

![](https://rsbolig.dk/i/MOLIRIMEDIA/ab98ac1e-7993-425b-0c6c-08dd9d2caa1e?width=800)

![](https://rsbolig.dk/i/MOLIRIMEDIA/d31e3c1e-c31e-4c93-2636-08dda22a7775?width=800)

![](https://rsbolig.dk/i/MOLIRIMEDIA/ab98ac1e-7993-425b-0c6c-08dd9d2caa1e?width=800)

Familieboliger

4

106 m²

8912 kr.

27000 kr.

![](https://rsbolig.dk/i/MOLIRIMEDIA/0a5cb776-d613-47e4-0d9d-08dd9d2caa1e?width=800)






![](https://rsbolig.dk/i/MOLIRIMEDIA/0a5cb776-d613-47e4-0d9d-08dd9d2caa1e?width=800)

![](https://rsbolig.dk/i/MOLIRIMEDIA/e04a4c83-7e10-4ac7-11ae-08dd9d2caa1e?width=800)

![](https://rsbolig.dk/i/MOLIRIMEDIA/0a5cb776-d613-47e4-0d9d-08dd9d2caa1e?width=800)

![](https://rsbolig.dk/i/MOLIRIMEDIA/e04a4c83-7e10-4ac7-11ae-08dd9d2caa1e?width=800)

Familieboliger

4

115 m²

8912 kr.

27000 kr.

![](https://rsbolig.dk/i/MOLIRIMEDIA/250ed390-556e-44ff-100d-08dd9d2caa1e?width=800)






![](https://rsbolig.dk/i/MOLIRIMEDIA/250ed390-556e-44ff-100d-08dd9d2caa1e?width=800)

![](https://rsbolig.dk/i/MOLIRIMEDIA/5ac6cfb4-59b5-493d-11c9-08dd9d2caa1e?width=800)

![](https://rsbolig.dk/i/MOLIRIMEDIA/250ed390-556e-44ff-100d-08dd9d2caa1e?width=800)

![](https://rsbolig.dk/i/MOLIRIMEDIA/5ac6cfb4-59b5-493d-11c9-08dd9d2caa1e?width=800)

Familieboliger

4

107 m²

8912 kr.

27000 kr.

![](https://rsbolig.dk/i/MOLIRIMEDIA/acc3bf3c-839b-42f2-d8fb-08dd9de71a53?width=800)






![](https://rsbolig.dk/i/MOLIRIMEDIA/acc3bf3c-839b-42f2-d8fb-08dd9de71a53?width=800)

![](https://rsbolig.dk/i/MOLIRIMEDIA/9d055404-3a43-4cfa-0de7-08dd9d2caa1e?width=800)

![](https://rsbolig.dk/i/MOLIRIMEDIA/acc3bf3c-839b-42f2-d8fb-08dd9de71a53?width=800)

![](https://rsbolig.dk/i/MOLIRIMEDIA/9d055404-3a43-4cfa-0de7-08dd9d2caa1e?width=800)

Familieboliger

4

106 m²

8912 kr.

27000 kr.

![](https://rsbolig.dk/i/MOLIRIMEDIA/1d7bb3b0-4540-47d1-10a1-08dd9d2caa1e?width=800)






![](https://rsbolig.dk/i/MOLIRIMEDIA/1d7bb3b0-4540-47d1-10a1-08dd9d2caa1e?width=800)

![](https://rsbolig.dk/i/MOLIRIMEDIA/771b9217-0364-4562-10a6-08dd9d2caa1e?width=800)

![](https://rsbolig.dk/i/MOLIRIMEDIA/1d7bb3b0-4540-47d1-10a1-08dd9d2caa1e?width=800)

![](https://rsbolig.dk/i/MOLIRIMEDIA/771b9217-0364-4562-10a6-08dd9d2caa1e?width=800)

Familieboliger

4

114 m²

8912 kr.

27000 kr.

![](https://rsbolig.dk/i/MOLIRIMEDIA/e549ccff-3fae-4876-d9b7-08dd9de71a53?width=800)






![](https://rsbolig.dk/i/MOLIRIMEDIA/e549ccff-3fae-4876-d9b7-08dd9de71a53?width=800)

![](https://rsbolig.dk/i/MOLIRIMEDIA/d76ce533-bcad-49ed-110f-08dd9d2caa1e?width=800)

![](https://rsbolig.dk/i/MOLIRIMEDIA/e549ccff-3fae-4876-d9b7-08dd9de71a53?width=800)

![](https://rsbolig.dk/i/MOLIRIMEDIA/d76ce533-bcad-49ed-110f-08dd9d2caa1e?width=800)

Familieboliger

4

115 m²

9390 kr.

46000 kr.

![](https://rsbolig.dk/i/MOLIRIMEDIA/2511231f-2a8f-49db-1294-08dd9d2caa1e?width=800)






![](https://rsbolig.dk/i/MOLIRIMEDIA/2511231f-2a8f-49db-1294-08dd9d2caa1e?width=800)

![](https://rsbolig.dk/i/MOLIRIMEDIA/5ae6dae5-9cf5-42a5-12c3-08dd9d2caa1e?width=800)

![](https://rsbolig.dk/i/MOLIRIMEDIA/2511231f-2a8f-49db-1294-08dd9d2caa1e?width=800)

![](https://rsbolig.dk/i/MOLIRIMEDIA/5ae6dae5-9cf5-42a5-12c3-08dd9d2caa1e?width=800)

Familieboliger

4

107 m²

9390 kr.

46000 kr.

![](https://rsbolig.dk/i/MOLIRIMEDIA/0dd20233-5152-4770-25e6-08dda22a7775?width=800)






![](https://rsbolig.dk/i/MOLIRIMEDIA/0dd20233-5152-4770-25e6-08dda22a7775?width=800)

![](https://rsbolig.dk/i/MOLIRIMEDIA/c20acb5e-b361-4d46-106b-08dd9d2caa1e?width=800)

![](https://rsbolig.dk/i/MOLIRIMEDIA/0dd20233-5152-4770-25e6-08dda22a7775?width=800)

![](https://rsbolig.dk/i/MOLIRIMEDIA/c20acb5e-b361-4d46-106b-08dd9d2caa1e?width=800)

Familieboliger

4

115 m²

9645 kr.

29000 kr.

![](https://rsbolig.dk/i/MOLIRIMEDIA/9942a6b7-086a-4067-26d7-08dda22a7775?width=800)






![](https://rsbolig.dk/i/MOLIRIMEDIA/9942a6b7-086a-4067-26d7-08dda22a7775?width=800)

![](https://rsbolig.dk/i/MOLIRIMEDIA/a3ef8a0a-cccf-4db3-12bb-08dd9d2caa1e?width=800)

![](https://rsbolig.dk/i/MOLIRIMEDIA/9942a6b7-086a-4067-26d7-08dda22a7775?width=800)

![](https://rsbolig.dk/i/MOLIRIMEDIA/a3ef8a0a-cccf-4db3-12bb-08dd9d2caa1e?width=800)

Familieboliger

4

107 m²

9645 kr.

29000 kr.

![](https://rsbolig.dk/i/MOLIRIMEDIA/da2e20f2-91d4-4a2b-d911-08dd9de71a53?width=800)






![](https://rsbolig.dk/i/MOLIRIMEDIA/da2e20f2-91d4-4a2b-d911-08dd9de71a53?width=800)

![](https://rsbolig.dk/i/MOLIRIMEDIA/857697cf-a998-4a7c-0cd3-08dd9d2caa1e?width=800)

![](https://rsbolig.dk/i/MOLIRIMEDIA/da2e20f2-91d4-4a2b-d911-08dd9de71a53?width=800)

![](https://rsbolig.dk/i/MOLIRIMEDIA/857697cf-a998-4a7c-0cd3-08dd9d2caa1e?width=800)

Familieboliger

4

114 m²

8912 kr.

27000 kr.

![](https://rsbolig.dk/i/MOLIRIMEDIA/b5ca41fa-dcab-4de7-0e6e-08dd9d2caa1e?width=800)






![](https://rsbolig.dk/i/MOLIRIMEDIA/b5ca41fa-dcab-4de7-0e6e-08dd9d2caa1e?width=800)

![](https://rsbolig.dk/i/MOLIRIMEDIA/a38112c8-3867-4ac3-138a-08dd9d2caa1e?width=800)

![](https://rsbolig.dk/i/MOLIRIMEDIA/b5ca41fa-dcab-4de7-0e6e-08dd9d2caa1e?width=800)

![](https://rsbolig.dk/i/MOLIRIMEDIA/a38112c8-3867-4ac3-138a-08dd9d2caa1e?width=800)

Familieboliger

4

106 m²

8912 kr.

27000 kr.

![](https://rsbolig.dk/i/MOLIRIMEDIA/7ab1189d-c8d1-492c-0d7d-08dd9d2caa1e?width=800)






![](https://rsbolig.dk/i/MOLIRIMEDIA/7ab1189d-c8d1-492c-0d7d-08dd9d2caa1e?width=800)

![](https://rsbolig.dk/i/MOLIRIMEDIA/dfc3db2e-7d6f-4188-1375-08dd9d2caa1e?width=800)

![](https://rsbolig.dk/i/MOLIRIMEDIA/7ab1189d-c8d1-492c-0d7d-08dd9d2caa1e?width=800)

![](https://rsbolig.dk/i/MOLIRIMEDIA/dfc3db2e-7d6f-4188-1375-08dd9d2caa1e?width=800)

Familieboliger

4

115 m²

8912 kr.

27000 kr.

![](https://rsbolig.dk/i/MOLIRIMEDIA/a9346e9e-756c-4d9c-da8f-08dd9de71a53?width=800)






![](https://rsbolig.dk/i/MOLIRIMEDIA/a9346e9e-756c-4d9c-da8f-08dd9de71a53?width=800)

![](https://rsbolig.dk/i/MOLIRIMEDIA/f192ec1c-fb41-4b3c-1120-08dd9d2caa1e?width=800)

![](https://rsbolig.dk/i/MOLIRIMEDIA/a9346e9e-756c-4d9c-da8f-08dd9de71a53?width=800)

![](https://rsbolig.dk/i/MOLIRIMEDIA/f192ec1c-fb41-4b3c-1120-08dd9d2caa1e?width=800)

Familieboliger

4

105 m²

8912 kr.

27000 kr.

![](https://rsbolig.dk/i/MOLIRIMEDIA/e5d5ba49-ccb5-4ae7-da8c-08dd9de71a53?width=800)






![](https://rsbolig.dk/i/MOLIRIMEDIA/e5d5ba49-ccb5-4ae7-da8c-08dd9de71a53?width=800)

![](https://rsbolig.dk/i/MOLIRIMEDIA/e1c7692e-0000-4c0f-1041-08dd9d2caa1e?width=800)

![](https://rsbolig.dk/i/MOLIRIMEDIA/e5d5ba49-ccb5-4ae7-da8c-08dd9de71a53?width=800)

![](https://rsbolig.dk/i/MOLIRIMEDIA/e1c7692e-0000-4c0f-1041-08dd9d2caa1e?width=800)

Familieboliger

4

113 m²

8912 kr.

27000 kr.

![](https://rsbolig.dk/i/MOLIRIMEDIA/a40b9e2a-7295-418c-0d53-08dd9d2caa1e?width=800)






![](https://rsbolig.dk/i/MOLIRIMEDIA/a40b9e2a-7295-418c-0d53-08dd9d2caa1e?width=800)

![](https://rsbolig.dk/i/MOLIRIMEDIA/a4a477d7-72d5-40ae-13b6-08dd9d2caa1e?width=800)

![](https://rsbolig.dk/i/MOLIRIMEDIA/a40b9e2a-7295-418c-0d53-08dd9d2caa1e?width=800)

![](https://rsbolig.dk/i/MOLIRIMEDIA/a4a477d7-72d5-40ae-13b6-08dd9d2caa1e?width=800)

## Afdelingsdokumenter

Her finder du nyttig information om din afdeling, såsom husorden, vedligeholdelse af dit lejemål, referater m.m.

###

                                                Husorden

[Husorden, tæt lavt byggeri, afd. 54.pdf](https://rsbolig.dk/p/Files/Boligdata/Afdelinger/1-054/Husorden/Husorden--t&#xE6;t-lavt-byggeri--afd.-54.pdf)

###

                                                Afdelingsmøder

[2025-09-17 Referat afd.møde.pdf](https://rsbolig.dk/p/Files/Boligdata/Afdelinger/1-054/Afdelingsm&#xF8;der/2025-09-17-Referat-afd.m&#xF8;de.pdf)
                                            [2025-03-31 Referat ekstraord. møde.pdf](https://rsbolig.dk/p/Files/Boligdata/Afdelinger/1-054/Afdelingsm&#xF8;der/2025-03-31-Referat-ekstraord.-m&#xF8;de.pdf)
                                            [2025-03-12 Referat ekstraord. møde.pdf](https://rsbolig.dk/p/Files/Boligdata/Afdelinger/1-054/Afdelingsm&#xF8;der/2025-03-12-Referat-ekstraord.-m&#xF8;de.pdf)
                                            [2024-09-12 Referat afd.møde.pdf](https://rsbolig.dk/p/Files/Boligdata/Afdelinger/1-054/Afdelingsm&#xF8;der/2024-09-12-Referat-afd.m&#xF8;de.pdf)
                                            [2024-05-15 Referat terrasser og hegn.pdf](https://rsbolig.dk/p/Files/Boligdata/Afdelinger/1-054/Afdelingsm&#xF8;der/2024-05-15-Referat-terrasser-og-hegn.pdf)
                                            [2024-03-15 Referat afd.møde.pdf](https://rsbolig.dk/p/Files/Boligdata/Afdelinger/1-054/Afdelingsm&#xF8;der/2024-03-15-Referat-afd.m&#xF8;de.pdf)

###

                                                Afdelingsbestyrelsesmøder

[23.09.2025 Bestyrelsesmøde.pdf](https://rsbolig.dk/p/Files/Boligdata/Afdelinger/1-054/Afdelingsbestyrelsesm&#xF8;der/23.09.2025-Bestyrelsesm&#xF8;de.pdf)

###

                                                Øvrigt

[Afd. 54 - Indflytningsbrochure.pdf](https://rsbolig.dk/p/Files/Boligdata/Afdelinger/1-054/&#xD8;vrigt/Afd.-54---Indflytningsbrochure.pdf)
                                            [Vedtægter Rsbolig.pdf](https://rsbolig.dk/p/Files/Boligdata/Afdelinger/1-054/&#xD8;vrigt/Vedt&#xE6;gter-Rsbolig.pdf)

###

                                                Vedligehold

[Pas på fugtproblemet.pdf](https://rsbolig.dk/p/Files/Boligdata/Afdelinger/1-054/Vedligehold/Pas-p&#xE5;-fugtproblemet.pdf)
                                            [Vedligeholdelsesreglement.pdf](https://rsbolig.dk/p/Files/Boligdata/Afdelinger/1-054/Vedligehold/Vedligeholdelsesreglement.pdf)
                                            [Vedtægter Rsbolig.pdf](https://rsbolig.dk/p/Files/Boligdata/Afdelinger/1-054/Vedligehold/Vedt&#xE6;gter-Rsbolig.pdf)

## Placering
