---
title: "Fjordudsigten"
description: "1-51"
date: "2025-08-01"
created: "2025-06-12"
---

-
-
-
-
-
-
-
-
-
-
-
-

https://maps.google.dk/?q=56.071724,8.282404

# Fjordudsigten

Afdeling 51

## Velkommen til afdeling 51 Fjordudsigten

Afdelingen består af 47 røgfri lavenergi boliger. Boligerne er placeret tæt på naturen i Naturbydelen i Ringkøbing. Fjordudsigten er 1. etape ud af 80 boliger.

Vores nye byggeri på Fjordudsigten lever desværre ikke op til det lovede i forhold til lyddæmpning mellem boliger. Trinlyde fra boligen oven over dæmpes ikke tilstrækkeligt.

Sammen med rådgivere og entreprenøren er vi i gang med at afdække, hvordan vi kan sikre tilstrækkelig lyddæmpning.

Uanset om den rette løsning ligger i gulvet eller i loftet betyder det desværre, at det sandsynligvis bliver nødvendigt, at vi genhuser beboerne i hver lejlighed i nogle dage.

Du vil blive orienteret i rigtig god tid inden det sker, og vi vil drøfte med dig, hvordan det kan ske.

## Faciliteter

Altan/Have

Ja

Der er altan til boligerne med indgang på 1. sal. Boligerne med indgang i stueetagen har en terrasse.

Gangbesværet

Se mere

Boligerne med 3 og 4 rum er i to plan. Halvdelen af boligerne med 2 rum, har indgang på 1. sal.

El

Se mere

Udgiften til el betales aconto til boligforeningen.

Der er installeret solceller, som suplement til dit elforbrug.

Husdyr

Ja

Det er tilladt at holde ét husdyr.

Hvidevarer

Ja

Der er komfur, ovn, emhætte og Køle-/fryseskab i boligen.

Gildesal

Nej

Der er ikke gildesal i afdelingen.

Råderet

Nej

Der er ikke vedtaget mulighed for råderet i afdelingen.

TV

Ja

Der er installeret fibernet i boligen.

På hjemmesiden rah-fiber.dk kan du se hvilke udbydere af internet og TV, du kan vælge imellem.

Vand

Læs mere

Vand betales aconto til Ringkøbing-Skjern Boligforening. Der laves en årlig opgørelse.

Varme

Læs mere

Boligerne opvarmes via et ventilationsanlæg med varmegenindvinding.

Anlægget har en varmepumpe til at producere varmt vand.

Vicevært

Ja

Vicevært i afdelingen

Skur

Ja

Der er et skur til hver bolig.

Affald

Læs mere

I Ringkøbing-Skjern Kommune skal man affaldssortere.

Der er fælles affaldsstation, hvor madaffald, restaffald, pap/papir og plast/metal/mad- og drikkekartoner kan afleveres.

Øvrigt affald afleveres på den kommunale genbrugsplads eller de offentlige affaldsstationer i byen.

Ladestander

Der er ladestander fra Prostrøm i afdelingen.

                        Se flere

## Boliger i afdelingen

Familieboliger

2 rums

Familieboliger

Familieboliger

3 rums

Familieboliger

Familieboliger

4 rums

Familieboliger

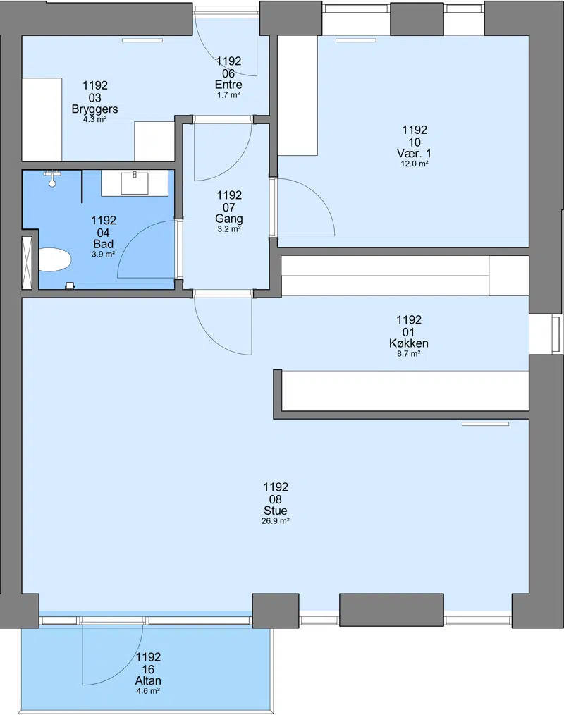
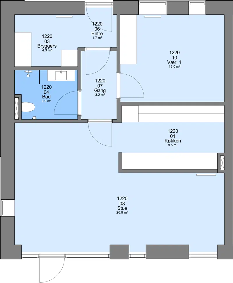
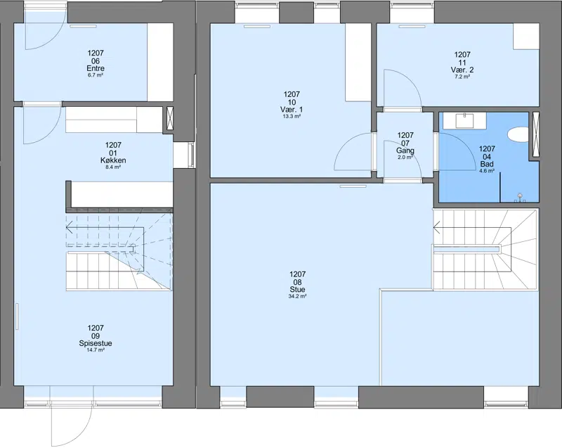
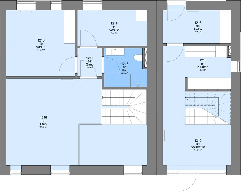
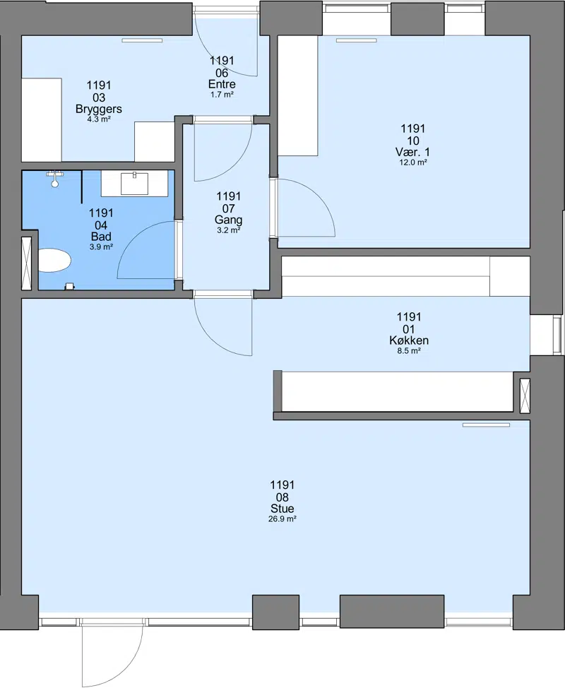
Boligtype

Værelser

Størrelse

Husleje

Indskud/dp

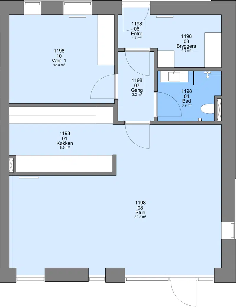
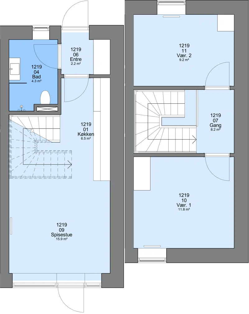
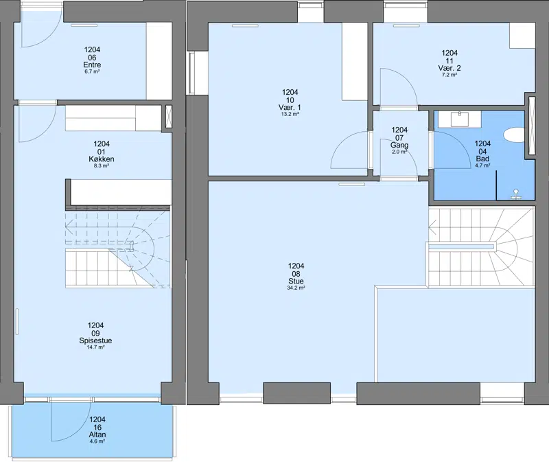
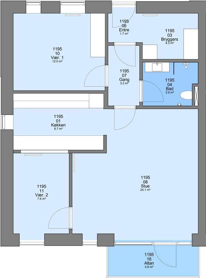
Plantegning

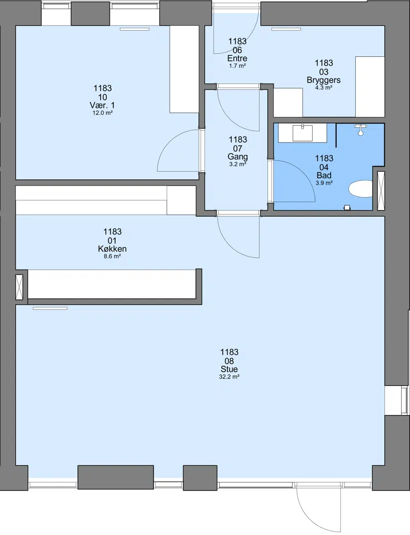
Familieboliger

2

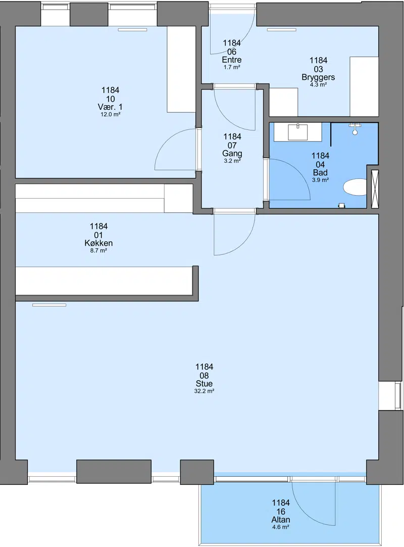
78 m²

7478 kr.

22500 kr.

![](https://rsbolig.dk/i/MOLIRIMEDIA/4f5ddada-9ad1-47c2-da7e-08dd9de71a53?width=800)






![](https://rsbolig.dk/i/MOLIRIMEDIA/4f5ddada-9ad1-47c2-da7e-08dd9de71a53?width=800)

![](https://rsbolig.dk/i/MOLIRIMEDIA/45eb1bf5-9f3a-4d4b-1090-08dd9d2caa1e?width=800)

![](https://rsbolig.dk/i/MOLIRIMEDIA/4f5ddada-9ad1-47c2-da7e-08dd9de71a53?width=800)

![](https://rsbolig.dk/i/MOLIRIMEDIA/45eb1bf5-9f3a-4d4b-1090-08dd9d2caa1e?width=800)

Familieboliger

2

84 m²

7770 kr.

23500 kr.

![](https://rsbolig.dk/i/MOLIRIMEDIA/fa684669-162e-4148-26b6-08dda22a7775?width=800)






![](https://rsbolig.dk/i/MOLIRIMEDIA/fa684669-162e-4148-26b6-08dda22a7775?width=800)

![](https://rsbolig.dk/i/MOLIRIMEDIA/2567570e-e7cc-493d-11de-08dd9d2caa1e?width=800)

![](https://rsbolig.dk/i/MOLIRIMEDIA/fa684669-162e-4148-26b6-08dda22a7775?width=800)

![](https://rsbolig.dk/i/MOLIRIMEDIA/2567570e-e7cc-493d-11de-08dd9d2caa1e?width=800)

Familieboliger

2

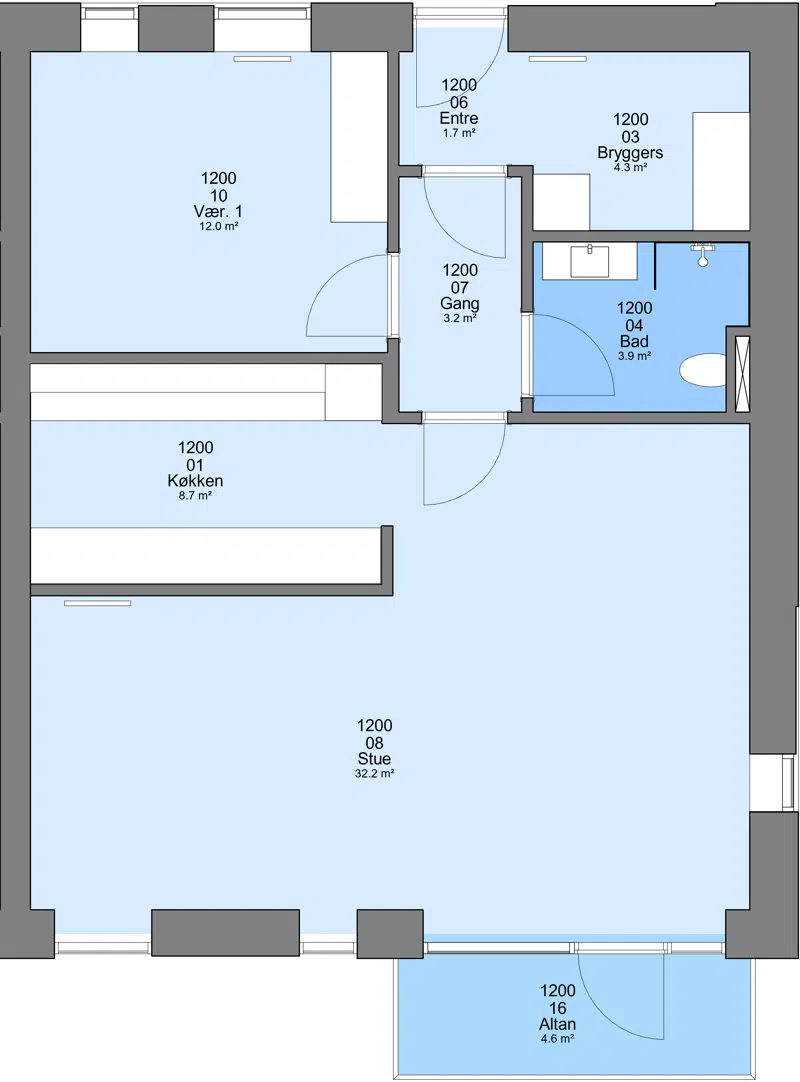
78 m²

7478 kr.

22500 kr.

![](https://rsbolig.dk/i/MOLIRIMEDIA/1f6eeef1-ee8c-491f-0af8-08dd9d2caa1e?width=800)






![](https://rsbolig.dk/i/MOLIRIMEDIA/1f6eeef1-ee8c-491f-0af8-08dd9d2caa1e?width=800)

![](https://rsbolig.dk/i/MOLIRIMEDIA/df417f89-01b1-4fae-137c-08dd9d2caa1e?width=800)

![](https://rsbolig.dk/i/MOLIRIMEDIA/1f6eeef1-ee8c-491f-0af8-08dd9d2caa1e?width=800)

![](https://rsbolig.dk/i/MOLIRIMEDIA/df417f89-01b1-4fae-137c-08dd9d2caa1e?width=800)

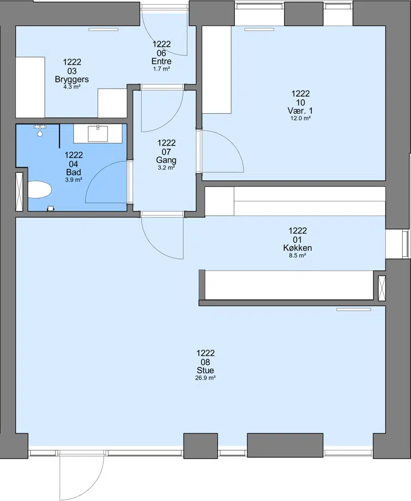
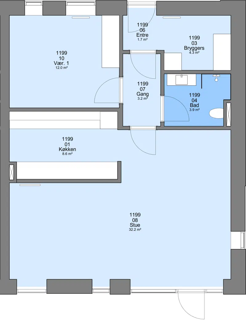
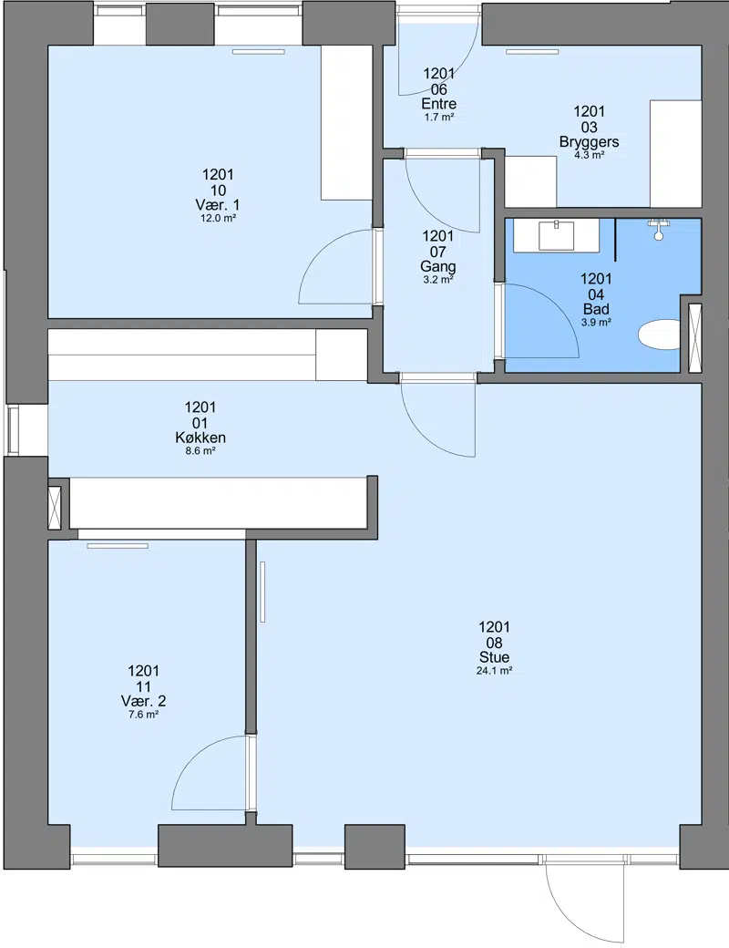
Familieboliger

2

85 m²

7194 kr.

33350 kr.

![](https://rsbolig.dk/i/MOLIRIMEDIA/68b8d242-a4fe-439e-265a-08dda22a7775?width=800)






![](https://rsbolig.dk/i/MOLIRIMEDIA/68b8d242-a4fe-439e-265a-08dda22a7775?width=800)

![](https://rsbolig.dk/i/MOLIRIMEDIA/3e1e3909-55c1-4cb8-0ba6-08dd9d2caa1e?width=800)

![](https://rsbolig.dk/i/MOLIRIMEDIA/68b8d242-a4fe-439e-265a-08dda22a7775?width=800)

![](https://rsbolig.dk/i/MOLIRIMEDIA/3e1e3909-55c1-4cb8-0ba6-08dd9d2caa1e?width=800)

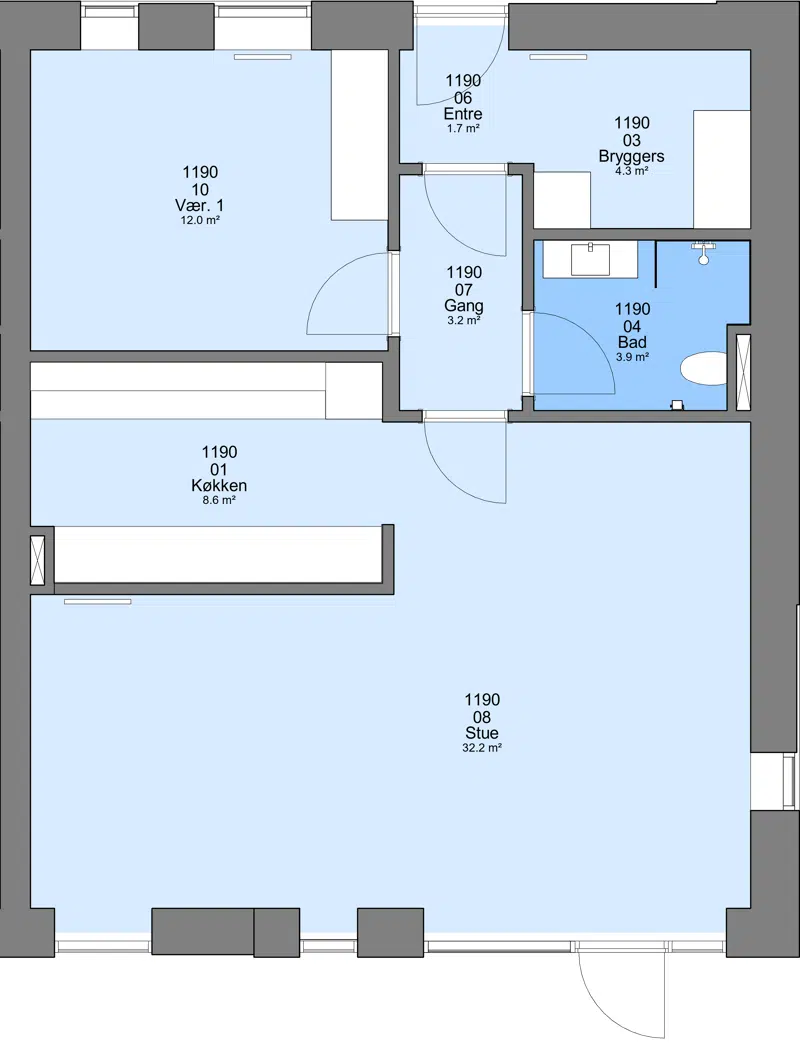
Familieboliger

2

89 m²

7475 kr.

35400 kr.

![](https://rsbolig.dk/i/MOLIRIMEDIA/f7ba9b78-83b0-4021-d8de-08dd9de71a53?width=800)






![](https://rsbolig.dk/i/MOLIRIMEDIA/f7ba9b78-83b0-4021-d8de-08dd9de71a53?width=800)

![](https://rsbolig.dk/i/MOLIRIMEDIA/9bf00b05-0c6f-42e4-0bf5-08dd9d2caa1e?width=800)

![](https://rsbolig.dk/i/MOLIRIMEDIA/f7ba9b78-83b0-4021-d8de-08dd9de71a53?width=800)

![](https://rsbolig.dk/i/MOLIRIMEDIA/9bf00b05-0c6f-42e4-0bf5-08dd9d2caa1e?width=800)

Familieboliger

2

84 m²

7475 kr.

35400 kr.

![](https://rsbolig.dk/i/MOLIRIMEDIA/6b8b20b2-ca5b-4371-26b2-08dda22a7775?width=800)






![](https://rsbolig.dk/i/MOLIRIMEDIA/6b8b20b2-ca5b-4371-26b2-08dda22a7775?width=800)

![](https://rsbolig.dk/i/MOLIRIMEDIA/c87d65dd-a2cc-480d-131b-08dd9d2caa1e?width=800)

![](https://rsbolig.dk/i/MOLIRIMEDIA/6b8b20b2-ca5b-4371-26b2-08dda22a7775?width=800)

![](https://rsbolig.dk/i/MOLIRIMEDIA/c87d65dd-a2cc-480d-131b-08dd9d2caa1e?width=800)

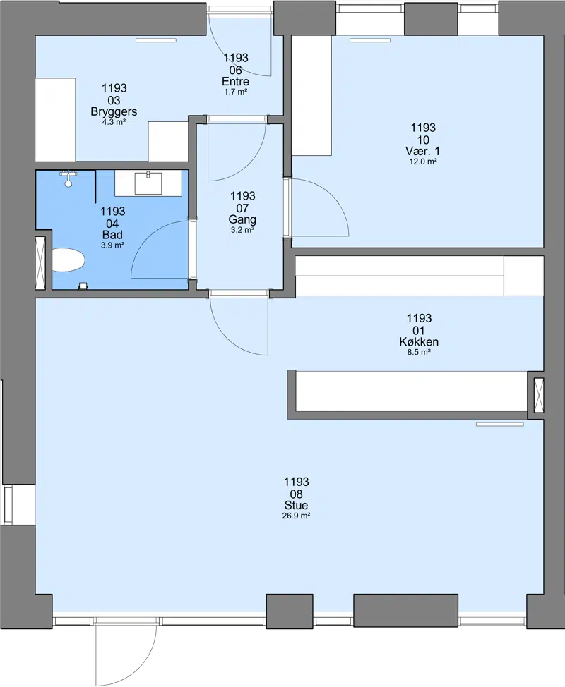
Familieboliger

2

78 m²

7194 kr.

33350 kr.

![](https://rsbolig.dk/i/MOLIRIMEDIA/3f7b62ba-ddea-451d-da9c-08dd9de71a53?width=800)






![](https://rsbolig.dk/i/MOLIRIMEDIA/3f7b62ba-ddea-451d-da9c-08dd9de71a53?width=800)

![](https://rsbolig.dk/i/MOLIRIMEDIA/f7c34ff1-d3b6-4c99-0f67-08dd9d2caa1e?width=800)

![](https://rsbolig.dk/i/MOLIRIMEDIA/3f7b62ba-ddea-451d-da9c-08dd9de71a53?width=800)

![](https://rsbolig.dk/i/MOLIRIMEDIA/f7c34ff1-d3b6-4c99-0f67-08dd9d2caa1e?width=800)

Familieboliger

2

85 m²

7478 kr.

22500 kr.

![](https://rsbolig.dk/i/MOLIRIMEDIA/11535836-94d5-4101-0e1f-08dd9d2caa1e?width=800)






![](https://rsbolig.dk/i/MOLIRIMEDIA/11535836-94d5-4101-0e1f-08dd9d2caa1e?width=800)

![](https://rsbolig.dk/i/MOLIRIMEDIA/2a390cd0-0990-47b0-129d-08dd9d2caa1e?width=800)

![](https://rsbolig.dk/i/MOLIRIMEDIA/11535836-94d5-4101-0e1f-08dd9d2caa1e?width=800)

![](https://rsbolig.dk/i/MOLIRIMEDIA/2a390cd0-0990-47b0-129d-08dd9d2caa1e?width=800)

Familieboliger

2

78 m²

7478 kr.

22500 kr.

![](https://rsbolig.dk/i/MOLIRIMEDIA/456ac02d-2c9d-42e1-d943-08dd9de71a53?width=800)






![](https://rsbolig.dk/i/MOLIRIMEDIA/456ac02d-2c9d-42e1-d943-08dd9de71a53?width=800)

![](https://rsbolig.dk/i/MOLIRIMEDIA/ab05691f-3539-4749-0b3e-08dd9d2caa1e?width=800)

![](https://rsbolig.dk/i/MOLIRIMEDIA/456ac02d-2c9d-42e1-d943-08dd9de71a53?width=800)

![](https://rsbolig.dk/i/MOLIRIMEDIA/ab05691f-3539-4749-0b3e-08dd9d2caa1e?width=800)

Familieboliger

2

84 m²

7475 kr.

35400 kr.

![](https://rsbolig.dk/i/MOLIRIMEDIA/a8bee61b-919d-4652-0fdb-08dd9d2caa1e?width=800)






![](https://rsbolig.dk/i/MOLIRIMEDIA/a8bee61b-919d-4652-0fdb-08dd9d2caa1e?width=800)

![](https://rsbolig.dk/i/MOLIRIMEDIA/d060a9d5-86f0-431f-1158-08dd9d2caa1e?width=800)

![](https://rsbolig.dk/i/MOLIRIMEDIA/a8bee61b-919d-4652-0fdb-08dd9d2caa1e?width=800)

![](https://rsbolig.dk/i/MOLIRIMEDIA/d060a9d5-86f0-431f-1158-08dd9d2caa1e?width=800)

Familieboliger

2

84 m²

7475 kr.

35400 kr.

![](https://rsbolig.dk/i/MOLIRIMEDIA/c9714a01-184f-4542-0c31-08dd9d2caa1e?width=800)






![](https://rsbolig.dk/i/MOLIRIMEDIA/c9714a01-184f-4542-0c31-08dd9d2caa1e?width=800)

![](https://rsbolig.dk/i/MOLIRIMEDIA/75645873-1d99-408e-14ad-08dd9d2caa1e?width=800)

![](https://rsbolig.dk/i/MOLIRIMEDIA/c9714a01-184f-4542-0c31-08dd9d2caa1e?width=800)

![](https://rsbolig.dk/i/MOLIRIMEDIA/75645873-1d99-408e-14ad-08dd9d2caa1e?width=800)

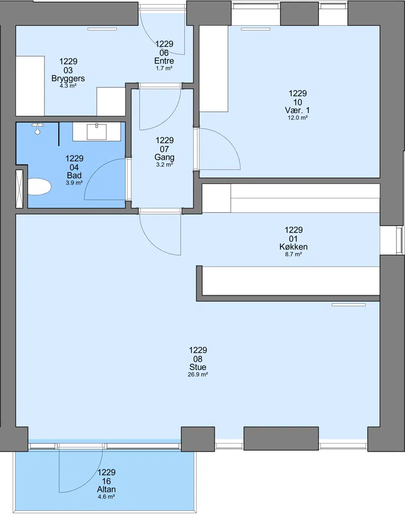
Familieboliger

2

89 m²

7770 kr.

23500 kr.

![](https://rsbolig.dk/i/MOLIRIMEDIA/91781af1-2eeb-40cf-0c26-08dd9d2caa1e?width=800)






![](https://rsbolig.dk/i/MOLIRIMEDIA/91781af1-2eeb-40cf-0c26-08dd9d2caa1e?width=800)

![](https://rsbolig.dk/i/MOLIRIMEDIA/96ebd651-f39a-44f6-1337-08dd9d2caa1e?width=800)

![](https://rsbolig.dk/i/MOLIRIMEDIA/91781af1-2eeb-40cf-0c26-08dd9d2caa1e?width=800)

![](https://rsbolig.dk/i/MOLIRIMEDIA/96ebd651-f39a-44f6-1337-08dd9d2caa1e?width=800)

Familieboliger

2

84 m²

7770 kr.

23500 kr.

![](https://rsbolig.dk/i/MOLIRIMEDIA/0bc840ea-614a-42b6-12a1-08dd9d2caa1e?width=800)






![](https://rsbolig.dk/i/MOLIRIMEDIA/0bc840ea-614a-42b6-12a1-08dd9d2caa1e?width=800)

![](https://rsbolig.dk/i/MOLIRIMEDIA/a6fa21a8-060a-4006-1301-08dd9d2caa1e?width=800)

![](https://rsbolig.dk/i/MOLIRIMEDIA/0bc840ea-614a-42b6-12a1-08dd9d2caa1e?width=800)

![](https://rsbolig.dk/i/MOLIRIMEDIA/a6fa21a8-060a-4006-1301-08dd9d2caa1e?width=800)

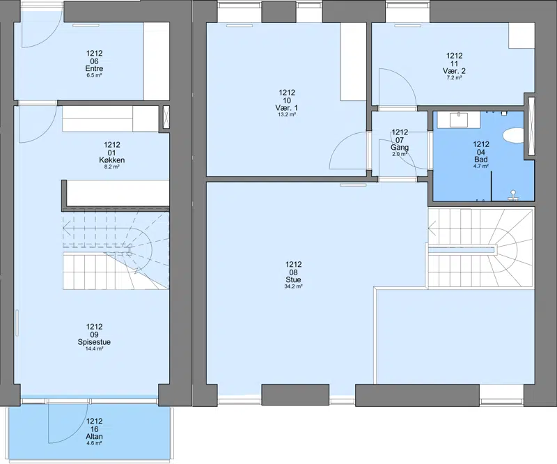
Familieboliger

3

84 m²

7770 kr.

23500 kr.

![](https://rsbolig.dk/i/MOLIRIMEDIA/85622d49-88d4-40dd-0f14-08dd9d2caa1e?width=800)






![](https://rsbolig.dk/i/MOLIRIMEDIA/85622d49-88d4-40dd-0f14-08dd9d2caa1e?width=800)

![](https://rsbolig.dk/i/MOLIRIMEDIA/99838a20-dbd6-4563-1153-08dd9d2caa1e?width=800)

![](https://rsbolig.dk/i/MOLIRIMEDIA/85622d49-88d4-40dd-0f14-08dd9d2caa1e?width=800)

![](https://rsbolig.dk/i/MOLIRIMEDIA/99838a20-dbd6-4563-1153-08dd9d2caa1e?width=800)

Familieboliger

3

89 m²

7770 kr.

23500 kr.

![](https://rsbolig.dk/i/MOLIRIMEDIA/c3125624-e377-4e05-1222-08dd9d2caa1e?width=800)






![](https://rsbolig.dk/i/MOLIRIMEDIA/c3125624-e377-4e05-1222-08dd9d2caa1e?width=800)

![](https://rsbolig.dk/i/MOLIRIMEDIA/a203a004-6af9-40dd-1267-08dd9d2caa1e?width=800)

![](https://rsbolig.dk/i/MOLIRIMEDIA/c3125624-e377-4e05-1222-08dd9d2caa1e?width=800)

![](https://rsbolig.dk/i/MOLIRIMEDIA/a203a004-6af9-40dd-1267-08dd9d2caa1e?width=800)

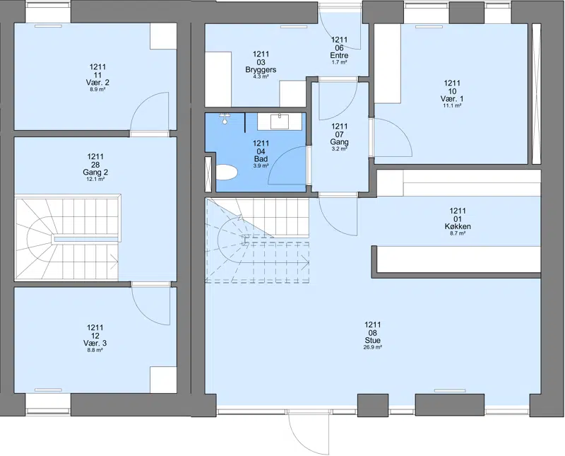
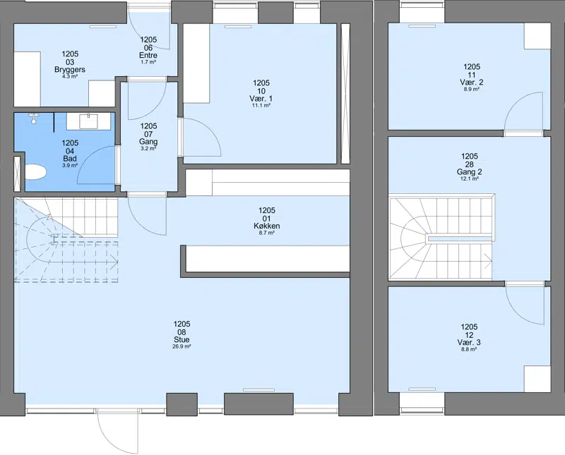
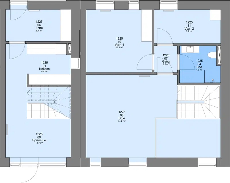
Familieboliger

3

114 m²

8855 kr.

27000 kr.

![](https://rsbolig.dk/i/MOLIRIMEDIA/78ab6f3f-21cb-4abf-d972-08dd9de71a53?width=800)






![](https://rsbolig.dk/i/MOLIRIMEDIA/78ab6f3f-21cb-4abf-d972-08dd9de71a53?width=800)

![](https://rsbolig.dk/i/MOLIRIMEDIA/712c59b9-08e8-467a-1075-08dd9d2caa1e?width=800)

![](https://rsbolig.dk/i/MOLIRIMEDIA/78ab6f3f-21cb-4abf-d972-08dd9de71a53?width=800)

![](https://rsbolig.dk/i/MOLIRIMEDIA/712c59b9-08e8-467a-1075-08dd9d2caa1e?width=800)

Familieboliger

3

109 m²

8562 kr.

26000 kr.

![](https://rsbolig.dk/i/MOLIRIMEDIA/b23b2f63-8969-4fad-0bb2-08dd9d2caa1e?width=800)






![](https://rsbolig.dk/i/MOLIRIMEDIA/b23b2f63-8969-4fad-0bb2-08dd9d2caa1e?width=800)

![](https://rsbolig.dk/i/MOLIRIMEDIA/db9553d2-6178-4f94-1159-08dd9d2caa1e?width=800)

![](https://rsbolig.dk/i/MOLIRIMEDIA/b23b2f63-8969-4fad-0bb2-08dd9d2caa1e?width=800)

![](https://rsbolig.dk/i/MOLIRIMEDIA/db9553d2-6178-4f94-1159-08dd9d2caa1e?width=800)

Familieboliger

3

80 m²

7421 kr.

22500 kr.

![](https://rsbolig.dk/i/MOLIRIMEDIA/9e0ab04c-adb2-4b52-0b98-08dd9d2caa1e?width=800)






![](https://rsbolig.dk/i/MOLIRIMEDIA/9e0ab04c-adb2-4b52-0b98-08dd9d2caa1e?width=800)

![](https://rsbolig.dk/i/MOLIRIMEDIA/90cb1981-b662-4861-0cda-08dd9d2caa1e?width=800)

![](https://rsbolig.dk/i/MOLIRIMEDIA/9e0ab04c-adb2-4b52-0b98-08dd9d2caa1e?width=800)

![](https://rsbolig.dk/i/MOLIRIMEDIA/90cb1981-b662-4861-0cda-08dd9d2caa1e?width=800)

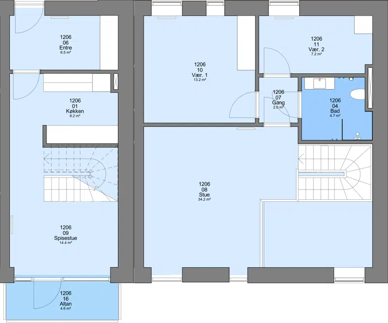
Familieboliger

3

115 m²

8855 kr.

27000 kr.

![](https://rsbolig.dk/i/MOLIRIMEDIA/e925ddca-b12a-4805-d9f7-08dd9de71a53?width=800)






![](https://rsbolig.dk/i/MOLIRIMEDIA/e925ddca-b12a-4805-d9f7-08dd9de71a53?width=800)

![](https://rsbolig.dk/i/MOLIRIMEDIA/3d14a590-735b-44c8-0d48-08dd9d2caa1e?width=800)

![](https://rsbolig.dk/i/MOLIRIMEDIA/e925ddca-b12a-4805-d9f7-08dd9de71a53?width=800)

![](https://rsbolig.dk/i/MOLIRIMEDIA/3d14a590-735b-44c8-0d48-08dd9d2caa1e?width=800)

Familieboliger

3

114 m²

8855 kr.

27000 kr.

![](https://rsbolig.dk/i/MOLIRIMEDIA/33c34d76-91eb-47f2-2641-08dda22a7775?width=800)






![](https://rsbolig.dk/i/MOLIRIMEDIA/33c34d76-91eb-47f2-2641-08dda22a7775?width=800)

![](https://rsbolig.dk/i/MOLIRIMEDIA/5bcc9c7f-9444-46f6-0ea2-08dd9d2caa1e?width=800)

![](https://rsbolig.dk/i/MOLIRIMEDIA/33c34d76-91eb-47f2-2641-08dda22a7775?width=800)

![](https://rsbolig.dk/i/MOLIRIMEDIA/5bcc9c7f-9444-46f6-0ea2-08dd9d2caa1e?width=800)

Familieboliger

3

114 m²

8855 kr.

26000 kr.

![](https://rsbolig.dk/i/MOLIRIMEDIA/349d885d-4db4-4ce1-d955-08dd9de71a53?width=800)






![](https://rsbolig.dk/i/MOLIRIMEDIA/349d885d-4db4-4ce1-d955-08dd9de71a53?width=800)

![](https://rsbolig.dk/i/MOLIRIMEDIA/49dce00e-62a4-4e16-1385-08dd9d2caa1e?width=800)

![](https://rsbolig.dk/i/MOLIRIMEDIA/349d885d-4db4-4ce1-d955-08dd9de71a53?width=800)

![](https://rsbolig.dk/i/MOLIRIMEDIA/49dce00e-62a4-4e16-1385-08dd9d2caa1e?width=800)

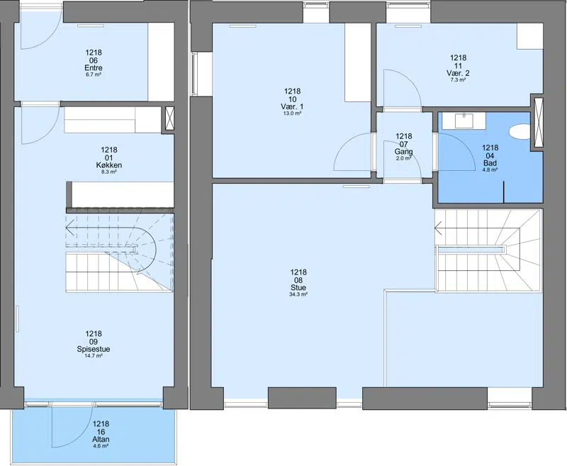
Familieboliger

3

115 m²

8855 kr.

27000 kr.

![](https://rsbolig.dk/i/MOLIRIMEDIA/57578183-0990-4779-106c-08dd9d2caa1e?width=800)






![](https://rsbolig.dk/i/MOLIRIMEDIA/57578183-0990-4779-106c-08dd9d2caa1e?width=800)

![](https://rsbolig.dk/i/MOLIRIMEDIA/0145ec72-387b-43c4-1241-08dd9d2caa1e?width=800)

![](https://rsbolig.dk/i/MOLIRIMEDIA/57578183-0990-4779-106c-08dd9d2caa1e?width=800)

![](https://rsbolig.dk/i/MOLIRIMEDIA/0145ec72-387b-43c4-1241-08dd9d2caa1e?width=800)

Familieboliger

3

114 m²

8855 kr.

27000 kr.

![](https://rsbolig.dk/i/MOLIRIMEDIA/93c0249c-12b3-4373-d93e-08dd9de71a53?width=800)






![](https://rsbolig.dk/i/MOLIRIMEDIA/93c0249c-12b3-4373-d93e-08dd9de71a53?width=800)

![](https://rsbolig.dk/i/MOLIRIMEDIA/1bf7a239-b11f-4aad-0ec6-08dd9d2caa1e?width=800)

![](https://rsbolig.dk/i/MOLIRIMEDIA/93c0249c-12b3-4373-d93e-08dd9de71a53?width=800)

![](https://rsbolig.dk/i/MOLIRIMEDIA/1bf7a239-b11f-4aad-0ec6-08dd9d2caa1e?width=800)

Familieboliger

3

115 m²

9355 kr.

27000 kr.

![](https://rsbolig.dk/i/MOLIRIMEDIA/efb913d2-a741-4466-d8a6-08dd9de71a53?width=800)






![](https://rsbolig.dk/i/MOLIRIMEDIA/efb913d2-a741-4466-d8a6-08dd9de71a53?width=800)

![](https://rsbolig.dk/i/MOLIRIMEDIA/f73fa7bc-30ae-46db-0ea7-08dd9d2caa1e?width=800)

![](https://rsbolig.dk/i/MOLIRIMEDIA/efb913d2-a741-4466-d8a6-08dd9de71a53?width=800)

![](https://rsbolig.dk/i/MOLIRIMEDIA/f73fa7bc-30ae-46db-0ea7-08dd9d2caa1e?width=800)

Familieboliger

3

115 m²

8855 kr.

27000 kr.

![](https://rsbolig.dk/i/MOLIRIMEDIA/67c8ef42-1747-4f0c-d8e7-08dd9de71a53?width=800)






![](https://rsbolig.dk/i/MOLIRIMEDIA/67c8ef42-1747-4f0c-d8e7-08dd9de71a53?width=800)

![](https://rsbolig.dk/i/MOLIRIMEDIA/034b0eb1-23ec-4944-121b-08dd9d2caa1e?width=800)

![](https://rsbolig.dk/i/MOLIRIMEDIA/67c8ef42-1747-4f0c-d8e7-08dd9de71a53?width=800)

![](https://rsbolig.dk/i/MOLIRIMEDIA/034b0eb1-23ec-4944-121b-08dd9d2caa1e?width=800)

Familieboliger

3

109 m²

8562 kr.

26000 kr.

![](https://rsbolig.dk/i/MOLIRIMEDIA/d2f1b710-7e2f-421e-0e09-08dd9d2caa1e?width=800)






![](https://rsbolig.dk/i/MOLIRIMEDIA/d2f1b710-7e2f-421e-0e09-08dd9d2caa1e?width=800)

![](https://rsbolig.dk/i/MOLIRIMEDIA/712ab204-8fb7-48da-12ad-08dd9d2caa1e?width=800)

![](https://rsbolig.dk/i/MOLIRIMEDIA/d2f1b710-7e2f-421e-0e09-08dd9d2caa1e?width=800)

![](https://rsbolig.dk/i/MOLIRIMEDIA/712ab204-8fb7-48da-12ad-08dd9d2caa1e?width=800)

Familieboliger

3

84 m²

7770 kr.

23500 kr.

![](https://rsbolig.dk/i/MOLIRIMEDIA/4e76e7e2-90fe-47d3-2682-08dda22a7775?width=800)






![](https://rsbolig.dk/i/MOLIRIMEDIA/4e76e7e2-90fe-47d3-2682-08dda22a7775?width=800)

![](https://rsbolig.dk/i/MOLIRIMEDIA/e3499a7b-dff9-480c-0f33-08dd9d2caa1e?width=800)

![](https://rsbolig.dk/i/MOLIRIMEDIA/4e76e7e2-90fe-47d3-2682-08dda22a7775?width=800)

![](https://rsbolig.dk/i/MOLIRIMEDIA/e3499a7b-dff9-480c-0f33-08dd9d2caa1e?width=800)

Familieboliger

3

89 m²

7770 kr.

23500 kr.

![](https://rsbolig.dk/i/MOLIRIMEDIA/08af3a20-05f2-4183-0aff-08dd9d2caa1e?width=800)






![](https://rsbolig.dk/i/MOLIRIMEDIA/08af3a20-05f2-4183-0aff-08dd9d2caa1e?width=800)

![](https://rsbolig.dk/i/MOLIRIMEDIA/144a07b9-38c8-4a16-0b0d-08dd9d2caa1e?width=800)

![](https://rsbolig.dk/i/MOLIRIMEDIA/08af3a20-05f2-4183-0aff-08dd9d2caa1e?width=800)

![](https://rsbolig.dk/i/MOLIRIMEDIA/144a07b9-38c8-4a16-0b0d-08dd9d2caa1e?width=800)

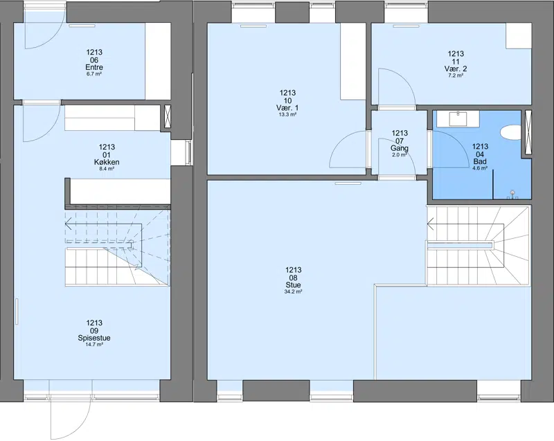
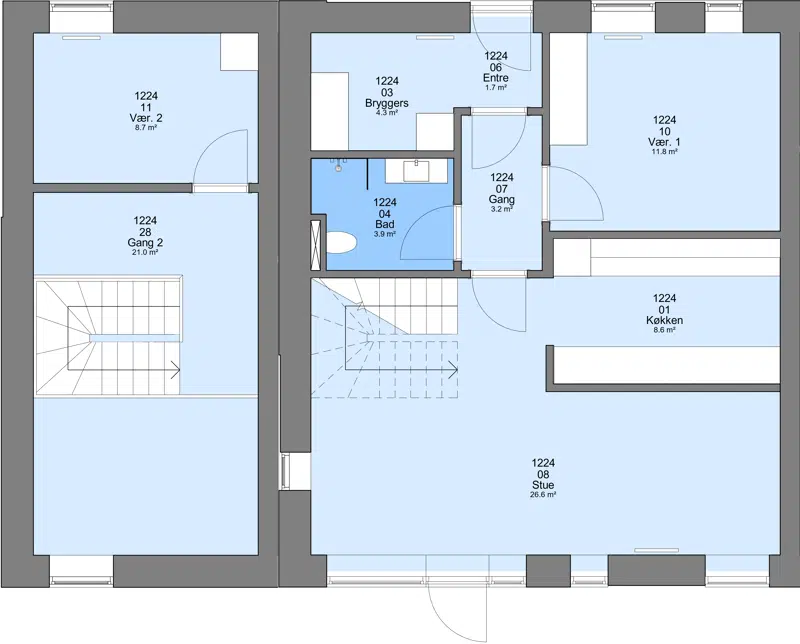
Familieboliger

4

115 m²

8910 kr.

27000 kr.

![](https://rsbolig.dk/i/MOLIRIMEDIA/5fdd80af-b80b-4e08-2691-08dda22a7775?width=800)






![](https://rsbolig.dk/i/MOLIRIMEDIA/5fdd80af-b80b-4e08-2691-08dda22a7775?width=800)

![](https://rsbolig.dk/i/MOLIRIMEDIA/f6c8129d-7d83-425f-0e81-08dd9d2caa1e?width=800)

![](https://rsbolig.dk/i/MOLIRIMEDIA/5fdd80af-b80b-4e08-2691-08dda22a7775?width=800)

![](https://rsbolig.dk/i/MOLIRIMEDIA/f6c8129d-7d83-425f-0e81-08dd9d2caa1e?width=800)

Familieboliger

4

115 m²

8910 kr.

27000 kr.

![](https://rsbolig.dk/i/MOLIRIMEDIA/1153a3fb-be25-49e2-2675-08dda22a7775?width=800)






![](https://rsbolig.dk/i/MOLIRIMEDIA/1153a3fb-be25-49e2-2675-08dda22a7775?width=800)

![](https://rsbolig.dk/i/MOLIRIMEDIA/5e1a0bf9-e030-4401-0f70-08dd9d2caa1e?width=800)

![](https://rsbolig.dk/i/MOLIRIMEDIA/1153a3fb-be25-49e2-2675-08dda22a7775?width=800)

![](https://rsbolig.dk/i/MOLIRIMEDIA/5e1a0bf9-e030-4401-0f70-08dd9d2caa1e?width=800)

## Afdelingsdokumenter

Her finder du nyttig information om din afdeling, såsom husorden, vedligeholdelse af dit lejemål, referater m.m.

###

                                                Husorden

[Husorden, tæt lavt byggeri.pdf](https://rsbolig.dk/p/Files/Boligdata/Afdelinger/1-051/Husorden/Husorden--t&#xE6;t-lavt-byggeri.pdf)

###

                                                Afdelingsmøder

[2025 Referat ekstraord. møde.pdf](https://rsbolig.dk/p/Files/Boligdata/Afdelinger/1-051/Afdelingsm&#xF8;der/2025-Referat-ekstraord.-m&#xF8;de.pdf)
                                            [2025 Referat ekstraord. møde afd. 51 og 54.pdf](https://rsbolig.dk/p/Files/Boligdata/Afdelinger/1-051/Afdelingsm&#xF8;der/2025-Referat-ekstraord.-m&#xF8;de-afd.-51-og-54.pdf)
                                            [2025 Referat afd.møde.pdf](https://rsbolig.dk/p/Files/Boligdata/Afdelinger/1-051/Afdelingsm&#xF8;der/2025-Referat-afd.m&#xF8;de.pdf)
                                            [2025-03-31 Referat ekstraord. møde afd. 51 og 54.pdf](https://rsbolig.dk/p/Files/Boligdata/Afdelinger/1-051/Afdelingsm&#xF8;der/2025-03-31-Referat-ekstraord.-m&#xF8;de-afd.-51-og-54.pdf)
                                            [2024 Referat terrasser og hegn.pdf](https://rsbolig.dk/p/Files/Boligdata/Afdelinger/1-051/Afdelingsm&#xF8;der/2024-Referat-terrasser-og-hegn.pdf)
                                            [2024 Referat afd.møde.pdf](https://rsbolig.dk/p/Files/Boligdata/Afdelinger/1-051/Afdelingsm&#xF8;der/2024-Referat-afd.m&#xF8;de.pdf)
                                            [2024-05-15 Referat terrasser og hegn.pdf](https://rsbolig.dk/p/Files/Boligdata/Afdelinger/1-051/Afdelingsm&#xF8;der/2024-05-15-Referat-terrasser-og-hegn.pdf)
                                            [2023 Referat afd.møde.pdf](https://rsbolig.dk/p/Files/Boligdata/Afdelinger/1-051/Afdelingsm&#xF8;der/2023-Referat-afd.m&#xF8;de.pdf)
                                            [2022 September, Referat afd.møde.pdf](https://rsbolig.dk/p/Files/Boligdata/Afdelinger/1-051/Afdelingsm&#xF8;der/2022-September--Referat-afd.m&#xF8;de.pdf)
                                            [2022 Maj, Referat afd.møde.pdf](https://rsbolig.dk/p/Files/Boligdata/Afdelinger/1-051/Afdelingsm&#xF8;der/2022-Maj--Referat-afd.m&#xF8;de.pdf)

###

                                                Afdelingsbestyrelsesmøder

[2025-12-03 Referat bestyrelsesmøde.pdf](https://rsbolig.dk/p/Files/Boligdata/Afdelinger/1-051/Afdelingsbestyrelsesm&#xF8;der/2025-12-03-Referat-bestyrelsesm&#xF8;de.pdf)
                                            [2025-11-03 Referat bestyrelsesmøde.pdf](https://rsbolig.dk/p/Files/Boligdata/Afdelinger/1-051/Afdelingsbestyrelsesm&#xF8;der/2025-11-03-Referat-bestyrelsesm&#xF8;de.pdf)
                                            [2025-10-23 Referat bestyrelsesmøde.pdf](https://rsbolig.dk/p/Files/Boligdata/Afdelinger/1-051/Afdelingsbestyrelsesm&#xF8;der/2025-10-23-Referat-bestyrelsesm&#xF8;de.pdf)
                                            [2025-10-13 Referat bestyrelsesmøde.pdf](https://rsbolig.dk/p/Files/Boligdata/Afdelinger/1-051/Afdelingsbestyrelsesm&#xF8;der/2025-10-13-Referat-bestyrelsesm&#xF8;de.pdf)
                                            [2025-09-23 Referat bestyrelsesmøde.pdf](https://rsbolig.dk/p/Files/Boligdata/Afdelinger/1-051/Afdelingsbestyrelsesm&#xF8;der/2025-09-23-Referat-bestyrelsesm&#xF8;de.pdf)

###

                                                Øvrigt

[Afd. 51 indflytningsbrochure](https://rsbolig.dk/p/Files/Boligdata/Afdelinger/1-051/&#xD8;vrigt/Afd.-51---Indflytningsbrochure.pdf)
                                            [Vedtægter Rsbolig.pdf](https://rsbolig.dk/p/Files/Boligdata/Afdelinger/1-051/&#xD8;vrigt/Vedt&#xE6;gter-Rsbolig.pdf)

###

                                                Vedligehold

[Gode råd mod skimmelsvamp.pdf](https://rsbolig.dk/p/Files/Boligdata/Afdelinger/1-051/Vedligehold/Gode-r&#xE5;d-mod-skimmelsvamp.pdf)
                                            [Pas på fugtproblemet.pdf](https://rsbolig.dk/p/Files/Boligdata/Afdelinger/1-051/Vedligehold/Pas-p&#xE5;-fugtproblemet.pdf)
                                            [Vedligeholdelsesreglement.pdf](https://rsbolig.dk/p/Files/Boligdata/Afdelinger/1-051/Vedligehold/Vedligeholdelsesreglement.pdf)

## Placering
