---
title: "Engholmvej 5-9, 13-23 og Lønhøjvej 2-36"
description: "1-83"
date: "2025-08-01"
created: "2025-06-12"
---

-
-
-

https://maps.google.dk/?q=55.9100814,8.5140469

# Engholmvej 5-9, 13-23 og Lønhøjvej 2-36

Afdeling 83

## Velkommen til afdeling 83 Engholmvej 5-9, 13-23 og Lønhøjvej 2-36

Afdelingen består af 27 rækkehuse. Boligerne er beliggende i et grønt og naturskønt område tæt på Tarm bymidte.

## Faciliteter

Altan/Have

Ja

Der er have til boligerne.

Gangbesværet

Se mere

Der er dørtrin i boligerne og der kan forekomme niveauforskelle ved indgangen.

El

Se mere

Som lejer skal du, i forbindelse med indflytning, selv vælge hvilken el-leverandør du ønsker.

Husdyr

Ja

Det er tilladt at holde ét husdyr.

Hvidevarer

Ja

Der hører køle-/fryseskab, komfur, ovn og emhætte med til lejligheden.

Gildesal

Nej

Der er ikke gildesal i afdelingen.

Råderet

Ja

Afdelingen har vedtaget, at man kan forny køkkener via råderetten.

TV

Ja

Der er installeret fibernet i boligen.

På hjemmesiden rah-fiber.dk kan du se hvilke udbydere af internet og TV, du kan vælge imellem.

Vand

Læs mere

Udgiften til vand betales direkte til Ringkøbing-Skjern Forsyning.

Varme

Læs mere

Boligerne opvarmes med fjernvarme, som betales direkte til Tarm varmeværk.

Vicevært

Ja

Vicevært i afdelingen

Garage/carport

Ja

Carport

Affald

Læs mere

I Ringkøbing-Skjern Kommune skal man affaldssortere.

Der er fælles affaldsstation, hvor madaffald, restaffald, glas og pap kan afleveres.

Øvrigt affald afleveres på den kommunale genbrugsplads.

Ladestander

Nej

Der er ikke ladestander til elbil i denne afdeling.

                        Se flere

## Boliger i afdelingen

Familieboliger

2 rums

Familieboliger

Familieboliger

3 rums

Familieboliger

Boligtype

Værelser

Størrelse

Husleje

Indskud/dp

Plantegning

Familieboliger

2

70 m²

5673 kr.

13000 kr.

![](https://rsbolig.dk/i/MOLIRIMEDIA/73d0e143-1db9-4bd9-0dda-08dd9d2caa1e?width=800)






![](https://rsbolig.dk/i/MOLIRIMEDIA/73d0e143-1db9-4bd9-0dda-08dd9d2caa1e?width=800)

![](https://rsbolig.dk/i/MOLIRIMEDIA/4dcbf0cd-fc4a-41db-0fb9-08dd9d2caa1e?width=800)

![](https://rsbolig.dk/i/MOLIRIMEDIA/73d0e143-1db9-4bd9-0dda-08dd9d2caa1e?width=800)

![](https://rsbolig.dk/i/MOLIRIMEDIA/4dcbf0cd-fc4a-41db-0fb9-08dd9d2caa1e?width=800)

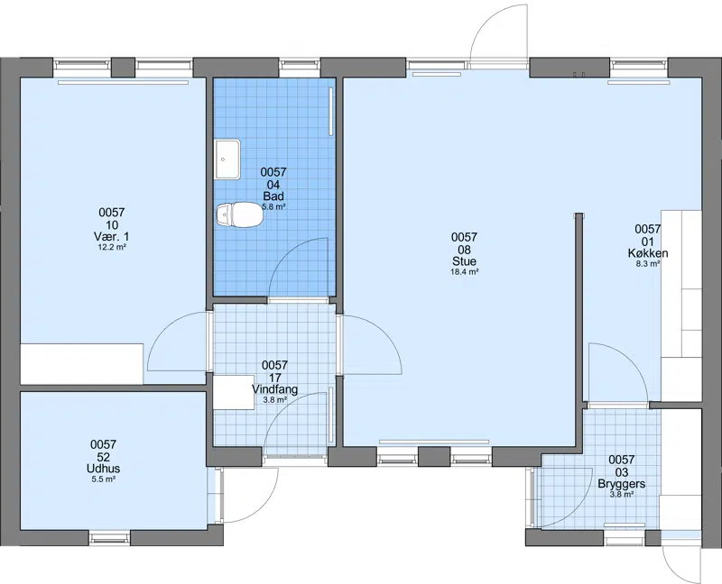
Familieboliger

2

62 m²

4998 kr.

7100 kr.

![](https://rsbolig.dk/i/MOLIRIMEDIA/e2affa18-c438-4a9b-136e-08dd9d2caa1e?width=800)






![](https://rsbolig.dk/i/MOLIRIMEDIA/e2affa18-c438-4a9b-136e-08dd9d2caa1e?width=800)

![](https://rsbolig.dk/i/MOLIRIMEDIA/97cc3956-575e-4aa9-149c-08dd9d2caa1e?width=800)

![](https://rsbolig.dk/i/MOLIRIMEDIA/e2affa18-c438-4a9b-136e-08dd9d2caa1e?width=800)

![](https://rsbolig.dk/i/MOLIRIMEDIA/97cc3956-575e-4aa9-149c-08dd9d2caa1e?width=800)

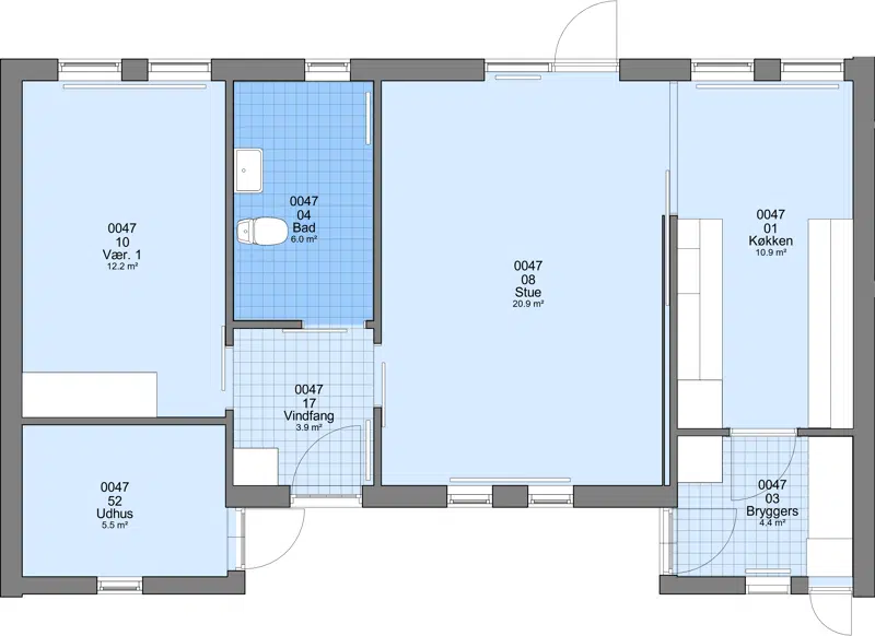
Familieboliger

2

70 m²

5469 kr.

13000 kr.

![](https://rsbolig.dk/i/MOLIRIMEDIA/8d90b67f-a06a-4138-0ea6-08dd9d2caa1e?width=800)






![](https://rsbolig.dk/i/MOLIRIMEDIA/8d90b67f-a06a-4138-0ea6-08dd9d2caa1e?width=800)

![](https://rsbolig.dk/i/MOLIRIMEDIA/7e008a63-ae0e-427f-1150-08dd9d2caa1e?width=800)

![](https://rsbolig.dk/i/MOLIRIMEDIA/8d90b67f-a06a-4138-0ea6-08dd9d2caa1e?width=800)

![](https://rsbolig.dk/i/MOLIRIMEDIA/7e008a63-ae0e-427f-1150-08dd9d2caa1e?width=800)

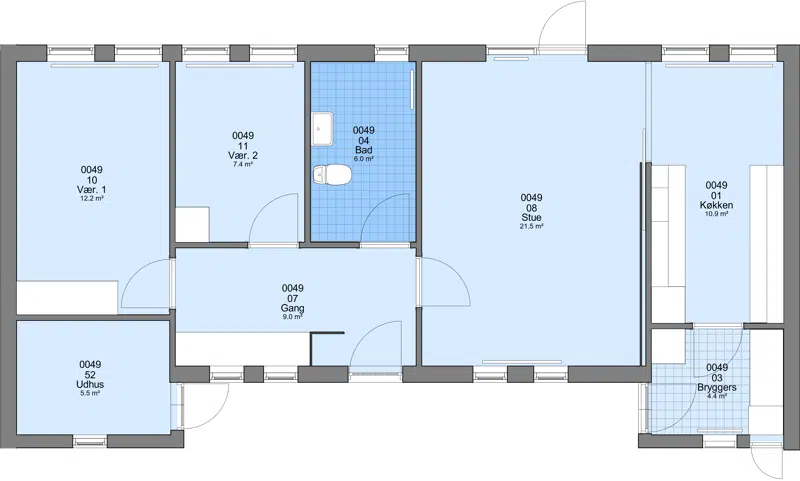
Familieboliger

3

85 m²

6153 kr.

15000 kr.

![](https://rsbolig.dk/i/MOLIRIMEDIA/712d918c-0b78-4d73-2620-08dda22a7775?width=800)






![](https://rsbolig.dk/i/MOLIRIMEDIA/712d918c-0b78-4d73-2620-08dda22a7775?width=800)

![](https://rsbolig.dk/i/MOLIRIMEDIA/8f935215-77b4-4fdf-0c1e-08dd9d2caa1e?width=800)

![](https://rsbolig.dk/i/MOLIRIMEDIA/712d918c-0b78-4d73-2620-08dda22a7775?width=800)

![](https://rsbolig.dk/i/MOLIRIMEDIA/8f935215-77b4-4fdf-0c1e-08dd9d2caa1e?width=800)

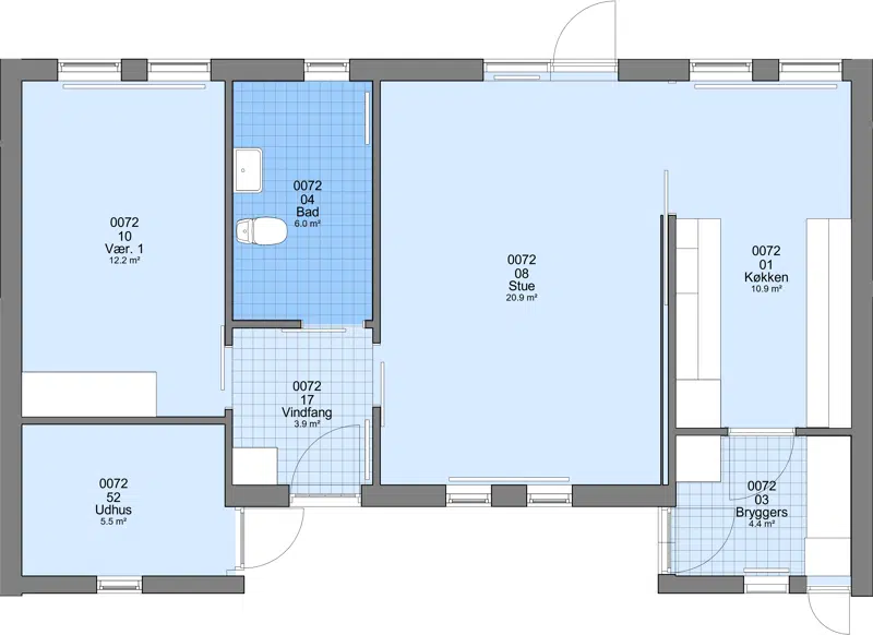
Familieboliger

3

85 m²

6366 kr.

15000 kr.

![](https://rsbolig.dk/i/MOLIRIMEDIA/73ea87b0-40ae-4e75-d906-08dd9de71a53?width=800)






![](https://rsbolig.dk/i/MOLIRIMEDIA/73ea87b0-40ae-4e75-d906-08dd9de71a53?width=800)

![](https://rsbolig.dk/i/MOLIRIMEDIA/5f4c6b36-812b-48a0-0bc6-08dd9d2caa1e?width=800)

![](https://rsbolig.dk/i/MOLIRIMEDIA/73ea87b0-40ae-4e75-d906-08dd9de71a53?width=800)

![](https://rsbolig.dk/i/MOLIRIMEDIA/5f4c6b36-812b-48a0-0bc6-08dd9d2caa1e?width=800)

## Afdelingsdokumenter

Her finder du nyttig information om din afdeling, såsom husorden, vedligeholdelse af dit lejemål, referater m.m.

###

                                                Husorden

[Husorden, tæt lavt byggeri, afd. 83.pdf](https://rsbolig.dk/p/Files/Boligdata/Afdelinger/1-083/Husorden/Husorden--t&#xE6;t-lavt-byggeri--afd.-83.pdf)

###

                                                Afdelingsmøder

[2025 Referat afd.møde.pdf](https://rsbolig.dk/p/Files/Boligdata/Afdelinger/1-083/Afdelingsm&#xF8;der/2025-Referat-afd.m&#xF8;de.pdf)
                                            [2024 Referat afd.møde.pdf](https://rsbolig.dk/p/Files/Boligdata/Afdelinger/1-083/Afdelingsm&#xF8;der/2024-Referat-afd.m&#xF8;de.pdf)
                                            [2023 Referat afd.møde.pdf](https://rsbolig.dk/p/Files/Boligdata/Afdelinger/1-083/Afdelingsm&#xF8;der/2023-Referat-afd.m&#xF8;de.pdf)
                                            [2022 Referat afd.møde.pdf](https://rsbolig.dk/p/Files/Boligdata/Afdelinger/1-083/Afdelingsm&#xF8;der/2022-Referat-afd.m&#xF8;de.pdf)
                                            [2021 Referat afd.møde.pdf](https://rsbolig.dk/p/Files/Boligdata/Afdelinger/1-083/Afdelingsm&#xF8;der/2021-Referat-afd.m&#xF8;de.pdf)
                                            [2020 Referat afd.møde.pdf](https://rsbolig.dk/p/Files/Boligdata/Afdelinger/1-083/Afdelingsm&#xF8;der/2020-Referat-afd.m&#xF8;de.pdf)
                                            [2019 Referat afd.møde.pdf](https://rsbolig.dk/p/Files/Boligdata/Afdelinger/1-083/Afdelingsm&#xF8;der/2019-Referat-afd.m&#xF8;de.pdf)
                                            [2018 Referat afd.møde.pdf](https://rsbolig.dk/p/Files/Boligdata/Afdelinger/1-083/Afdelingsm&#xF8;der/2018-Referat-afd.m&#xF8;de.pdf)
                                            [2017 Referat afd.møde.pdf](https://rsbolig.dk/p/Files/Boligdata/Afdelinger/1-083/Afdelingsm&#xF8;der/2017-Referat-afd.m&#xF8;de.pdf)
                                            [2016 Referat afd.møde.pdf](https://rsbolig.dk/p/Files/Boligdata/Afdelinger/1-083/Afdelingsm&#xF8;der/2016-Referat-afd.m&#xF8;de.pdf)

###

                                                Afdelingsbestyrelsesmøder

[2017-06-24 Referat afd.best.møde.pdf](https://rsbolig.dk/p/Files/Boligdata/Afdelinger/1-083/Afdelingsbestyrelsesm&#xF8;der/2017-06-24-Referat-afd.best.m&#xF8;de.pdf)
                                            [2016-11-08 Referat formandsmøde.pdf](https://rsbolig.dk/p/Files/Boligdata/Afdelinger/1-083/Afdelingsbestyrelsesm&#xF8;der/2016-11-08-Referat-formandsm&#xF8;de.pdf)
                                            [2016-10-23 Referat afd.best.møde.pdf](https://rsbolig.dk/p/Files/Boligdata/Afdelinger/1-083/Afdelingsbestyrelsesm&#xF8;der/2016-10-23-Referat-afd.best.m&#xF8;de.pdf)

###

                                                Øvrigt

[Tarm Afd. 83 - Indflytningsbrochure.pdf](https://rsbolig.dk/p/Files/Boligdata/Afdelinger/1-083/&#xD8;vrigt/Tarm-Afd.-83---Indflytningsbrochure.pdf)
                                            [Vedtægter Rsbolig.pdf](https://rsbolig.dk/p/Files/Boligdata/Afdelinger/1-083/&#xD8;vrigt/Vedt&#xE6;gter-Rsbolig.pdf)

###

                                                Vedligehold

[Gode råd mod skimmelsvamp.pdf](https://rsbolig.dk/p/Files/Boligdata/Afdelinger/1-083/Vedligehold/Gode-r&#xE5;d-mod-skimmelsvamp.pdf)
                                            [Pas på fugtproblemet.pdf](https://rsbolig.dk/p/Files/Boligdata/Afdelinger/1-083/Vedligehold/Pas-p&#xE5;-fugtproblemet.pdf)
                                            [Vedligeholdelsesreglement.pdf](https://rsbolig.dk/p/Files/Boligdata/Afdelinger/1-083/Vedligehold/Vedligeholdelsesreglement.pdf)

## Placering
