---
title: "Engholmvej 1, 3, 25-35 og Lønhøjvej 42-48"
description: "1-82"
date: "2026-03-13"
created: "2025-06-12"
---

-
-
-
-
-
-

https://maps.google.dk/?q=55.9099354,8.5146281

# Engholmvej 1, 3, 25-35 og Lønhøjvej 42-48

Afdeling 82

## Velkommen til afdeling 82 Engholmvej 1, 3, 25-35 og Lønhøjvej 42-48

Afdelingen består af 20 rækkehuse på Engholmvej og Lønhøjvej. Boligerne er totalrenoverede 2014.

## Faciliteter

Altan/Have

Ja

Der er have til boligerne.

Gangbesværet

Se mere

Der er dørtrin i boligerne og der kan forekomme niveauforskelle ved indgangen.

El

Se mere

Som lejer skal du, i forbindelse med indflytning, selv vælge hvilken el-leverandør du ønsker.

Husdyr

Ja

Det er tilladt at holde ét husdyr.

Hvidevarer

Ja

Der hører køle-/fryseskab, komfur, ovn og emhætte med til lejligheden.

Gildesal

Nej

Der er ikke gildesal i afdelingen.

Råderet

Nej

Der er ikke vedtaget mulighed for råderet i afdelingen.

TV

Ja

Der er installeret fibernet i boligen.

På hjemmesiden rah-fiber.dk kan du se hvilke udbydere af internet og TV, du kan vælge imellem.

Vand

Læs mere

Vand betales direkte til Ringkøbing-Skjern Forsyning.

Varme

Læs mere

Varme betales direkte til Tarm varmeværk.

Vicevært

Ja

Vicevært i afdelingen

Garage/carport

Ja

Carport

Legeplads

Ja

Legeplads i afdelingen

Affald

Læs mere

I Ringkøbing-Skjern Kommune skal man affaldssortere.

Der er fælles affaldsstation, hvor madaffald, restaffald, glas og pap kan afleveres.

Øvrigt affald afleveres på den kommunale genbrugsplads.

Ladestander

Nej

Der er ikke ladestander til elbil i afdelingen.

                        Se flere

## Boliger i afdelingen

Familieboliger

2 rums

Familieboliger

Familieboliger

3 rums

Familieboliger

Familieboliger

4 rums

Familieboliger

Familieboliger

5 rums

Familieboliger

Boligtype

Værelser

Størrelse

Husleje

Indskud/dp

Plantegning

Familieboliger

2

63 m²

3875 kr.

11000 kr.

![](https://rsbolig.dk/i/MOLIRIMEDIA/b6abb977-1bcf-42d7-d8f0-08dd9de71a53?width=800)






![](https://rsbolig.dk/i/MOLIRIMEDIA/b6abb977-1bcf-42d7-d8f0-08dd9de71a53?width=800)

![](https://rsbolig.dk/i/MOLIRIMEDIA/904a587c-0466-42e3-0e0a-08dd9d2caa1e?width=800)

![](https://rsbolig.dk/i/MOLIRIMEDIA/b6abb977-1bcf-42d7-d8f0-08dd9de71a53?width=800)

![](https://rsbolig.dk/i/MOLIRIMEDIA/904a587c-0466-42e3-0e0a-08dd9d2caa1e?width=800)

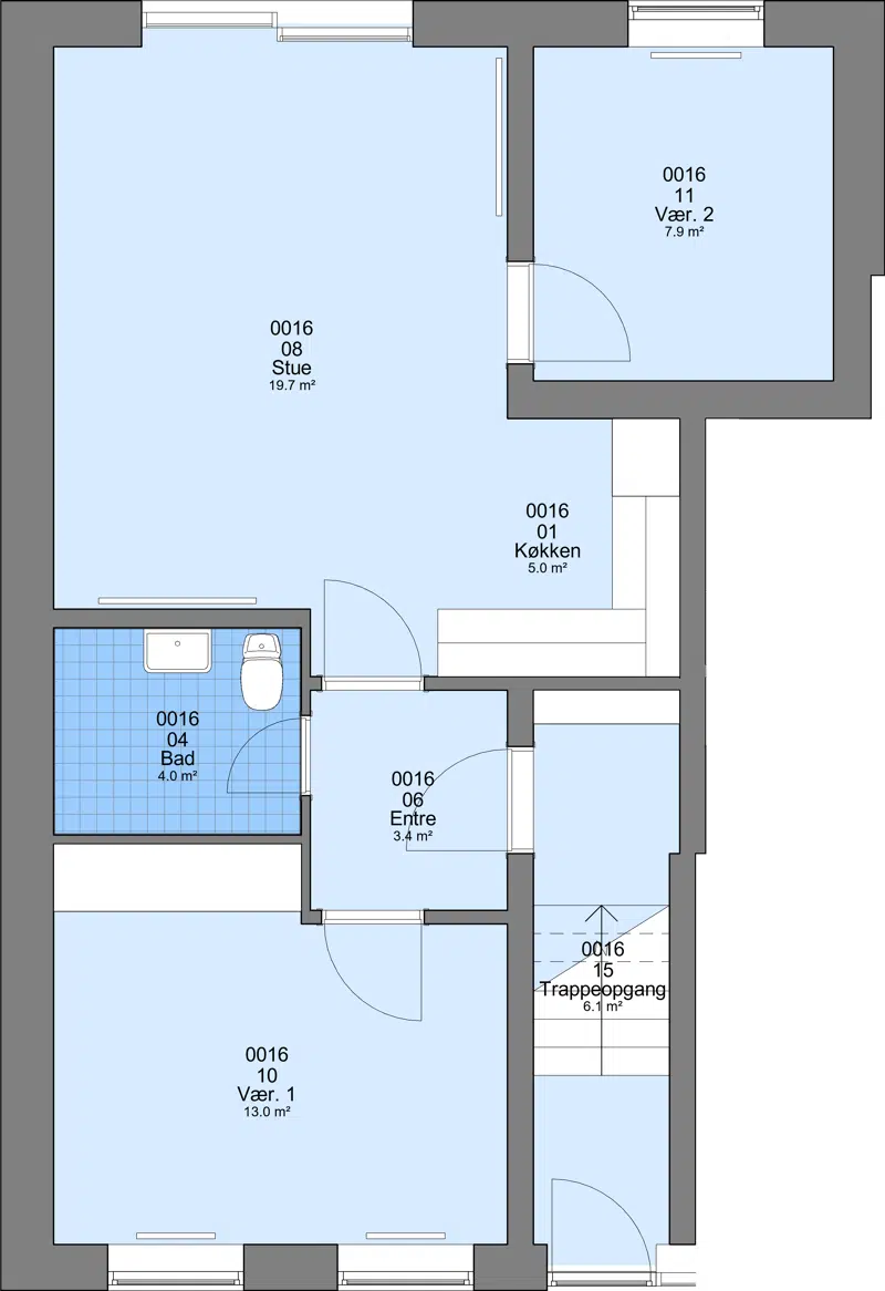
Familieboliger

3

106 m²

7180 kr.

15000 kr.

![](https://rsbolig.dk/i/MOLIRIMEDIA/5a81d059-2fb8-48c4-da97-08dd9de71a53?width=800)






![](https://rsbolig.dk/i/MOLIRIMEDIA/5a81d059-2fb8-48c4-da97-08dd9de71a53?width=800)

![](https://rsbolig.dk/i/MOLIRIMEDIA/b7895e43-9b8a-4363-1299-08dd9d2caa1e?width=800)

![](https://rsbolig.dk/i/MOLIRIMEDIA/5a81d059-2fb8-48c4-da97-08dd9de71a53?width=800)

![](https://rsbolig.dk/i/MOLIRIMEDIA/b7895e43-9b8a-4363-1299-08dd9d2caa1e?width=800)

Familieboliger

3

106 m²

7350 kr.

15000 kr.

![](https://rsbolig.dk/i/MOLIRIMEDIA/9c884212-caa6-4464-da96-08dd9de71a53?width=800)






![](https://rsbolig.dk/i/MOLIRIMEDIA/9c884212-caa6-4464-da96-08dd9de71a53?width=800)

![](https://rsbolig.dk/i/MOLIRIMEDIA/0eb33e6e-6368-42ce-0e77-08dd9d2caa1e?width=800)

![](https://rsbolig.dk/i/MOLIRIMEDIA/9c884212-caa6-4464-da96-08dd9de71a53?width=800)

![](https://rsbolig.dk/i/MOLIRIMEDIA/0eb33e6e-6368-42ce-0e77-08dd9d2caa1e?width=800)

Familieboliger

3

74 m²

4649 kr.

15000 kr.

![](https://rsbolig.dk/i/MOLIRIMEDIA/b15da1e7-82b6-4cf2-d9bf-08dd9de71a53?width=800)






![](https://rsbolig.dk/i/MOLIRIMEDIA/b15da1e7-82b6-4cf2-d9bf-08dd9de71a53?width=800)

![](https://rsbolig.dk/i/MOLIRIMEDIA/8d43405c-1de6-44ae-1089-08dd9d2caa1e?width=800)

![](https://rsbolig.dk/i/MOLIRIMEDIA/b15da1e7-82b6-4cf2-d9bf-08dd9de71a53?width=800)

![](https://rsbolig.dk/i/MOLIRIMEDIA/8d43405c-1de6-44ae-1089-08dd9d2caa1e?width=800)

Familieboliger

4

143 m²

9078 kr.

17000 kr.

![](https://rsbolig.dk/i/MOLIRIMEDIA/f7dd6fdc-9d6d-4f69-0d3a-08dd9d2caa1e?width=800)






![](https://rsbolig.dk/i/MOLIRIMEDIA/f7dd6fdc-9d6d-4f69-0d3a-08dd9d2caa1e?width=800)

![](https://rsbolig.dk/i/MOLIRIMEDIA/5a58558c-d957-426b-0e40-08dd9d2caa1e?width=800)

![](https://rsbolig.dk/i/MOLIRIMEDIA/f7dd6fdc-9d6d-4f69-0d3a-08dd9d2caa1e?width=800)

![](https://rsbolig.dk/i/MOLIRIMEDIA/5a58558c-d957-426b-0e40-08dd9d2caa1e?width=800)

Familieboliger

4

121 m²

7951 kr.

17000 kr.

![](https://rsbolig.dk/i/MOLIRIMEDIA/ec2cf4a6-4cb6-4234-0ae8-08dd9d2caa1e?width=800)






![](https://rsbolig.dk/i/MOLIRIMEDIA/ec2cf4a6-4cb6-4234-0ae8-08dd9d2caa1e?width=800)

![](https://rsbolig.dk/i/MOLIRIMEDIA/6f998eaa-0ae0-49c5-0e2e-08dd9d2caa1e?width=800)

![](https://rsbolig.dk/i/MOLIRIMEDIA/ec2cf4a6-4cb6-4234-0ae8-08dd9d2caa1e?width=800)

![](https://rsbolig.dk/i/MOLIRIMEDIA/6f998eaa-0ae0-49c5-0e2e-08dd9d2caa1e?width=800)

Familieboliger

4

130 m²

9078 kr.

17000 kr.

![](https://rsbolig.dk/i/MOLIRIMEDIA/edcb0864-1a2e-4cbe-0d59-08dd9d2caa1e?width=800)






![](https://rsbolig.dk/i/MOLIRIMEDIA/edcb0864-1a2e-4cbe-0d59-08dd9d2caa1e?width=800)

![](https://rsbolig.dk/i/MOLIRIMEDIA/8ff38aca-a590-4b9f-0e50-08dd9d2caa1e?width=800)

![](https://rsbolig.dk/i/MOLIRIMEDIA/edcb0864-1a2e-4cbe-0d59-08dd9d2caa1e?width=800)

![](https://rsbolig.dk/i/MOLIRIMEDIA/8ff38aca-a590-4b9f-0e50-08dd9d2caa1e?width=800)

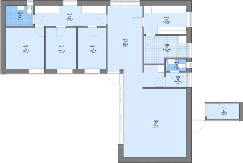
Familieboliger

5

119 m²

7951 kr.

17000 kr.

![](https://rsbolig.dk/i/MOLIRIMEDIA/974badca-0e74-41d6-2609-08dda22a7775?width=800)






![](https://rsbolig.dk/i/MOLIRIMEDIA/974badca-0e74-41d6-2609-08dda22a7775?width=800)

![](https://rsbolig.dk/i/MOLIRIMEDIA/e1a90f19-e77a-465d-0c13-08dd9d2caa1e?width=800)

![](https://rsbolig.dk/i/MOLIRIMEDIA/974badca-0e74-41d6-2609-08dda22a7775?width=800)

![](https://rsbolig.dk/i/MOLIRIMEDIA/e1a90f19-e77a-465d-0c13-08dd9d2caa1e?width=800)

## Afdelingsdokumenter

Her finder du nyttig information om din afdeling, såsom husorden, vedligeholdelse af dit lejemål, referater m.m.

###

                                                Husorden

[2018 Husorden.pdf](https://rsbolig.dk/p/Files/Boligdata/Afdelinger/1-082/Husorden/2018-Husorden.pdf)

###

                                                Afdelingsmøder

[2025 Referat afd.møde.pdf](https://rsbolig.dk/p/Files/Boligdata/Afdelinger/1-082/Afdelingsm&#xF8;der/2025-Referat-afd.m&#xF8;de.pdf)
                                            [2024 Referat afd.møde.pdf](https://rsbolig.dk/p/Files/Boligdata/Afdelinger/1-082/Afdelingsm&#xF8;der/2024-Referat-afd.m&#xF8;de.pdf)
                                            [2023 Referat afd.møde.pdf](https://rsbolig.dk/p/Files/Boligdata/Afdelinger/1-082/Afdelingsm&#xF8;der/2023-Referat-afd.m&#xF8;de.pdf)
                                            [2022 Referat ekstraordinært afd.møde.pdf](https://rsbolig.dk/p/Files/Boligdata/Afdelinger/1-082/Afdelingsm&#xF8;der/2022-Referat-ekstraordin&#xE6;rt-afd.m&#xF8;de.pdf)
                                            [2022 Referat afd.møde.pdf](https://rsbolig.dk/p/Files/Boligdata/Afdelinger/1-082/Afdelingsm&#xF8;der/2022-Referat-afd.m&#xF8;de.pdf)
                                            [2021 Referat ekstraordinært afd.møde.pdf](https://rsbolig.dk/p/Files/Boligdata/Afdelinger/1-082/Afdelingsm&#xF8;der/2021-Referat-ekstraordin&#xE6;rt-afd.m&#xF8;de.pdf)
                                            [2021 Referat afd.møde.pdf](https://rsbolig.dk/p/Files/Boligdata/Afdelinger/1-082/Afdelingsm&#xF8;der/2021-Referat-afd.m&#xF8;de.pdf)
                                            [2021 Bilag ekstraordinært afd.møde.pdf](https://rsbolig.dk/p/Files/Boligdata/Afdelinger/1-082/Afdelingsm&#xF8;der/2021-Bilag-ekstraordin&#xE6;rt-afd.m&#xF8;de.pdf)
                                            [2020 Referat afd.møde.pdf](https://rsbolig.dk/p/Files/Boligdata/Afdelinger/1-082/Afdelingsm&#xF8;der/2020-Referat-afd.m&#xF8;de.pdf)
                                            [2019 Referat ekstraordinært afd.møde.pdf](https://rsbolig.dk/p/Files/Boligdata/Afdelinger/1-082/Afdelingsm&#xF8;der/2019-Referat-ekstraordin&#xE6;rt-afd.m&#xF8;de.pdf)
                                            [2019 Referat afd.møde.pdf](https://rsbolig.dk/p/Files/Boligdata/Afdelinger/1-082/Afdelingsm&#xF8;der/2019-Referat-afd.m&#xF8;de.pdf)
                                            [2018 Referat afd.møde.pdf](https://rsbolig.dk/p/Files/Boligdata/Afdelinger/1-082/Afdelingsm&#xF8;der/2018-Referat-afd.m&#xF8;de.pdf)
                                            [2017 Referat afd.møde.pdf](https://rsbolig.dk/p/Files/Boligdata/Afdelinger/1-082/Afdelingsm&#xF8;der/2017-Referat-afd.m&#xF8;de.pdf)
                                            [2017 Formandsberetning.pdf](https://rsbolig.dk/p/Files/Boligdata/Afdelinger/1-082/Afdelingsm&#xF8;der/2017-Formandsberetning.pdf)
                                            [2016 Referat-beboermøde..pdf](https://rsbolig.dk/p/Files/Boligdata/Afdelinger/1-082/Afdelingsm&#xF8;der/2016-Referat-beboerm&#xF8;de..pdf)
                                            [2016 Formandsberetning.pdf](https://rsbolig.dk/p/Files/Boligdata/Afdelinger/1-082/Afdelingsm&#xF8;der/2016-Formandsberetning.pdf)

###

                                                Øvrigt

[08-05-2022 Information til beboerne.pdf](https://rsbolig.dk/p/Files/Boligdata/Afdelinger/1-082/&#xD8;vrigt/08-05-2022-Information-til-beboerne.pdf)
                                            [Tarm Afd. 82 - Indflytningsbrochure.pdf](https://rsbolig.dk/p/Files/Boligdata/Afdelinger/1-082/&#xD8;vrigt/Tarm-Afd.-82---Indflytningsbrochure.pdf)
                                            [Vedtægter Rsbolig.pdf](https://rsbolig.dk/p/Files/Boligdata/Afdelinger/1-082/&#xD8;vrigt/Vedt&#xE6;gter-Rsbolig.pdf)

###

                                                Vedligehold

[Gode råd mod skimmelsvamp.pdf](https://rsbolig.dk/p/Files/Boligdata/Afdelinger/1-082/Vedligehold/Gode-r&#xE5;d-mod-skimmelsvamp.pdf)
                                            [Pas på fugtproblemet.pdf](https://rsbolig.dk/p/Files/Boligdata/Afdelinger/1-082/Vedligehold/Pas-p&#xE5;-fugtproblemet.pdf)
                                            [Vedligeholdelsesreglement.pdf](https://rsbolig.dk/p/Files/Boligdata/Afdelinger/1-082/Vedligehold/Vedligeholdelsesreglement.pdf)

## Placering
