---
title: "Enghavevej/Grønningen"
description: "1-2"
date: "2025-08-01"
created: "2025-06-12"
---

-
-
-
-
-

https://maps.google.dk/?q=56.0941459,8.2451571

# Enghavevej/Grønningen

Afdeling 2

## Velkommen til afdeling 2 Enghavevej/Grønningen

Afdelingen består af 12 rækkehuse. Boligerne er beliggende centralt i Ringkøbing tæt ved byens hyggelige centrum. Hver bolig har tilhørende lukket have.

## Faciliteter

Altan/Have

Ja

Der er have til alle boliger.

Gangbesværet

Se mere

Der er dørtrin i boligerne og der kan forekomme niveauforskelle til enkelte rum.

El

Se mere

Som lejer skal du, i forbindelse med indflytning, selv vælge hvilken el-leverandør du ønsker.

Husdyr

Ja

Det er tilladt at holde ét husdyr.

Hvidevarer

Ja

Der hører komfur, ovn og emhætte med til lejligheden.

Gildesal

Nej

Der er ingen gildesal i afdelingen.

Råderet

Ja

Afdelingen har vedtaget, at man kan forny badeværelse og døre via råderetten.

TV

Ja

Der er installeret fibernet i boligen.

På hjemmesiden rah-fiber.dk kan du se hvilke udbydere af internet og TV, du kan vælge imellem.

Vand

Læs mere

Vand betales direkte til Ringkøbing-Skjern Forsyning.

Varme

Læs mere

Varme betales direkte til Ringkøbing Fjernvarme.

Vicevært

Ja

Vicevært i afdelingen

Skur

Ja

Der er skur, depotrum og vaskerum til boligerne.

Affald

Læs mere

I Ringkøbing-Skjern kommune skal man affaldssortere.
Til hver bolig, hører der en 240 L opdelt affaldscontainer. Containeren bruges til mad- og restaffald.
Der opstilles en trailer til haveaffald, som tømmes flere gange i sommerhalvåret.
Øvrigt affald skal afleveres på den kommunale genbrugsplads eller de offentlige affaldsstationer i byen.

Ladestander

Nej

Der er ikke ladestander til elbil i afdelingen.

                        Se flere

## Boliger i afdelingen

Familieboliger

2 rums

Familieboliger

Familieboliger

3 rums

Familieboliger

Boligtype

Værelser

Størrelse

Husleje

Indskud/dp

Plantegning

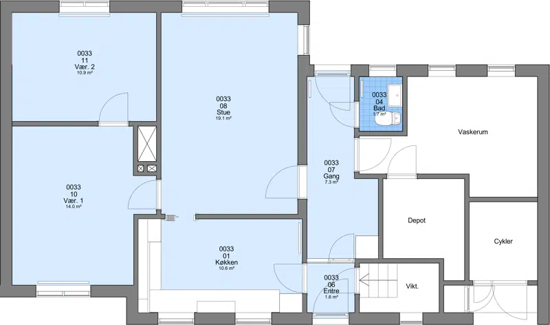
Familieboliger

2

78 m²

5452 kr.

15000 kr.

![](https://rsbolig.dk/i/MOLIRIMEDIA/75cdbaa6-6144-4842-d9af-08dd9de71a53?width=800)






![](https://rsbolig.dk/i/MOLIRIMEDIA/75cdbaa6-6144-4842-d9af-08dd9de71a53?width=800)

![](https://rsbolig.dk/i/MOLIRIMEDIA/0b8bce69-bdd8-487c-0cd9-08dd9d2caa1e?width=800)

![](https://rsbolig.dk/i/MOLIRIMEDIA/75cdbaa6-6144-4842-d9af-08dd9de71a53?width=800)

![](https://rsbolig.dk/i/MOLIRIMEDIA/0b8bce69-bdd8-487c-0cd9-08dd9d2caa1e?width=800)

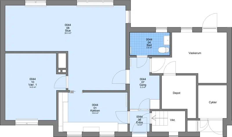
Familieboliger

2

78 m²

5452 kr.

15000 kr.

![](https://rsbolig.dk/i/MOLIRIMEDIA/6521dbed-396e-414c-d901-08dd9de71a53?width=800)






![](https://rsbolig.dk/i/MOLIRIMEDIA/6521dbed-396e-414c-d901-08dd9de71a53?width=800)

![](https://rsbolig.dk/i/MOLIRIMEDIA/4eeea475-8c71-4fe7-0ca6-08dd9d2caa1e?width=800)

![](https://rsbolig.dk/i/MOLIRIMEDIA/6521dbed-396e-414c-d901-08dd9de71a53?width=800)

![](https://rsbolig.dk/i/MOLIRIMEDIA/4eeea475-8c71-4fe7-0ca6-08dd9d2caa1e?width=800)

## Afdelingsdokumenter

Her finder du nyttig information om din afdeling, såsom husorden, vedligeholdelse af dit lejemål, referater m.m.

###

                                                Husorden

[Husorden, tæt lavt byggeri.pdf](https://rsbolig.dk/p/Files/Boligdata/Afdelinger/1-002/Husorden/Husorden--t&#xE6;t-lavt-byggeri.pdf)

###

                                                Afdelingsmøder

[2025 Referat afd.møde.pdf](https://rsbolig.dk/p/Files/Boligdata/Afdelinger/1-002/Afdelingsm&#xF8;der/2025-Referat-afd.m&#xF8;de.pdf)
                                            [2024 Referat afd.møde.pdf](https://rsbolig.dk/p/Files/Boligdata/Afdelinger/1-002/Afdelingsm&#xF8;der/2024-Referat-afd.m&#xF8;de.pdf)
                                            [2023 Referat afd.møde.pdf](https://rsbolig.dk/p/Files/Boligdata/Afdelinger/1-002/Afdelingsm&#xF8;der/2023-Referat-afd.m&#xF8;de.pdf)
                                            [2022, Referat afd.møde.pdf](https://rsbolig.dk/p/Files/Boligdata/Afdelinger/1-002/Afdelingsm&#xF8;der/2022--Referat-afd.m&#xF8;de.pdf)
                                            [2021, Referat afd.møde.pdf](https://rsbolig.dk/p/Files/Boligdata/Afdelinger/1-002/Afdelingsm&#xF8;der/2021--Referat-afd.m&#xF8;de.pdf)
                                            [2020, Referat afd.møde.pdf](https://rsbolig.dk/p/Files/Boligdata/Afdelinger/1-002/Afdelingsm&#xF8;der/2020--Referat-afd.m&#xF8;de.pdf)
                                            [2019, Referat afd.møde.pdf](https://rsbolig.dk/p/Files/Boligdata/Afdelinger/1-002/Afdelingsm&#xF8;der/2019--Referat-afd.m&#xF8;de.pdf)
                                            [2018, Referat afd.møde.pdf](https://rsbolig.dk/p/Files/Boligdata/Afdelinger/1-002/Afdelingsm&#xF8;der/2018--Referat-afd.m&#xF8;de.pdf)
                                            [2017, Referat ekstraord. afd.møde.pdf](https://rsbolig.dk/p/Files/Boligdata/Afdelinger/1-002/Afdelingsm&#xF8;der/2017--Referat-ekstraord.-afd.m&#xF8;de.pdf)
                                            [2017, Referat afd.møde.pdf](https://rsbolig.dk/p/Files/Boligdata/Afdelinger/1-002/Afdelingsm&#xF8;der/2017--Referat-afd.m&#xF8;de.pdf)
                                            [2016, Referat afd.møde.pdf](https://rsbolig.dk/p/Files/Boligdata/Afdelinger/1-002/Afdelingsm&#xF8;der/2016--Referat-afd.m&#xF8;de.pdf)

###

                                                Øvrigt

[Afd. 2 - Indflytningsbrochure.pdf](https://rsbolig.dk/p/Files/Boligdata/Afdelinger/1-002/&#xD8;vrigt/Afd.-2---Indflytningsbrochure.pdf)
                                            [Vedtægter Rsbolig.pdf](https://rsbolig.dk/p/Files/Boligdata/Afdelinger/1-002/&#xD8;vrigt/Vedt&#xE6;gter-Rsbolig.pdf)

###

                                                Vedligehold

[Gode råd mod skimmelsvamp.pdf](https://rsbolig.dk/p/Files/Boligdata/Afdelinger/1-002/Vedligehold/Gode-r&#xE5;d-mod-skimmelsvamp.pdf)
                                            [Pas på fugtproblemet.pdf](https://rsbolig.dk/p/Files/Boligdata/Afdelinger/1-002/Vedligehold/Pas-p&#xE5;-fugtproblemet.pdf)
                                            [Vedligeholdelsesreglement.pdf](https://rsbolig.dk/p/Files/Boligdata/Afdelinger/1-002/Vedligehold/Vedligeholdelsesreglement.pdf)

## Placering
