---
title: "Damtoften 15 - 40"
description: "1-8"
date: "2025-08-01"
created: "2025-06-12"
---

-
-
-
-
-
-
-
-
-
-

https://maps.google.dk/?q=56.080526,8.2636108

# Damtoften 15 - 40

Afdeling 8

## Velkommen til afdeling 8 Damtoften 15 - 40

Afdelingen består af 159 boliger i etagebyggeri. Afdelingen er beliggende tæt ved Ringkøbing Fjord, Alkjærskolen og indkøbsmuligheder. Boligerne er løbende renoveret. Flere af boligerne i afdelingen har udsigt over fjorden. Alle badeværelser er renoveret i årene 2018-2020.

## Faciliteter

Altan/Have

Ja

Der er altan til alle boliger.

Gangbesværet

Se mere

Der er trapper op til alle boliger.

El

Se mere

Som lejer skal du, i forbindelse med indflytning, selv vælge hvilken el-leverandør du ønsker.

Husdyr

Nej

Det er ikke tilladt at holde husdyr.

Hvidevarer

Ja

Der hører køle-/fryseskab, komfur, ovn og emhætte med til lejligheden.

Gildesal

Ja

Der er en gildesal i afdelingen.

Råderet

Ja

Afdelingen har vedtaget, at man kan forny døre via råderetten.

TV

Ja

Der er installeret fibernet i boligen.

På hjemmesiden rah-fiber.dk kan du se hvilke udbydere af internet og TV, du kan vælge imellem.

Vand

Læs mere

Udgiften til vand betales aconto til Boligforeningen.

Varme

Læs mere

Der er fjernvarme i boligen. Varmen betales aconto til Boligforeningen.

Vicevært

Ja

Vicevært i afdelingen

Fællesvaskeri

Ja

Vaskeri i afdelingen

Legeplads

Ja

Legeplads i afdelingen

Skur

Ja

Der er et kælderrum til alle boliger.

Affald

Læs mere

I Ringkøbing-Skjern Kommune skal man affaldssortere.
Der er fælles affaldsstationer, hvor madaffald, restaffald, pap, plast og metal kan afleveres.
Derudover er der en lille genbrugsplads i Damtoften, som har åbent en gang ugentligt.
Øvrigt affald afleveres på den kommunale genbrugsplads eller de offentlige affaldsstationer i byen.

Ladestander

Der er ladestandere fra Prostrøm i afdelingen.

                        Se flere

## Boliger i afdelingen

Familieboliger

2 rums

Familieboliger

Familieboliger

3 rums

Familieboliger

Familieboliger

4 rums

Familieboliger

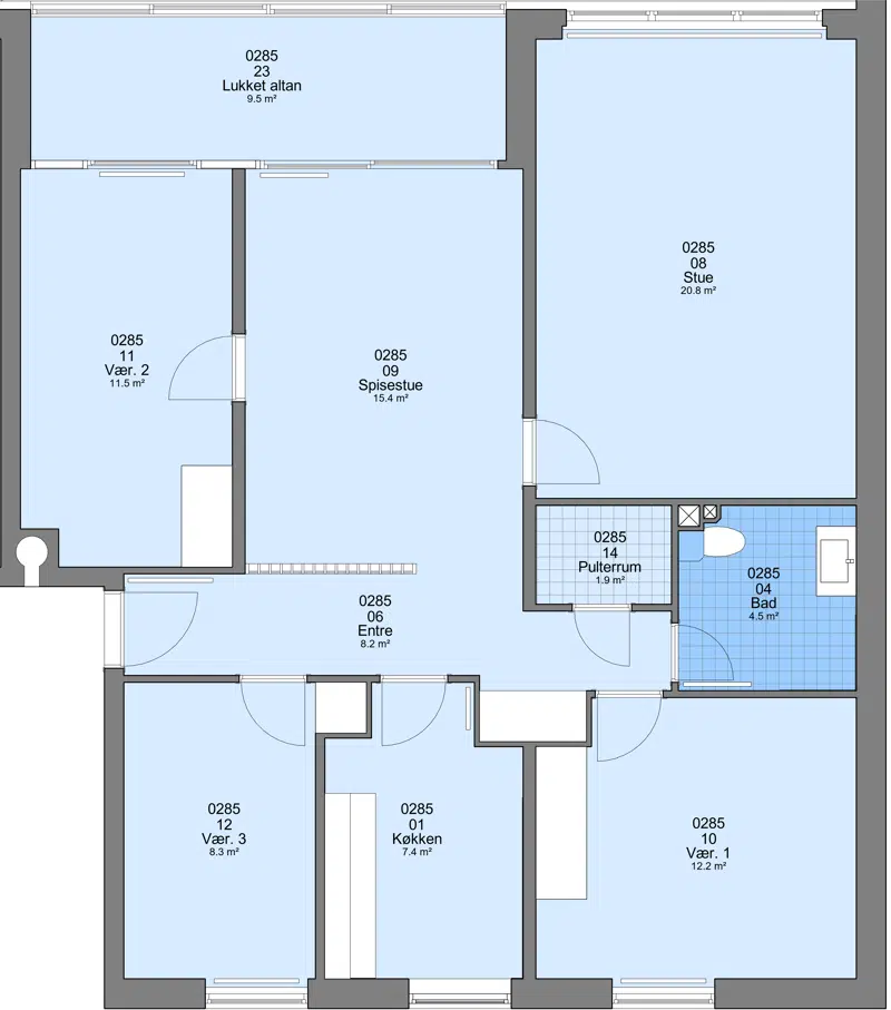
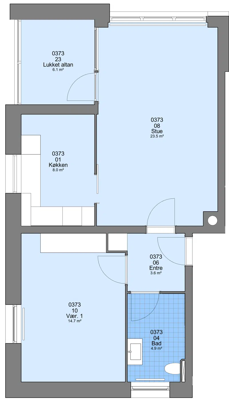
Boligtype

Værelser

Størrelse

Husleje

Indskud/dp

Plantegning

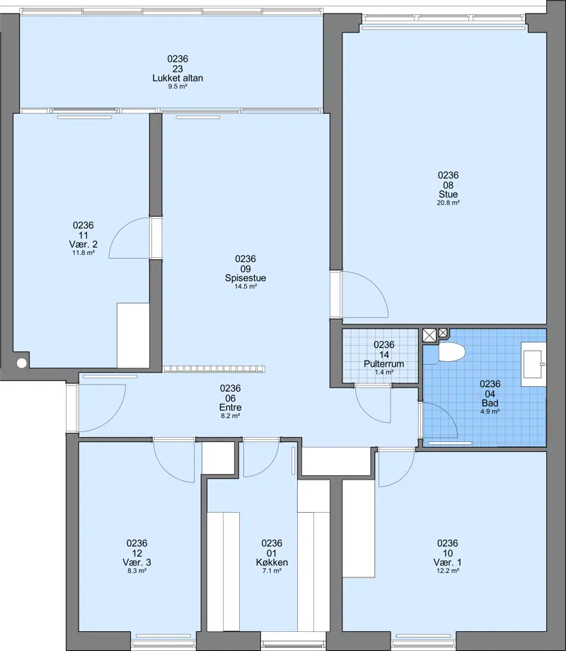
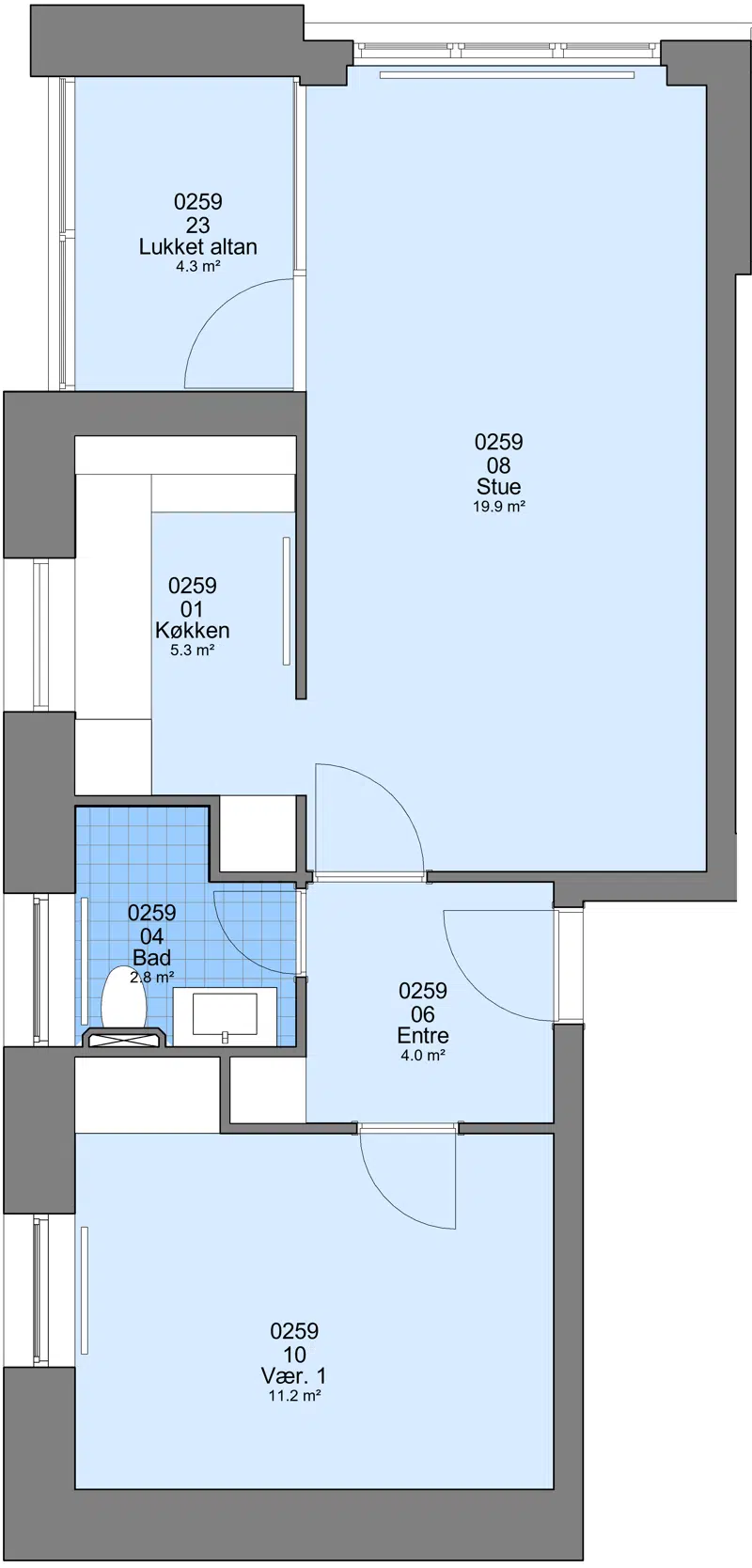
Familieboliger

2

63 m²

4816 kr.

11000 kr.

![](https://rsbolig.dk/i/MOLIRIMEDIA/62d0e1ed-5d05-46e0-2674-08dda22a7775?width=800)






![](https://rsbolig.dk/i/MOLIRIMEDIA/62d0e1ed-5d05-46e0-2674-08dda22a7775?width=800)

![](https://rsbolig.dk/i/MOLIRIMEDIA/dd074c21-56ae-4e6b-0ec7-08dd9d2caa1e?width=800)

![](https://rsbolig.dk/i/MOLIRIMEDIA/62d0e1ed-5d05-46e0-2674-08dda22a7775?width=800)

![](https://rsbolig.dk/i/MOLIRIMEDIA/dd074c21-56ae-4e6b-0ec7-08dd9d2caa1e?width=800)

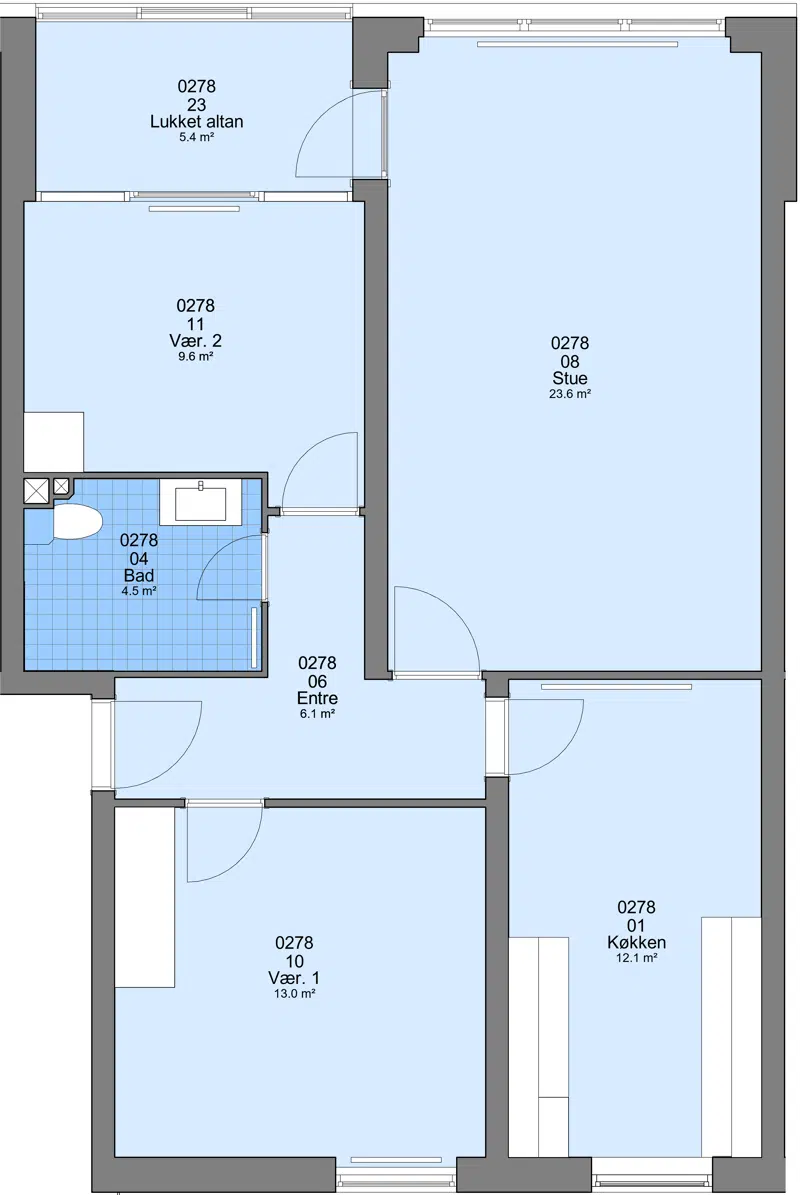
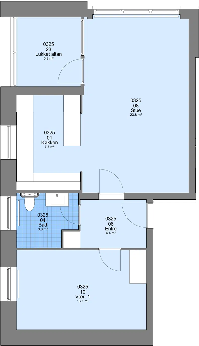
Familieboliger

2

69 m²

4740 kr.

13000 kr.

![](https://rsbolig.dk/i/MOLIRIMEDIA/0a6c96b3-9897-4609-0cc1-08dd9d2caa1e?width=800)






![](https://rsbolig.dk/i/MOLIRIMEDIA/0a6c96b3-9897-4609-0cc1-08dd9d2caa1e?width=800)

![](https://rsbolig.dk/i/MOLIRIMEDIA/5e126c40-140c-40bc-10ec-08dd9d2caa1e?width=800)

![](https://rsbolig.dk/i/MOLIRIMEDIA/0a6c96b3-9897-4609-0cc1-08dd9d2caa1e?width=800)

![](https://rsbolig.dk/i/MOLIRIMEDIA/5e126c40-140c-40bc-10ec-08dd9d2caa1e?width=800)

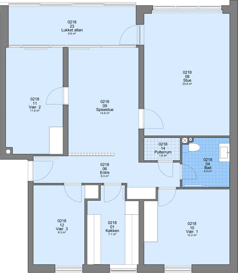
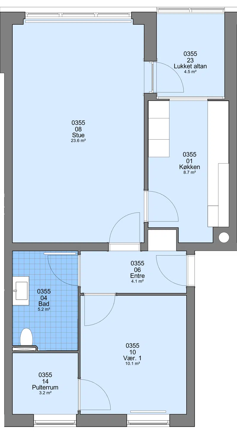
Familieboliger

2

73 m²

4903 kr.

13000 kr.

![](https://rsbolig.dk/i/MOLIRIMEDIA/75404335-b6aa-4655-da91-08dd9de71a53?width=800)






![](https://rsbolig.dk/i/MOLIRIMEDIA/75404335-b6aa-4655-da91-08dd9de71a53?width=800)

![](https://rsbolig.dk/i/MOLIRIMEDIA/4e756ce8-bd1e-4b61-10b4-08dd9d2caa1e?width=800)

![](https://rsbolig.dk/i/MOLIRIMEDIA/75404335-b6aa-4655-da91-08dd9de71a53?width=800)

![](https://rsbolig.dk/i/MOLIRIMEDIA/4e756ce8-bd1e-4b61-10b4-08dd9d2caa1e?width=800)

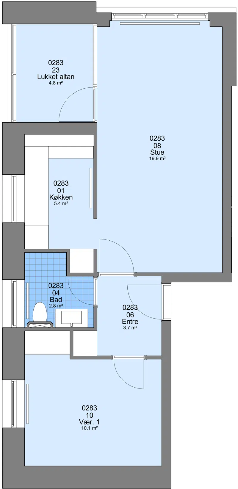
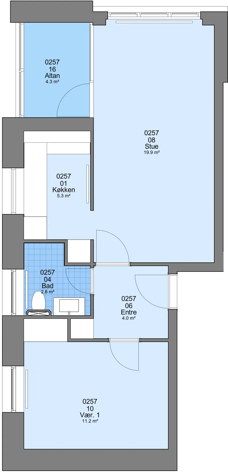
Familieboliger

2

61 m²

4498 kr.

11000 kr.

![](https://rsbolig.dk/i/MOLIRIMEDIA/37ccddd6-fd79-4c31-d926-08dd9de71a53?width=800)






![](https://rsbolig.dk/i/MOLIRIMEDIA/37ccddd6-fd79-4c31-d926-08dd9de71a53?width=800)

![](https://rsbolig.dk/i/MOLIRIMEDIA/9e159ead-0d17-4b26-11d7-08dd9d2caa1e?width=800)

![](https://rsbolig.dk/i/MOLIRIMEDIA/37ccddd6-fd79-4c31-d926-08dd9de71a53?width=800)

![](https://rsbolig.dk/i/MOLIRIMEDIA/9e159ead-0d17-4b26-11d7-08dd9d2caa1e?width=800)

Familieboliger

2

55 m²

4298 kr.

11000 kr.

![](https://rsbolig.dk/i/MOLIRIMEDIA/d4510bd0-1e77-4c3f-2602-08dda22a7775?width=800)






![](https://rsbolig.dk/i/MOLIRIMEDIA/d4510bd0-1e77-4c3f-2602-08dda22a7775?width=800)

![](https://rsbolig.dk/i/MOLIRIMEDIA/d0e8738a-1055-4ae7-1102-08dd9d2caa1e?width=800)

![](https://rsbolig.dk/i/MOLIRIMEDIA/d4510bd0-1e77-4c3f-2602-08dda22a7775?width=800)

![](https://rsbolig.dk/i/MOLIRIMEDIA/d0e8738a-1055-4ae7-1102-08dd9d2caa1e?width=800)

Familieboliger

2

51 m²

4180 kr.

11000 kr.

![](https://rsbolig.dk/i/MOLIRIMEDIA/2fee5305-cfaa-4af9-0c6b-08dd9d2caa1e?width=800)






![](https://rsbolig.dk/i/MOLIRIMEDIA/2fee5305-cfaa-4af9-0c6b-08dd9d2caa1e?width=800)

![](https://rsbolig.dk/i/MOLIRIMEDIA/5ea28947-2397-411f-0fcd-08dd9d2caa1e?width=800)

![](https://rsbolig.dk/i/MOLIRIMEDIA/2fee5305-cfaa-4af9-0c6b-08dd9d2caa1e?width=800)

![](https://rsbolig.dk/i/MOLIRIMEDIA/5ea28947-2397-411f-0fcd-08dd9d2caa1e?width=800)

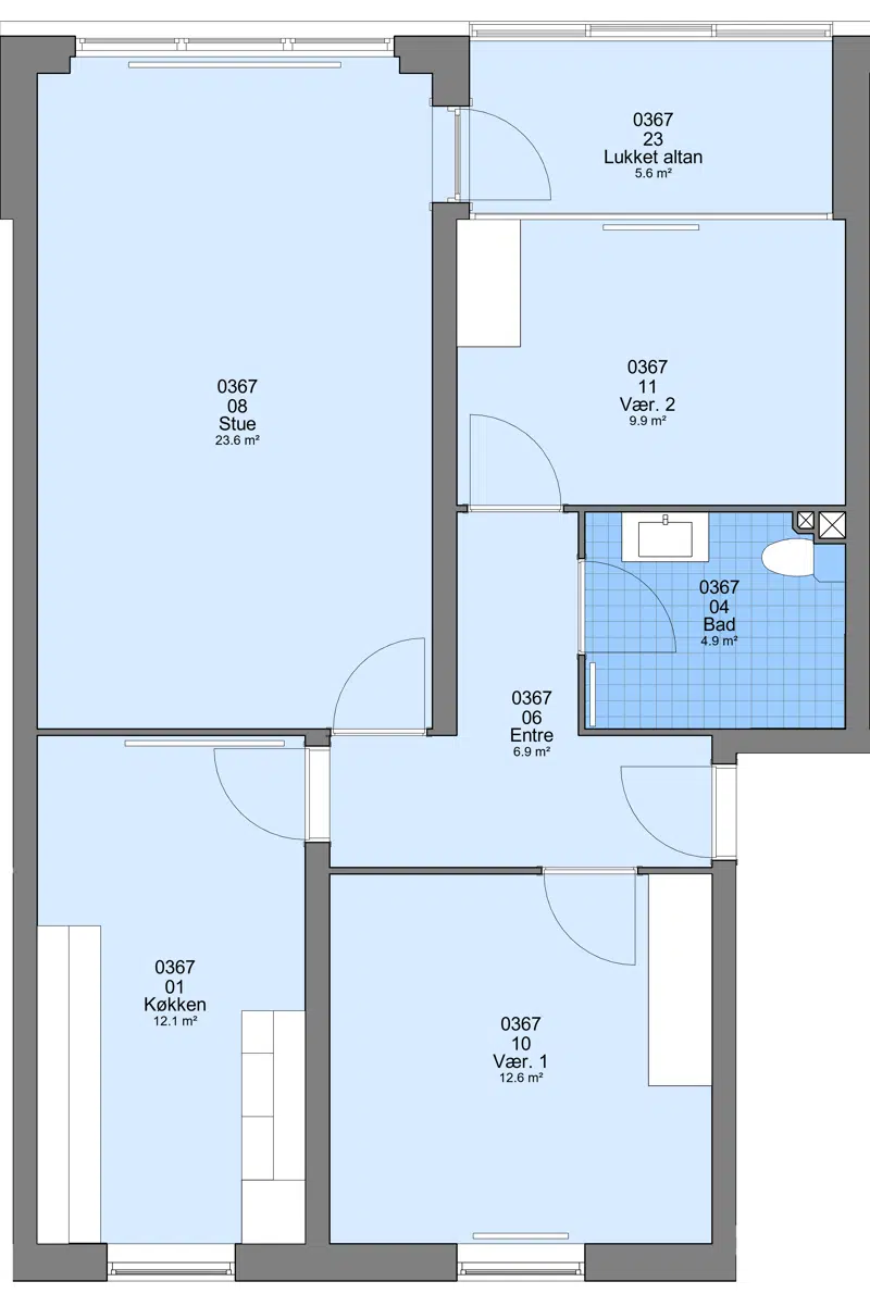
Familieboliger

2

63 m²

4816 kr.

11000 kr.

![](https://rsbolig.dk/i/MOLIRIMEDIA/d6663919-ec33-4e83-d8e5-08dd9de71a53?width=800)






![](https://rsbolig.dk/i/MOLIRIMEDIA/d6663919-ec33-4e83-d8e5-08dd9de71a53?width=800)

![](https://rsbolig.dk/i/MOLIRIMEDIA/193920e3-ffc2-4581-0c58-08dd9d2caa1e?width=800)

![](https://rsbolig.dk/i/MOLIRIMEDIA/d6663919-ec33-4e83-d8e5-08dd9de71a53?width=800)

![](https://rsbolig.dk/i/MOLIRIMEDIA/193920e3-ffc2-4581-0c58-08dd9d2caa1e?width=800)

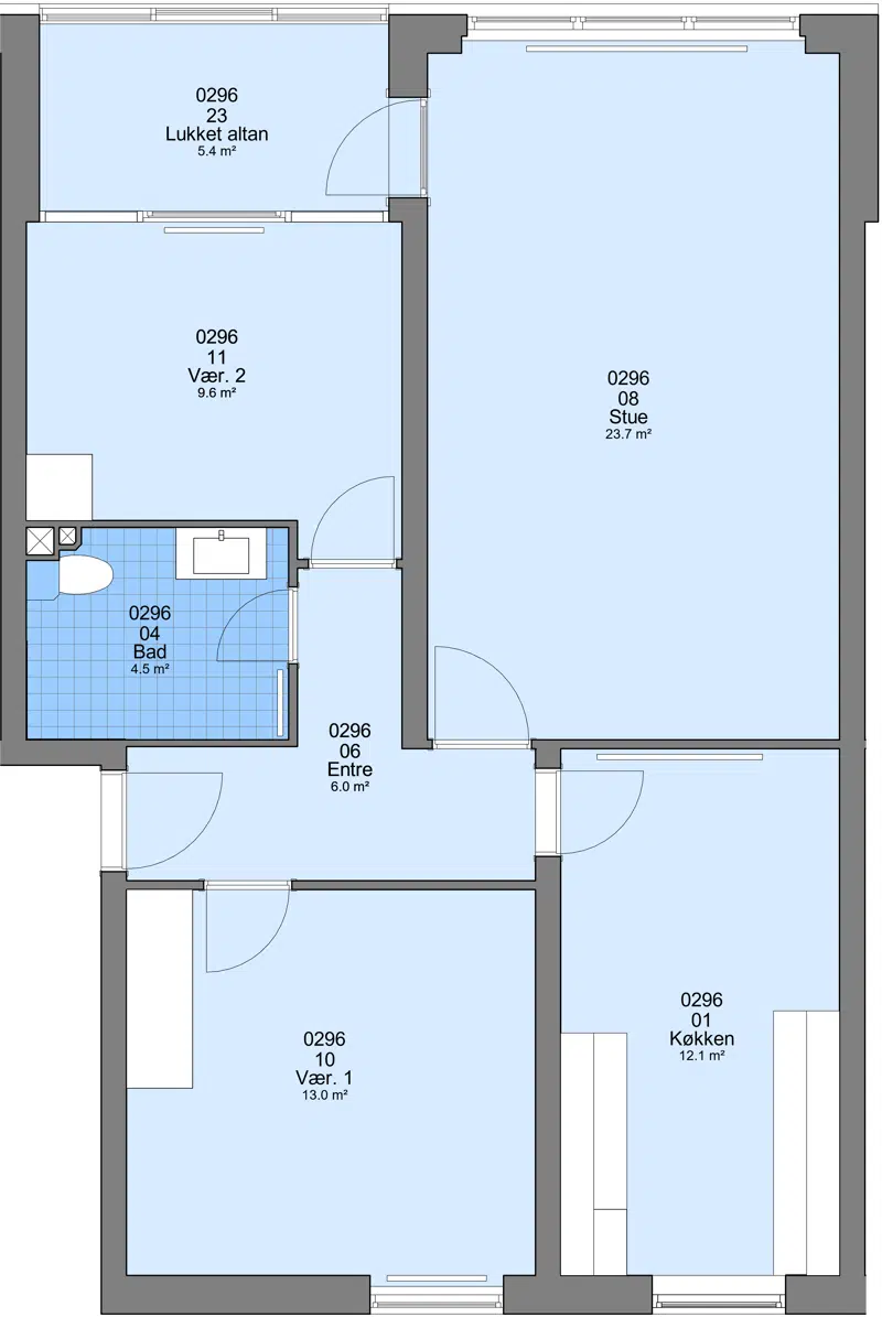
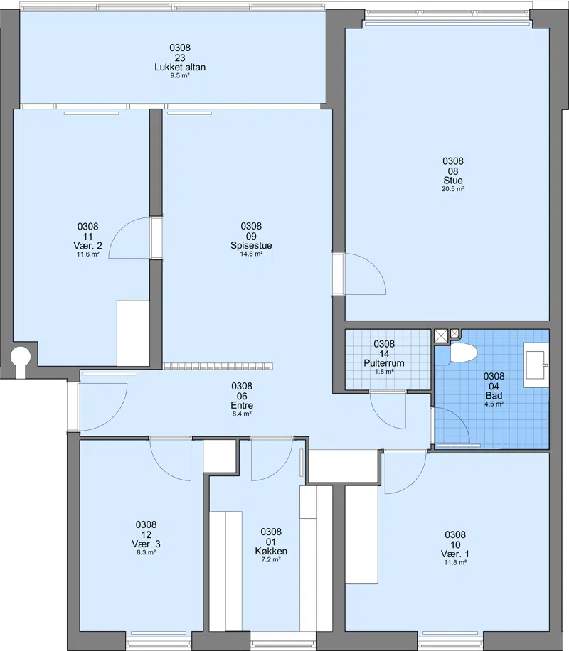
Familieboliger

3

88 m²

5474 kr.

15000 kr.

![](https://rsbolig.dk/i/MOLIRIMEDIA/c5a0bf10-ee95-43aa-d936-08dd9de71a53?width=800)






![](https://rsbolig.dk/i/MOLIRIMEDIA/c5a0bf10-ee95-43aa-d936-08dd9de71a53?width=800)

![](https://rsbolig.dk/i/MOLIRIMEDIA/4a09cbb4-88ca-4f6d-0ccd-08dd9d2caa1e?width=800)

![](https://rsbolig.dk/i/MOLIRIMEDIA/c5a0bf10-ee95-43aa-d936-08dd9de71a53?width=800)

![](https://rsbolig.dk/i/MOLIRIMEDIA/4a09cbb4-88ca-4f6d-0ccd-08dd9d2caa1e?width=800)

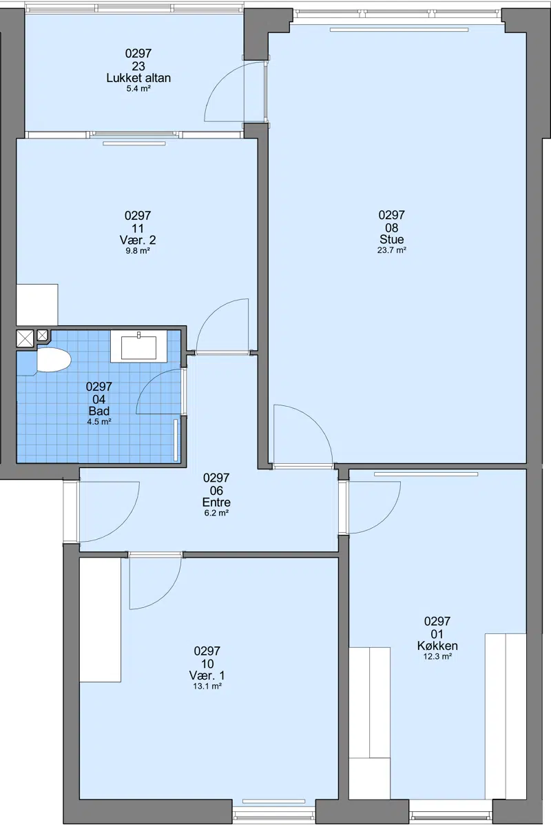
Familieboliger

3

85 m²

5227 kr.

15000 kr.

![](https://rsbolig.dk/i/MOLIRIMEDIA/6d211e7a-a649-4a56-0da3-08dd9d2caa1e?width=800)






![](https://rsbolig.dk/i/MOLIRIMEDIA/6d211e7a-a649-4a56-0da3-08dd9d2caa1e?width=800)

![](https://rsbolig.dk/i/MOLIRIMEDIA/916398ef-bf48-44c0-119f-08dd9d2caa1e?width=800)

![](https://rsbolig.dk/i/MOLIRIMEDIA/6d211e7a-a649-4a56-0da3-08dd9d2caa1e?width=800)

![](https://rsbolig.dk/i/MOLIRIMEDIA/916398ef-bf48-44c0-119f-08dd9d2caa1e?width=800)

Familieboliger

3

88 m²

5329 kr.

15000 kr.

![](https://rsbolig.dk/i/MOLIRIMEDIA/961b2553-45eb-4d0b-0c5b-08dd9d2caa1e?width=800)






![](https://rsbolig.dk/i/MOLIRIMEDIA/961b2553-45eb-4d0b-0c5b-08dd9d2caa1e?width=800)

![](https://rsbolig.dk/i/MOLIRIMEDIA/db1f4ca5-4155-4028-0e41-08dd9d2caa1e?width=800)

![](https://rsbolig.dk/i/MOLIRIMEDIA/961b2553-45eb-4d0b-0c5b-08dd9d2caa1e?width=800)

![](https://rsbolig.dk/i/MOLIRIMEDIA/db1f4ca5-4155-4028-0e41-08dd9d2caa1e?width=800)

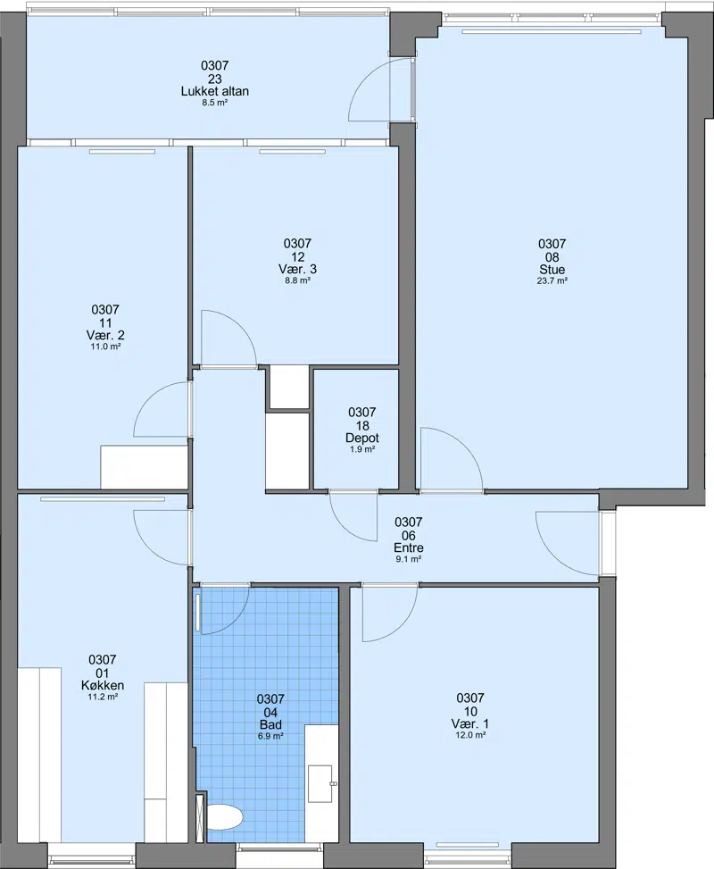
Familieboliger

3

79 m²

5170 kr.

15000 kr.

![](https://rsbolig.dk/i/MOLIRIMEDIA/9180a8e2-3679-48c0-0ceb-08dd9d2caa1e?width=800)






![](https://rsbolig.dk/i/MOLIRIMEDIA/9180a8e2-3679-48c0-0ceb-08dd9d2caa1e?width=800)

![](https://rsbolig.dk/i/MOLIRIMEDIA/a6b03479-174f-4b97-123a-08dd9d2caa1e?width=800)

![](https://rsbolig.dk/i/MOLIRIMEDIA/9180a8e2-3679-48c0-0ceb-08dd9d2caa1e?width=800)

![](https://rsbolig.dk/i/MOLIRIMEDIA/a6b03479-174f-4b97-123a-08dd9d2caa1e?width=800)

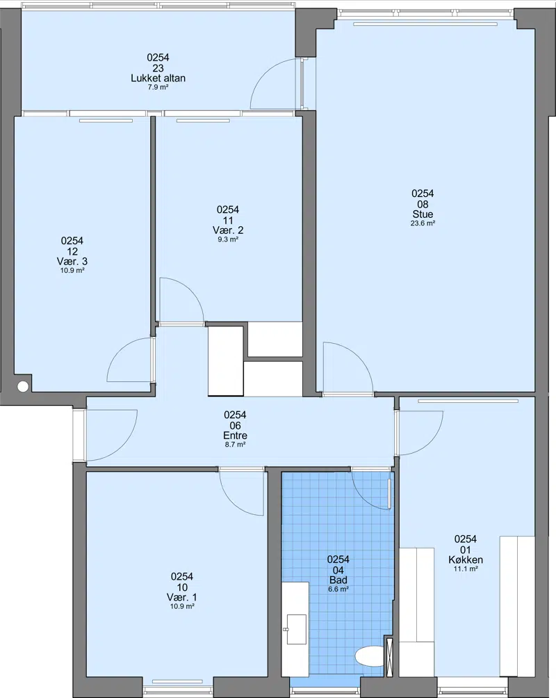
Familieboliger

3

86 m²

5405 kr.

15000 kr.

![](https://rsbolig.dk/i/MOLIRIMEDIA/5528d86f-5f2b-4bf5-11fb-08dd9d2caa1e?width=800)






![](https://rsbolig.dk/i/MOLIRIMEDIA/5528d86f-5f2b-4bf5-11fb-08dd9d2caa1e?width=800)

![](https://rsbolig.dk/i/MOLIRIMEDIA/0c40a74c-b3ca-471c-1360-08dd9d2caa1e?width=800)

![](https://rsbolig.dk/i/MOLIRIMEDIA/5528d86f-5f2b-4bf5-11fb-08dd9d2caa1e?width=800)

![](https://rsbolig.dk/i/MOLIRIMEDIA/0c40a74c-b3ca-471c-1360-08dd9d2caa1e?width=800)

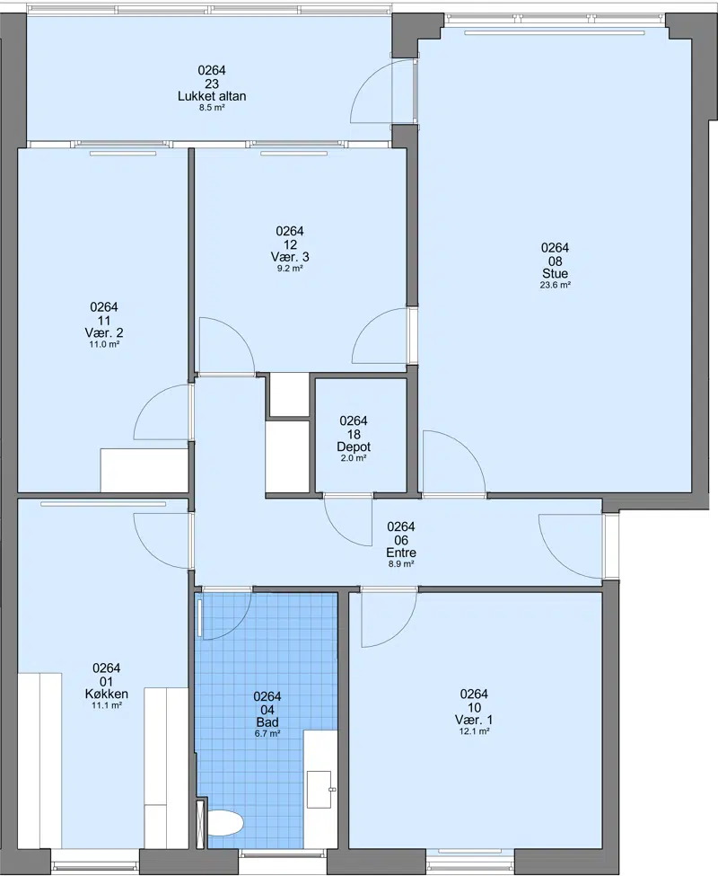
Familieboliger

3

85 m²

5369 kr.

15000 kr.

![](https://rsbolig.dk/i/MOLIRIMEDIA/73c95ad6-aaf6-47ae-0d9a-08dd9d2caa1e?width=800)






![](https://rsbolig.dk/i/MOLIRIMEDIA/73c95ad6-aaf6-47ae-0d9a-08dd9d2caa1e?width=800)

![](https://rsbolig.dk/i/MOLIRIMEDIA/0148c0d3-72d8-4857-0f06-08dd9d2caa1e?width=800)

![](https://rsbolig.dk/i/MOLIRIMEDIA/73c95ad6-aaf6-47ae-0d9a-08dd9d2caa1e?width=800)

![](https://rsbolig.dk/i/MOLIRIMEDIA/0148c0d3-72d8-4857-0f06-08dd9d2caa1e?width=800)

Familieboliger

3

80 m²

5213 kr.

15000 kr.

![](https://rsbolig.dk/i/MOLIRIMEDIA/0702fffc-0d5d-49b4-d939-08dd9de71a53?width=800)






![](https://rsbolig.dk/i/MOLIRIMEDIA/0702fffc-0d5d-49b4-d939-08dd9de71a53?width=800)

![](https://rsbolig.dk/i/MOLIRIMEDIA/9c4132f5-d066-440e-0de0-08dd9d2caa1e?width=800)

![](https://rsbolig.dk/i/MOLIRIMEDIA/0702fffc-0d5d-49b4-d939-08dd9de71a53?width=800)

![](https://rsbolig.dk/i/MOLIRIMEDIA/9c4132f5-d066-440e-0de0-08dd9d2caa1e?width=800)

Familieboliger

3

88 m²

5474 kr.

15000 kr.

![](https://rsbolig.dk/i/MOLIRIMEDIA/25369870-4e02-401b-0d94-08dd9d2caa1e?width=800)






![](https://rsbolig.dk/i/MOLIRIMEDIA/25369870-4e02-401b-0d94-08dd9d2caa1e?width=800)

![](https://rsbolig.dk/i/MOLIRIMEDIA/54cbd19a-bd17-4218-0dd3-08dd9d2caa1e?width=800)

![](https://rsbolig.dk/i/MOLIRIMEDIA/25369870-4e02-401b-0d94-08dd9d2caa1e?width=800)

![](https://rsbolig.dk/i/MOLIRIMEDIA/54cbd19a-bd17-4218-0dd3-08dd9d2caa1e?width=800)

Familieboliger

3

90 m²

5515 kr.

15000 kr.

![](https://rsbolig.dk/i/MOLIRIMEDIA/1345dbdc-df37-4fb9-da2e-08dd9de71a53?width=800)






![](https://rsbolig.dk/i/MOLIRIMEDIA/1345dbdc-df37-4fb9-da2e-08dd9de71a53?width=800)

![](https://rsbolig.dk/i/MOLIRIMEDIA/03f3b34b-02b5-49ef-0d38-08dd9d2caa1e?width=800)

![](https://rsbolig.dk/i/MOLIRIMEDIA/1345dbdc-df37-4fb9-da2e-08dd9de71a53?width=800)

![](https://rsbolig.dk/i/MOLIRIMEDIA/03f3b34b-02b5-49ef-0d38-08dd9d2caa1e?width=800)

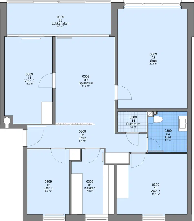
Familieboliger

4

102 m²

6004 kr.

17000 kr.

![](https://rsbolig.dk/i/MOLIRIMEDIA/44a097f1-8bd8-49a1-d8ce-08dd9de71a53?width=800)






![](https://rsbolig.dk/i/MOLIRIMEDIA/44a097f1-8bd8-49a1-d8ce-08dd9de71a53?width=800)

![](https://rsbolig.dk/i/MOLIRIMEDIA/cf78650d-e9ae-409e-0be6-08dd9d2caa1e?width=800)

![](https://rsbolig.dk/i/MOLIRIMEDIA/44a097f1-8bd8-49a1-d8ce-08dd9de71a53?width=800)

![](https://rsbolig.dk/i/MOLIRIMEDIA/cf78650d-e9ae-409e-0be6-08dd9d2caa1e?width=800)

Familieboliger

4

102 m²

6004 kr.

17000 kr.

![](https://rsbolig.dk/i/MOLIRIMEDIA/f20203b2-554c-4ec7-d937-08dd9de71a53?width=800)






![](https://rsbolig.dk/i/MOLIRIMEDIA/f20203b2-554c-4ec7-d937-08dd9de71a53?width=800)

![](https://rsbolig.dk/i/MOLIRIMEDIA/4dcdce95-e4cc-419e-0f35-08dd9d2caa1e?width=800)

![](https://rsbolig.dk/i/MOLIRIMEDIA/f20203b2-554c-4ec7-d937-08dd9de71a53?width=800)

![](https://rsbolig.dk/i/MOLIRIMEDIA/4dcdce95-e4cc-419e-0f35-08dd9d2caa1e?width=800)

Familieboliger

4

100 m²

5936 kr.

17000 kr.

![](https://rsbolig.dk/i/MOLIRIMEDIA/c9f96042-d007-4811-0e64-08dd9d2caa1e?width=800)






![](https://rsbolig.dk/i/MOLIRIMEDIA/c9f96042-d007-4811-0e64-08dd9d2caa1e?width=800)

![](https://rsbolig.dk/i/MOLIRIMEDIA/76773b85-52b6-4a62-0fb6-08dd9d2caa1e?width=800)

![](https://rsbolig.dk/i/MOLIRIMEDIA/c9f96042-d007-4811-0e64-08dd9d2caa1e?width=800)

![](https://rsbolig.dk/i/MOLIRIMEDIA/76773b85-52b6-4a62-0fb6-08dd9d2caa1e?width=800)

Familieboliger

4

102 m²

6004 kr.

17000 kr.

![](https://rsbolig.dk/i/MOLIRIMEDIA/bad7b122-0e8a-446a-0f4e-08dd9d2caa1e?width=800)






![](https://rsbolig.dk/i/MOLIRIMEDIA/bad7b122-0e8a-446a-0f4e-08dd9d2caa1e?width=800)

![](https://rsbolig.dk/i/MOLIRIMEDIA/38807d9c-c9c8-4f2d-12c2-08dd9d2caa1e?width=800)

![](https://rsbolig.dk/i/MOLIRIMEDIA/bad7b122-0e8a-446a-0f4e-08dd9d2caa1e?width=800)

![](https://rsbolig.dk/i/MOLIRIMEDIA/38807d9c-c9c8-4f2d-12c2-08dd9d2caa1e?width=800)

Familieboliger

4

102 m²

6004 kr.

17000 kr.

![](https://rsbolig.dk/i/MOLIRIMEDIA/999568c4-2062-43fe-0b54-08dd9d2caa1e?width=800)






![](https://rsbolig.dk/i/MOLIRIMEDIA/999568c4-2062-43fe-0b54-08dd9d2caa1e?width=800)

![](https://rsbolig.dk/i/MOLIRIMEDIA/6906800d-7ec0-407c-0fa9-08dd9d2caa1e?width=800)

![](https://rsbolig.dk/i/MOLIRIMEDIA/999568c4-2062-43fe-0b54-08dd9d2caa1e?width=800)

![](https://rsbolig.dk/i/MOLIRIMEDIA/6906800d-7ec0-407c-0fa9-08dd9d2caa1e?width=800)

Familieboliger

4

100 m²

5936 kr.

17000 kr.

![](https://rsbolig.dk/i/MOLIRIMEDIA/ceb2f096-12a7-41f5-0bf2-08dd9d2caa1e?width=800)






![](https://rsbolig.dk/i/MOLIRIMEDIA/ceb2f096-12a7-41f5-0bf2-08dd9d2caa1e?width=800)

![](https://rsbolig.dk/i/MOLIRIMEDIA/c3d6fe8f-4cb3-4d08-10e2-08dd9d2caa1e?width=800)

![](https://rsbolig.dk/i/MOLIRIMEDIA/ceb2f096-12a7-41f5-0bf2-08dd9d2caa1e?width=800)

![](https://rsbolig.dk/i/MOLIRIMEDIA/c3d6fe8f-4cb3-4d08-10e2-08dd9d2caa1e?width=800)

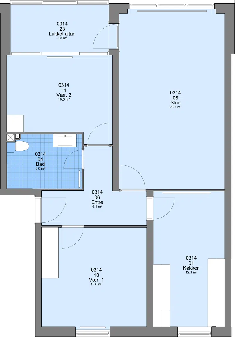
Familieboliger

4

104 m²

6084 kr.

17000 kr.

![](https://rsbolig.dk/i/MOLIRIMEDIA/93db48d1-7edd-4e6a-d934-08dd9de71a53?width=800)






![](https://rsbolig.dk/i/MOLIRIMEDIA/93db48d1-7edd-4e6a-d934-08dd9de71a53?width=800)

![](https://rsbolig.dk/i/MOLIRIMEDIA/95557f76-7096-4b87-10a8-08dd9d2caa1e?width=800)

![](https://rsbolig.dk/i/MOLIRIMEDIA/93db48d1-7edd-4e6a-d934-08dd9de71a53?width=800)

![](https://rsbolig.dk/i/MOLIRIMEDIA/95557f76-7096-4b87-10a8-08dd9d2caa1e?width=800)

Familieboliger

4

109 m²

6226 kr.

17000 kr.

![](https://rsbolig.dk/i/MOLIRIMEDIA/62445f35-4c12-4e54-0b29-08dd9d2caa1e?width=800)






![](https://rsbolig.dk/i/MOLIRIMEDIA/62445f35-4c12-4e54-0b29-08dd9d2caa1e?width=800)

![](https://rsbolig.dk/i/MOLIRIMEDIA/df3384e4-fa10-40aa-11a0-08dd9d2caa1e?width=800)

![](https://rsbolig.dk/i/MOLIRIMEDIA/62445f35-4c12-4e54-0b29-08dd9d2caa1e?width=800)

![](https://rsbolig.dk/i/MOLIRIMEDIA/df3384e4-fa10-40aa-11a0-08dd9d2caa1e?width=800)

Familieboliger

4

109 m²

6226 kr.

17000 kr.

![](https://rsbolig.dk/i/MOLIRIMEDIA/ebaf5cc1-69b2-4c18-d99c-08dd9de71a53?width=800)






![](https://rsbolig.dk/i/MOLIRIMEDIA/ebaf5cc1-69b2-4c18-d99c-08dd9de71a53?width=800)

![](https://rsbolig.dk/i/MOLIRIMEDIA/01643f98-1a81-4a62-0c8b-08dd9d2caa1e?width=800)

![](https://rsbolig.dk/i/MOLIRIMEDIA/ebaf5cc1-69b2-4c18-d99c-08dd9de71a53?width=800)

![](https://rsbolig.dk/i/MOLIRIMEDIA/01643f98-1a81-4a62-0c8b-08dd9d2caa1e?width=800)

Familieboliger

4

102 m²

5845 kr.

17000 kr.

![](https://rsbolig.dk/i/MOLIRIMEDIA/cef1ccf4-7508-4f96-d8c9-08dd9de71a53?width=800)






![](https://rsbolig.dk/i/MOLIRIMEDIA/cef1ccf4-7508-4f96-d8c9-08dd9de71a53?width=800)

![](https://rsbolig.dk/i/MOLIRIMEDIA/fbb8152c-fced-4a0e-125e-08dd9d2caa1e?width=800)

![](https://rsbolig.dk/i/MOLIRIMEDIA/cef1ccf4-7508-4f96-d8c9-08dd9de71a53?width=800)

![](https://rsbolig.dk/i/MOLIRIMEDIA/fbb8152c-fced-4a0e-125e-08dd9d2caa1e?width=800)

Familieboliger

4

102 m²

6004 kr.

17000 kr.

![](https://rsbolig.dk/i/MOLIRIMEDIA/9cbc3e10-6ad3-44e4-0ce3-08dd9d2caa1e?width=800)






![](https://rsbolig.dk/i/MOLIRIMEDIA/9cbc3e10-6ad3-44e4-0ce3-08dd9d2caa1e?width=800)

![](https://rsbolig.dk/i/MOLIRIMEDIA/5b5020ac-eb11-4837-107d-08dd9d2caa1e?width=800)

![](https://rsbolig.dk/i/MOLIRIMEDIA/9cbc3e10-6ad3-44e4-0ce3-08dd9d2caa1e?width=800)

![](https://rsbolig.dk/i/MOLIRIMEDIA/5b5020ac-eb11-4837-107d-08dd9d2caa1e?width=800)

Familieboliger

4

100 m²

5779 kr.

17000 kr.

![](https://rsbolig.dk/i/MOLIRIMEDIA/8ea040a3-b2e7-48f1-26d9-08dda22a7775?width=800)






![](https://rsbolig.dk/i/MOLIRIMEDIA/8ea040a3-b2e7-48f1-26d9-08dda22a7775?width=800)

![](https://rsbolig.dk/i/MOLIRIMEDIA/1e234b34-331a-48d1-0d6d-08dd9d2caa1e?width=800)

![](https://rsbolig.dk/i/MOLIRIMEDIA/8ea040a3-b2e7-48f1-26d9-08dda22a7775?width=800)

![](https://rsbolig.dk/i/MOLIRIMEDIA/1e234b34-331a-48d1-0d6d-08dd9d2caa1e?width=800)

Familieboliger

4

104 m²

6084 kr.

17000 kr.

![](https://rsbolig.dk/i/MOLIRIMEDIA/74f8d84f-699e-4e2f-2664-08dda22a7775?width=800)






![](https://rsbolig.dk/i/MOLIRIMEDIA/74f8d84f-699e-4e2f-2664-08dda22a7775?width=800)

![](https://rsbolig.dk/i/MOLIRIMEDIA/a83a580b-4617-4bf4-0b35-08dd9d2caa1e?width=800)

![](https://rsbolig.dk/i/MOLIRIMEDIA/74f8d84f-699e-4e2f-2664-08dda22a7775?width=800)

![](https://rsbolig.dk/i/MOLIRIMEDIA/a83a580b-4617-4bf4-0b35-08dd9d2caa1e?width=800)

Familieboliger

4

102 m²

6004 kr.

17000 kr.

![](https://rsbolig.dk/i/MOLIRIMEDIA/dc066380-2462-4a05-d8b1-08dd9de71a53?width=800)






![](https://rsbolig.dk/i/MOLIRIMEDIA/dc066380-2462-4a05-d8b1-08dd9de71a53?width=800)

![](https://rsbolig.dk/i/MOLIRIMEDIA/b29c970d-deb8-4855-0cde-08dd9d2caa1e?width=800)

![](https://rsbolig.dk/i/MOLIRIMEDIA/dc066380-2462-4a05-d8b1-08dd9de71a53?width=800)

![](https://rsbolig.dk/i/MOLIRIMEDIA/b29c970d-deb8-4855-0cde-08dd9d2caa1e?width=800)

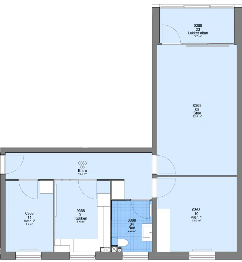
Familieboliger

4

109 m²

6226 kr.

17000 kr.

![](https://rsbolig.dk/i/MOLIRIMEDIA/342bf159-477b-4701-1099-08dd9d2caa1e?width=800)






![](https://rsbolig.dk/i/MOLIRIMEDIA/342bf159-477b-4701-1099-08dd9d2caa1e?width=800)

![](https://rsbolig.dk/i/MOLIRIMEDIA/539bba94-9120-4436-12df-08dd9d2caa1e?width=800)

![](https://rsbolig.dk/i/MOLIRIMEDIA/342bf159-477b-4701-1099-08dd9d2caa1e?width=800)

![](https://rsbolig.dk/i/MOLIRIMEDIA/539bba94-9120-4436-12df-08dd9d2caa1e?width=800)

Familieboliger

4

100 m²

5936 kr.

17000 kr.

![](https://rsbolig.dk/i/MOLIRIMEDIA/69a5de3d-c734-4781-26d4-08dda22a7775?width=800)






![](https://rsbolig.dk/i/MOLIRIMEDIA/69a5de3d-c734-4781-26d4-08dda22a7775?width=800)

![](https://rsbolig.dk/i/MOLIRIMEDIA/04d02fc9-59ca-45d4-0d34-08dd9d2caa1e?width=800)

![](https://rsbolig.dk/i/MOLIRIMEDIA/69a5de3d-c734-4781-26d4-08dda22a7775?width=800)

![](https://rsbolig.dk/i/MOLIRIMEDIA/04d02fc9-59ca-45d4-0d34-08dd9d2caa1e?width=800)

Familieboliger

4

113 m²

6337 kr.

17000 kr.

![](https://rsbolig.dk/i/MOLIRIMEDIA/d52612b6-9b5b-4b9c-0f99-08dd9d2caa1e?width=800)






![](https://rsbolig.dk/i/MOLIRIMEDIA/d52612b6-9b5b-4b9c-0f99-08dd9d2caa1e?width=800)

![](https://rsbolig.dk/i/MOLIRIMEDIA/41e47a53-0da2-484a-1373-08dd9d2caa1e?width=800)

![](https://rsbolig.dk/i/MOLIRIMEDIA/d52612b6-9b5b-4b9c-0f99-08dd9d2caa1e?width=800)

![](https://rsbolig.dk/i/MOLIRIMEDIA/41e47a53-0da2-484a-1373-08dd9d2caa1e?width=800)

Familieboliger

4

102 m²

6004 kr.

17000 kr.

![](https://rsbolig.dk/i/MOLIRIMEDIA/02feace2-a467-43da-112e-08dd9d2caa1e?width=800)






![](https://rsbolig.dk/i/MOLIRIMEDIA/02feace2-a467-43da-112e-08dd9d2caa1e?width=800)

![](https://rsbolig.dk/i/MOLIRIMEDIA/089420d0-9b82-4895-122b-08dd9d2caa1e?width=800)

![](https://rsbolig.dk/i/MOLIRIMEDIA/02feace2-a467-43da-112e-08dd9d2caa1e?width=800)

![](https://rsbolig.dk/i/MOLIRIMEDIA/089420d0-9b82-4895-122b-08dd9d2caa1e?width=800)

Familieboliger

4

110 m²

6253 kr.

17000 kr.

![](https://rsbolig.dk/i/MOLIRIMEDIA/d0d3bbaa-e263-4f3b-0a8b-08dd9d2caa1e?width=800)






![](https://rsbolig.dk/i/MOLIRIMEDIA/d0d3bbaa-e263-4f3b-0a8b-08dd9d2caa1e?width=800)

![](https://rsbolig.dk/i/MOLIRIMEDIA/b142affd-5f63-47f6-1007-08dd9d2caa1e?width=800)

![](https://rsbolig.dk/i/MOLIRIMEDIA/d0d3bbaa-e263-4f3b-0a8b-08dd9d2caa1e?width=800)

![](https://rsbolig.dk/i/MOLIRIMEDIA/b142affd-5f63-47f6-1007-08dd9d2caa1e?width=800)

## Afdelingsdokumenter

Her finder du nyttig information om din afdeling, såsom husorden, vedligeholdelse af dit lejemål, referater m.m.

###

                                                Husorden

[Husorden, etage byggeri, afd. 8.pdf](https://rsbolig.dk/p/Files/Boligdata/Afdelinger/1-008/Husorden/Husorden--etage-byggeri--afd.-8.pdf)

###

                                                Afdelingsmøder

[2025 Referat afd.møde.pdf](https://rsbolig.dk/p/Files/Boligdata/Afdelinger/1-008/Afdelingsm&#xF8;der/2025-Referat-afd.m&#xF8;de.pdf)
                                            [2024 Referat afd.møde.pdf](https://rsbolig.dk/p/Files/Boligdata/Afdelinger/1-008/Afdelingsm&#xF8;der/2024-Referat-afd.m&#xF8;de.pdf)
                                            [2023 Referat afd.møde.pdf](https://rsbolig.dk/p/Files/Boligdata/Afdelinger/1-008/Afdelingsm&#xF8;der/2023-Referat-afd.m&#xF8;de.pdf)
                                            [2022 Referat afd.møde.pdf](https://rsbolig.dk/p/Files/Boligdata/Afdelinger/1-008/Afdelingsm&#xF8;der/2022-Referat-afd.m&#xF8;de.pdf)
                                            [2021 Referat ekstraordinært afd.møde.pdf](https://rsbolig.dk/p/Files/Boligdata/Afdelinger/1-008/Afdelingsm&#xF8;der/2021-Referat-ekstraordin&#xE6;rt-afd.m&#xF8;de.pdf)
                                            [2021 Referat afd. møde.pdf](https://rsbolig.dk/p/Files/Boligdata/Afdelinger/1-008/Afdelingsm&#xF8;der/2021-Referat-afd.-m&#xF8;de.pdf)
                                            [2020 Referat ekstraordinært afd.møde.pdf](https://rsbolig.dk/p/Files/Boligdata/Afdelinger/1-008/Afdelingsm&#xF8;der/2020-Referat-ekstraordin&#xE6;rt-afd.m&#xF8;de.pdf)
                                            [2020 Referat afd.møde.pdf](https://rsbolig.dk/p/Files/Boligdata/Afdelinger/1-008/Afdelingsm&#xF8;der/2020-Referat-afd.m&#xF8;de.pdf)
                                            [2019 Referat afd.møde.pdf](https://rsbolig.dk/p/Files/Boligdata/Afdelinger/1-008/Afdelingsm&#xF8;der/2019-Referat-afd.m&#xF8;de.pdf)
                                            [2018 Summary of the meeting in housing department 5 and 8.pdf](https://rsbolig.dk/p/Files/Boligdata/Afdelinger/1-008/Afdelingsm&#xF8;der/2018-Summary-of-the-meeting-in-housing-department-5-and-8.pdf)
                                            [2018 Referat afd.møde.pdf](https://rsbolig.dk/p/Files/Boligdata/Afdelinger/1-008/Afdelingsm&#xF8;der/2018-Referat-afd.m&#xF8;de.pdf)
                                            [2018 Referat af møde afd. 5 og 8.pdf](https://rsbolig.dk/p/Files/Boligdata/Afdelinger/1-008/Afdelingsm&#xF8;der/2018-Referat-af-m&#xF8;de-afd.-5-og-8.pdf)
                                            [2018 Referat af møde afd. 5 og 8 (oversat).pdf](https://rsbolig.dk/p/Files/Boligdata/Afdelinger/1-008/Afdelingsm&#xF8;der/2018-Referat-af-m&#xF8;de-afd.-5-og-8--oversat-.pdf)
                                            [2017 Referat afd.møde.pdf](https://rsbolig.dk/p/Files/Boligdata/Afdelinger/1-008/Afdelingsm&#xF8;der/2017-Referat-afd.m&#xF8;de.pdf)
                                            [2016 Referat afd.møde.pdf](https://rsbolig.dk/p/Files/Boligdata/Afdelinger/1-008/Afdelingsm&#xF8;der/2016-Referat-afd.m&#xF8;de.pdf)

###

                                                Øvrigt

[Afd. 8 - Indflytningsbrochure.pdf](https://rsbolig.dk/p/Files/Boligdata/Afdelinger/1-008/&#xD8;vrigt/Afd.-8---Indflytningsbrochure.pdf)
                                            [Affaldsbehandling - arabisk.pdf](https://rsbolig.dk/p/Files/Boligdata/Afdelinger/1-008/&#xD8;vrigt/Affaldsbehandling---arabisk.pdf)
                                            [Affaldsbehandling - dansk.pdf](https://rsbolig.dk/p/Files/Boligdata/Afdelinger/1-008/&#xD8;vrigt/Affaldsbehandling---dansk.pdf)
                                            [Manual\_e-vaskeri.pdf](https://rsbolig.dk/p/Files/Boligdata/Afdelinger/1-008/&#xD8;vrigt/Manual_e-vaskeri.pdf)
                                            [Oversigtskort afd  5 og 8.pdf](https://rsbolig.dk/p/Files/Boligdata/Afdelinger/1-008/&#xD8;vrigt/Oversigtskort-afd--5-og-8.pdf)
                                            [Vedtægter Rsbolig.pdf](https://rsbolig.dk/p/Files/Boligdata/Afdelinger/1-008/&#xD8;vrigt/Vedt&#xE6;gter-Rsbolig.pdf)

###

                                                Vedligehold

[Gode råd mod skimmelsvamp.pdf](https://rsbolig.dk/p/Files/Boligdata/Afdelinger/1-008/Vedligehold/Gode-r&#xE5;d-mod-skimmelsvamp.pdf)
                                            [Pas på fugtproblemet.pdf](https://rsbolig.dk/p/Files/Boligdata/Afdelinger/1-008/Vedligehold/Pas-p&#xE5;-fugtproblemet.pdf)
                                            [Vedligeholdelsesreglement.pdf](https://rsbolig.dk/p/Files/Boligdata/Afdelinger/1-008/Vedligehold/Vedligeholdelsesreglement.pdf)

## Placering
