---
title: "Toften 8, 1 th, 6880 Tarm"
description: "1-81-3"
date: "2026-05-24"
created: "2026-02-11"
---

-
-
-

https://rsbolig.dk/Files/Boligdata/PlantegningerEseeBase/01-81-0003.png

                                https://rsbolig.dk/Files/Boligdata/PlantegningerEseeBase/3D/01-81-0003.png

                                https://maps.google.dk/?q=55.9076939,8.5188358

# Toften 8, 1 th, 6880 Tarm

Afdeling 81

## 5.612 kr. pr.md

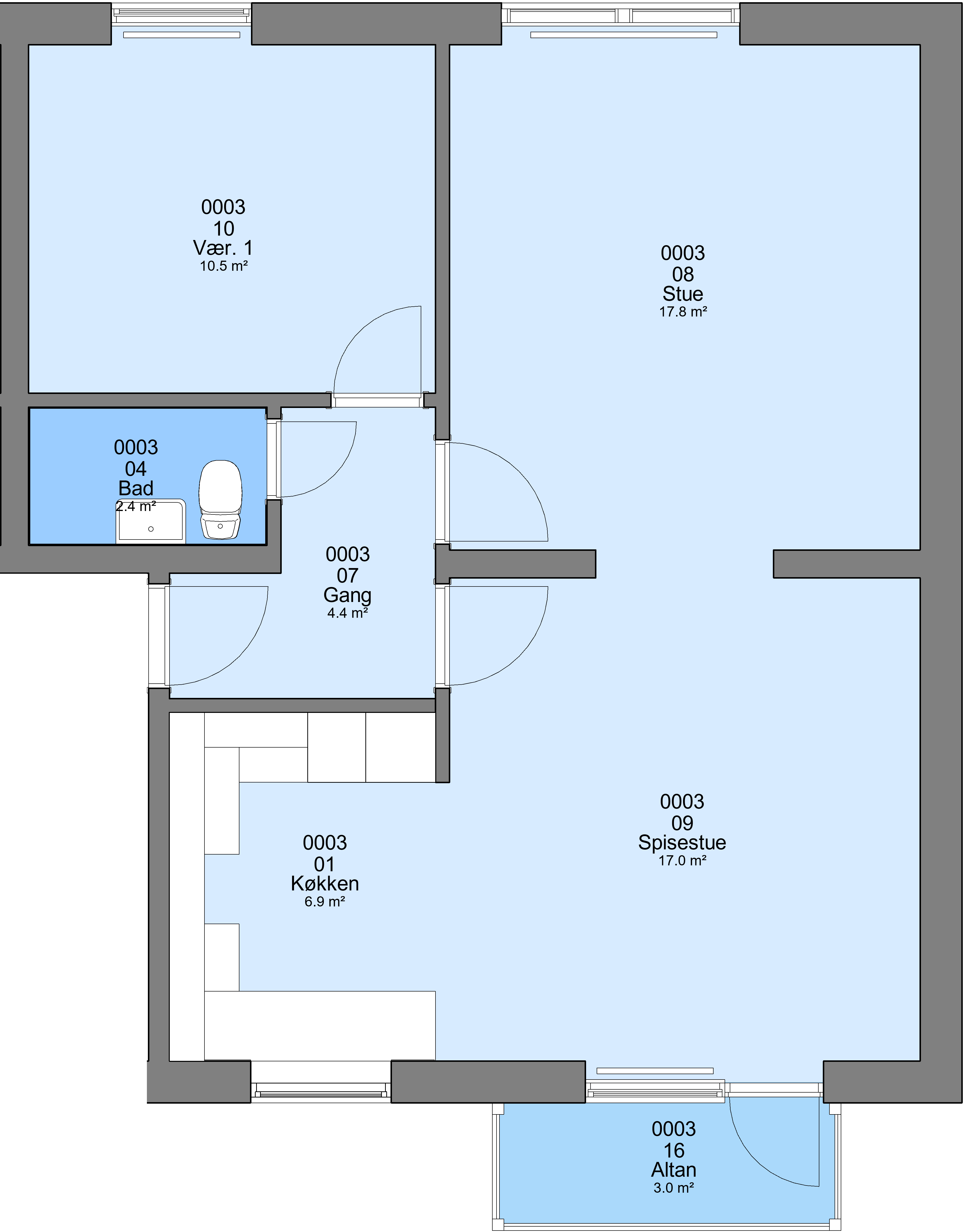
Etagebyggeri | Familieboliger | 3 vær. | 75 m² | Indskud: 15.000 kr. | A/C forbrug: 531 kr. | Ledig fra: 01-01-26

[Bliv medlem](https://rsbolig.dk/bliv-medlem)

Afdelingen består af 10 senior boliger bygget som etagebyggeri. Boligerne er beliggende i Tarm bymidte. I kælderen er der depotrum tilhørende hver bolig, samt fælles cykelparkering og vaskeri. For at leje en bolig i denne afdeling, skal man være mindst 45 år. Derudover må der heller ikke være hjemmeboende børn.

## Faciliteter

Altan/Have

Ja

Der er altan til boligerne.

Gangbesværet

Se mere

Nogle af boligerne ligger på 1. sal.
Der er dørtrin i boligerne og der kan forekomme niveauforskelle ved indgangen.

El

Se mere

Som lejer skal du, i forbindelse med indflytning, selv vælge hvilken el-leverandør du ønsker.

Husdyr

Nej

Det er ikke tilladt at holde husdyr.

Hvidevarer

Ja

Der hører komfur, ovn og emhætte med til lejligheden.

Gildesal

Nej

Der er ikke gildesal i afdelingen.

Råderet

Nej

Der er ikke vedtaget mulighed for råderet i afdelingen.

TV

Ja

Der er installeret fibernet i boligen.

På hjemmesiden rah-fiber.dk kan du se hvilke udbydere af internet og TV, du kan vælge imellem.

Vand

Læs mere

Udgiften til vand er inkl. i boliglejen.

Varme

Læs mere

Boligerne opvarmes med fjernvarme, som betales aconto til Boligforeningen.

Vicevært

Ja

Vicevært i afdelingen

Fællesvaskeri

Ja

Vaskeri i afdelingen

Affald

Læs mere

I Ringkøbing-Skjern Kommune skal man affaldssortere.

Der er fælles affaldsstation, hvor madaffald og restaffald kan afleveres.

Øvrigt affald afleveres på den kommunale genbrugsplads.

Ladestander

Nej

Der er ikke ladestander til elbil i afdelingen.

                        Se flere
