---
title: "Østergade 10A, 6950 Ringkøbing"
description: "1-25-804"
date: "2026-05-07"
created: "2026-01-21"
---

-
-
-

https://rsbolig.dk/Files/Boligdata/PlantegningerEseeBase/01-25-0804.png

                                https://rsbolig.dk/Files/Boligdata/PlantegningerEseeBase/3D/01-25-0804.png

                                https://maps.google.dk/?q=56.0897602,8.2462842

# Østergade 10A, 6950 Ringkøbing

Afdeling 25

## 8.148 kr. pr.md

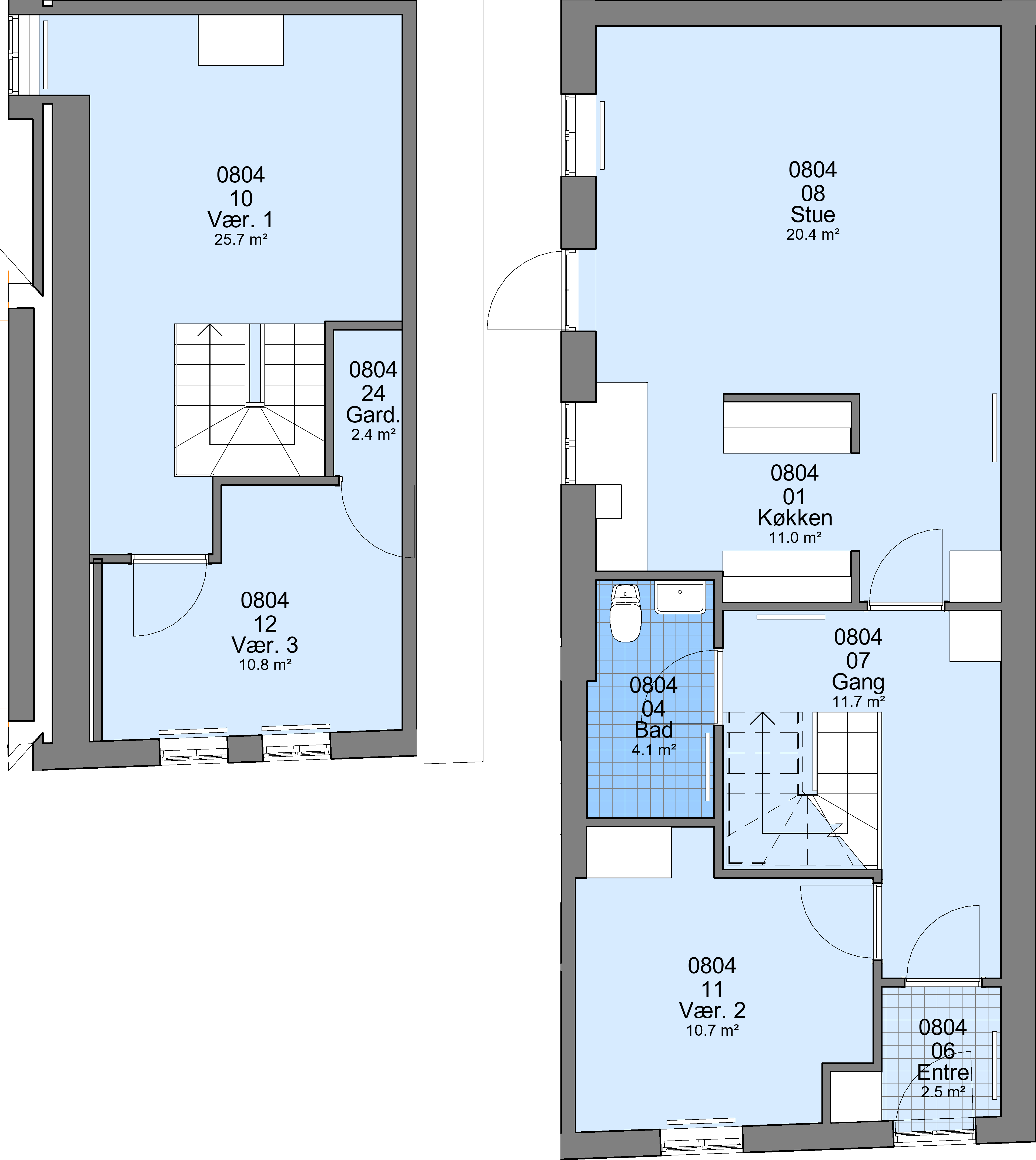
Rækkehus | Familieboliger | 3 vær. | 102.7 m² | Indskud: 15.700 kr. | A/C forbrug: 0 kr. | Ledig fra: 15-12-25

[Bliv medlem](https://rsbolig.dk/bliv-medlem)

Afdelingen består af 14 rækkehuse beliggende centralt i Ringkøbing. Boligerne indrammer et hyggeligt gårdmiljø.

## Faciliteter

Gangbesværet

Se mere

De fleste boliger har indvendig eller udvendig trappe.

El

Se mere

Som lejer skal du, i forbindelse med indflytning, selv vælge hvilken el-leverandør du ønsker.

Husdyr

Nej

Det er tilladt at have én hund eller én kat. En hund må som voksen ikke være større end en "Cocker Spaniel". Uanset størrelsen, er det ikke tilladt at have en "Kamphund".

Hvidevarer

Ja

Der hører komfur, ovn og emhætte med til lejligheden.

Råderet

Ja

Afdelingen har vedtaget, at man kan forny køkkener via råderetten.

TV

Ja

Der er installeret fibernet i boligen.

På hjemmesiden rah-fiber.dk kan du se hvilke udbydere af internet og TV, du kan vælge imellem.

Vand

Læs mere

Udgiften til vand er inkl. i boliglejen.

Varme

Læs mere

Varme betales direkte til Ringkøbing Fjernvarme.

Vicevært

Ja

Vicevært i afdelingen

Fællesvaskeri

Ja

Vaskeri i afdelingen

Affald

Læs mere

I Ringkøbing-Skjern Kommune skal man affaldssortere.
Der er fælles affaldsstation, hvor madaffald og restaffald kan afleveres.
Øvrigt affald afleveres på den kommunale genbrugsplads eller de offentlige affaldsstationer i byen.

Ladestander

Nej

Der er ikke ladestander til elbil i afdelingen.

                        Se flere
